Vuokrataan liiketilat - Helsinki
Kasarmikatu 19 A, Kaartinkaupunki, 00130 Helsinki #10844600
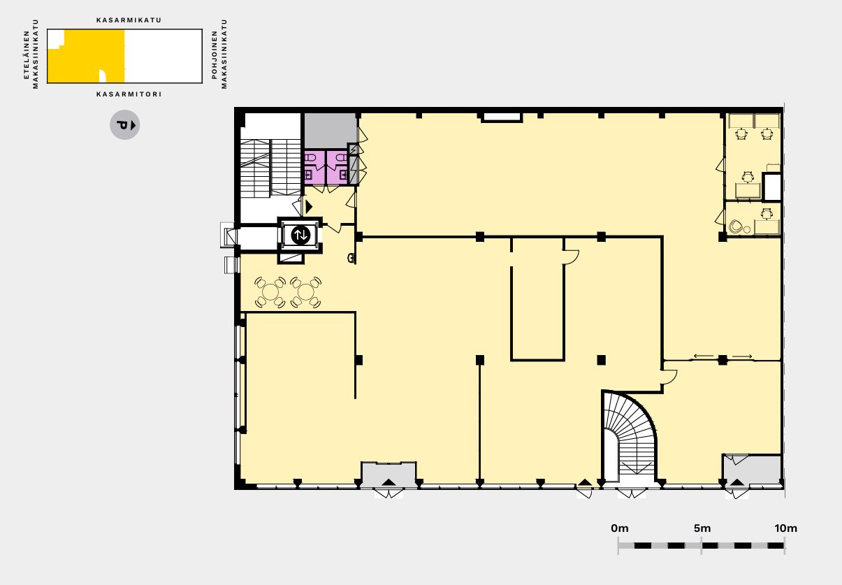
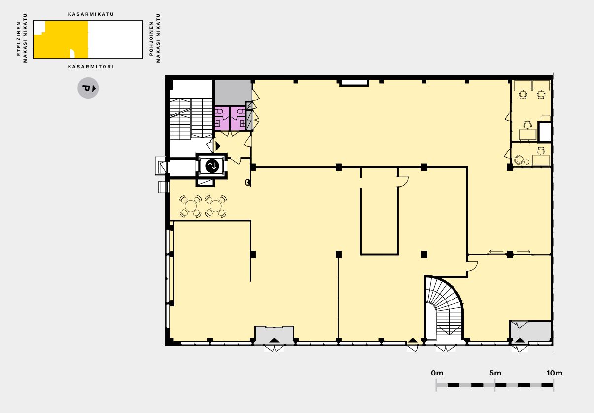
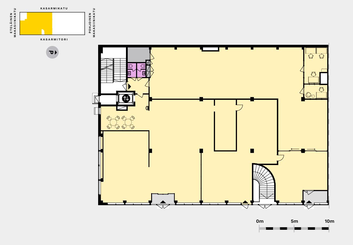
Kasarmitorin Kauppakeskus - Liiketila 670 m² (210 m² + 460 m²)
Osoite
Kasarmikatu 19 A, 00130 Helsinki
Tilatyyppi
Liiketilaa
210 - 670 m2
Pohjapiirros
Kiinteistö
Tämä näyttävä liiketilakokonaisuus avautuu suoraan Kasarmitorille, tarjoten erinomaisen näkyvyyden ja houkuttelevan sijainnin asiakasvirtojen kannalta. Tilat muodostavat yhteensä noin 670 m² kokonaisuuden, joka on mahdollista jakaa kahteen erilliseen osaan: kulmatilaan noin 210 m² ja suurempaan tilaan noin 460 m². Jaetussa ratkaisussa tiloilla on yhteiskäytössä olevat wc-tilat, mikä tuo joustavuutta ja kustannustehokkuutta.
Lisäksi on mahdollisuus vuokrata kellarikerroksesta tauko- ja sosiaalitiloja henkilökunnan käyttöön, mikä parantaa tilojen toimivuutta erityisesti palvelualan yrityksille.
Vuokrasopimus on lähtökohtaisesti solmittavissa vuoden 2026 loppuun saakka. Myös lyhytaikaiset, pop-up-tyyppiset vuokrasopimukset ovat mahdollisia.
Tämä tarjoaa erinomaisen mahdollisuuden esimerkiksi kausiluonteiseen myyntiin, brändinäkyvyyden vahvistamiseen tai uusien konseptien testaamiseen huippusijainnilla.
Kasarmitorin kauppakeskus – Kaartinkaupungin sydämessä
Arvostettu sijainti historiallisessa ympäristössä
Kasarmitorin kauppakeskus sijaitsee Helsingin arvostetussa Kaartinkaupungissa, aivan Esplanadin puiston tuntumassa. Alueen jugend-julkisivut ja historiallinen Kaartin kasarmi luovat ainutlaatuisen tunnelman, joka yhdistyy moderniin kaupunkielämään. Kasarmitori on perinteikäs, mutta samalla kehittyvä osa Helsingin ydinkeskustaa.
Monipuoliset palvelut ja tilat
Kauppakeskuksessa toimii jo nyt muun muassa päivittäistavarakauppa ja tanssiopisto. Kiinteistö tarjoaa liiketiloja eri alojen yrityksille, ja kaikki keskustan palvelut ovat kävelyetäisyydellä. Lounasvaihtoehtoja löytyy sekä kiinteistön omasta ravintolasta että lähialueen runsaasta tarjonnasta.
Erinomaiset kulkuyhteydet ja pysäköinti
Kasarmitorille on helppo saapua niin julkisilla kuin omalla autolla. Raitiovaunupysäkille Etelärannassa kävelee vain muutamassa minuutissa. Kiinteistössä on tilava maanalainen parkkihalli, ja lisäksi pihalta löytyy runsaasti vieraspaikkoja.
Vastuullinen ja elävä ympäristö
Kasarmitorilla järjestetään kesäisin monipuolista ohjelmaa, joka tuo eloa alueelle ja tukee yhteisöllisyyttä. Alueen kehitys tapahtuu kulttuurihistoriallisia arvoja kunnioittaen, mikä tekee siitä houkuttelevan ja vastuullisen kohteen.
Ota yhteyttä
Kiinnostuitko? Ota yhteyttä ja tule tutustumaan tiloihin!
Toimitilavälityspalvelumme on tilanhakijalle maksuton.
Lisäksi on mahdollisuus vuokrata kellarikerroksesta tauko- ja sosiaalitiloja henkilökunnan käyttöön, mikä parantaa tilojen toimivuutta erityisesti palvelualan yrityksille.
Vuokrasopimus on lähtökohtaisesti solmittavissa vuoden 2026 loppuun saakka. Myös lyhytaikaiset, pop-up-tyyppiset vuokrasopimukset ovat mahdollisia.
Tämä tarjoaa erinomaisen mahdollisuuden esimerkiksi kausiluonteiseen myyntiin, brändinäkyvyyden vahvistamiseen tai uusien konseptien testaamiseen huippusijainnilla.
Kasarmitorin kauppakeskus – Kaartinkaupungin sydämessä
Arvostettu sijainti historiallisessa ympäristössä
Kasarmitorin kauppakeskus sijaitsee Helsingin arvostetussa Kaartinkaupungissa, aivan Esplanadin puiston tuntumassa. Alueen jugend-julkisivut ja historiallinen Kaartin kasarmi luovat ainutlaatuisen tunnelman, joka yhdistyy moderniin kaupunkielämään. Kasarmitori on perinteikäs, mutta samalla kehittyvä osa Helsingin ydinkeskustaa.
Monipuoliset palvelut ja tilat
Kauppakeskuksessa toimii jo nyt muun muassa päivittäistavarakauppa ja tanssiopisto. Kiinteistö tarjoaa liiketiloja eri alojen yrityksille, ja kaikki keskustan palvelut ovat kävelyetäisyydellä. Lounasvaihtoehtoja löytyy sekä kiinteistön omasta ravintolasta että lähialueen runsaasta tarjonnasta.
Erinomaiset kulkuyhteydet ja pysäköinti
Kasarmitorille on helppo saapua niin julkisilla kuin omalla autolla. Raitiovaunupysäkille Etelärannassa kävelee vain muutamassa minuutissa. Kiinteistössä on tilava maanalainen parkkihalli, ja lisäksi pihalta löytyy runsaasti vieraspaikkoja.
Vastuullinen ja elävä ympäristö
Kasarmitorilla järjestetään kesäisin monipuolista ohjelmaa, joka tuo eloa alueelle ja tukee yhteisöllisyyttä. Alueen kehitys tapahtuu kulttuurihistoriallisia arvoja kunnioittaen, mikä tekee siitä houkuttelevan ja vastuullisen kohteen.
Ota yhteyttä
Kiinnostuitko? Ota yhteyttä ja tule tutustumaan tiloihin!
Toimitilavälityspalvelumme on tilanhakijalle maksuton.
Vapautuu
Kysy
Kerros
1
Ota yhteyttä
Logistila Oy
Kylätie 11-13, 00320 HELSINKI
Karoliina Turppo
Näytä puhelinnumero
050 345 3258
Pyydä lisätietoa
