Vuokrataan toimistotilat - Espoo
Keilasatama 5, Keilaniemi, 02150 Espoo #10844568
Laadukas 371 m² toimistotila näyttävässä kiinteistössä Espoon Keilaniemessä.
Osoite
Keilasatama 5, 02150 Espoo
Tilatyyppi
Toimistotilaa
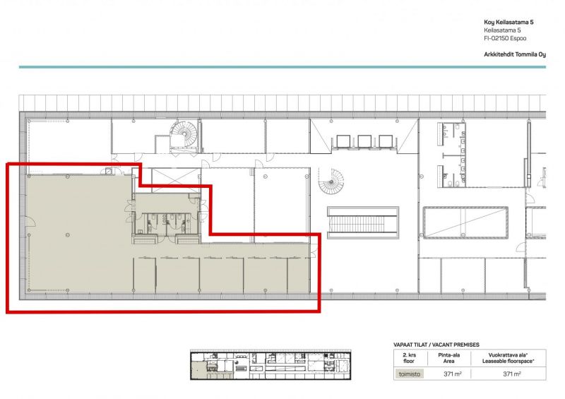
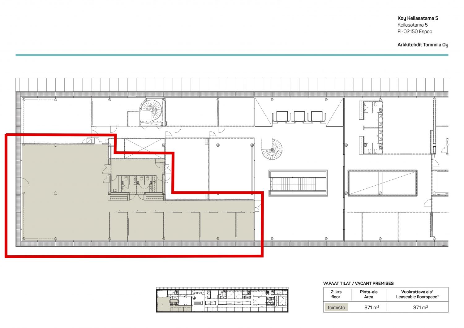
371 m2
Pohjapiirros
Kiinteistö
Keilasatama on ikoninen maamerkki Espoon Keilaniemessä. Tyylikäs ja palveluiltaan laadukas toimistotalo sijaitsee Keilaniemen parhaalla paikalla metroaseman läheisyydessä.
Keilasatamassa on laajat ja monipuoliset palvelut. Vuokralaisten käytössä on kuntosali ja erillisveloituksella personal trainer -palvelut. Työntekijöitä ja kokoustajia palvelee monipuolinen ravintola ja kahvila.
Ilmoituksen kuvat ovat yleiskuvia kiinteistön eri tiloista.
Kiinteistössä on tiloja yhdeksässä kerroksessa eri kokoluokan yrityksille 300:sta neliöstä ylöspäin. Talon toisessa kerroksessa on laaja neuvotteluhuonekeskus, jossa on yhteensä 21 neuvottelutilaa 8:n–200:n henkilön tilaisuuksiin. Yleiset tilat on uudistettu vuoden 2022 alussa.
Keskeinen sijainti Kehä 1:n ja Länsiväylän vieressä takaa hyvät julkisen liikenteen palvelut. Lisäksi kohteessa ja sen välittömässä läheisyydessä on runsaasti pysäköintitilaa henkilökunnan käyttöön.
Keilasatamassa on laajat ja monipuoliset palvelut. Vuokralaisten käytössä on kuntosali ja erillisveloituksella personal trainer -palvelut. Työntekijöitä ja kokoustajia palvelee monipuolinen ravintola ja kahvila.
Ilmoituksen kuvat ovat yleiskuvia kiinteistön eri tiloista.
Kiinteistössä on tiloja yhdeksässä kerroksessa eri kokoluokan yrityksille 300:sta neliöstä ylöspäin. Talon toisessa kerroksessa on laaja neuvotteluhuonekeskus, jossa on yhteensä 21 neuvottelutilaa 8:n–200:n henkilön tilaisuuksiin. Yleiset tilat on uudistettu vuoden 2022 alussa.
Keskeinen sijainti Kehä 1:n ja Länsiväylän vieressä takaa hyvät julkisen liikenteen palvelut. Lisäksi kohteessa ja sen välittömässä läheisyydessä on runsaasti pysäköintitilaa henkilökunnan käyttöön.
Kulkuyhteydet
Metroasema 120 m, Bussipysäkki 120 m, Helsingin Keskusta 7 km, Lentoasema 20 km
Vapautuu
Heti
Rakennusvuosi
2001
Kerros
2 / 8
Energiatehokkuusluokka
Ei lain edellyttämää energiatodistusta
Katutasossa
Näkyvällä paikalla
Hissi
Ota yhteyttä
ScanReal Oy LKV
Opus Business Park
Hitsaajankatu 24
00810 Helsinki
info@scanreal.fi
Puh:
Näytä puhelinnumero
020 730 8830
Sopivat toimitilat yhdellä otolla!
Kartoitamme toimitilatarpeesi ja etsimme yrityksellesi parhaiten sopivat vapaat toimitilat. Koska vuokranantajat maksavat palvelumme, on tämä yrityksellesi veloituksetonta.
OTA YHTEYTTÄ - SOVI NÄYTTÖ!
Kaikki kohteemme eivät ole netissä, kerro tilatarpeesi niin kartoitamme vaihtoehdot.
Palvelumme on tilanhakijalle ilmainen
Pyydä lisätietoa
