Vuokrataan toimistotilat - Helsinki
Kuparitalo, Töölönkatu 4, Etu-Töölö, 00100 Helsinki #10844566
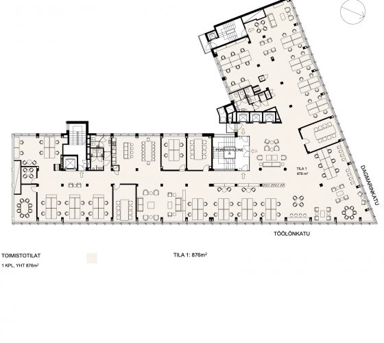
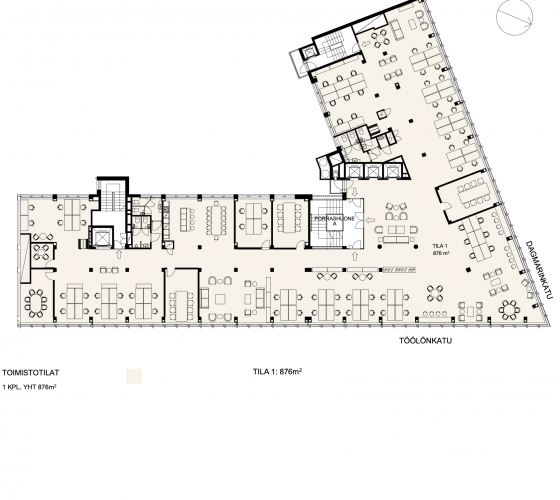
Moderni, 6. kerroksen 876 m² toimisto valtakunnan päätöksenteon ytimessä aivan Eduskuntatalon vieressä
Osoite
Töölönkatu 4, 00100 Helsinki
Tilatyyppi
Toimistotilaa
876 m2
Pohjapiirros
Kiinteistö
Helsingin Kuparitalo on arvokkaan oloinen, mutta moderni kiinteistö valtakunnan päätöksenteon ytimessä aivan Eduskuntatalon vieressä. Historiasta Outokummun pääkonttorina kertoo niin julkisivussa kuin monissa sisätiloissakin käytetty kupari.
Talo tarjoaa henkilöstöravintolan ja poikkeuksellisen hyvät catering-palvelut.
- Aulapalvelu
- Kaukolämpö
- Koneellinen ilmanvaihto
- Jäähdytys
Talo tarjoaa henkilöstöravintolan ja poikkeuksellisen hyvät catering-palvelut.
- Aulapalvelu
- Kaukolämpö
- Koneellinen ilmanvaihto
- Jäähdytys
Sijainti
Kuparitalo sijaitsee Etu-Töölössä hyvien kulkuyhteyksien ja palveluiden varrella, kävelymatkan päässä Kampin keskuksesta.
Pysäköinti
Autohallissa 5 paikkaa, 14 pihapaikkaa. Lisäksi autopaikkoja on vuokrattavissa naapurikiinteistöltä.
Kulkuyhteydet
Metro Kamppi 700 m, Rautatieasema 700 m, Lentoasema 20 km, Länsiväylä 1,8 km, Itäväylä 4 km
Vapautuu
Heti
Rakennusvuosi
1957
Kerros
6 / 8
Energiatehokkuusluokka
Ei lain edellyttämää energiatodistusta
Näkyvällä paikalla
Hissi
Ota yhteyttä
ScanReal Oy LKV
Opus Business Park
Hitsaajankatu 24
00810 Helsinki
info@scanreal.fi
Puh:
Näytä puhelinnumero
020 730 8830
Sopivat toimitilat yhdellä otolla!
Kartoitamme toimitilatarpeesi ja etsimme yrityksellesi parhaiten sopivat vapaat toimitilat. Koska vuokranantajat maksavat palvelumme, on tämä yrityksellesi veloituksetonta.
OTA YHTEYTTÄ - SOVI NÄYTTÖ!
Kaikki kohteemme eivät ole netissä, kerro tilatarpeesi niin kartoitamme vaihtoehdot.
Palvelumme on tilanhakijalle ilmainen
Pyydä lisätietoa
