Vuokrataan toimistotilat - Helsinki
Kuparitalo, Töölönkatu 4, Etu-Töölö, 00100 Helsinki #10844564
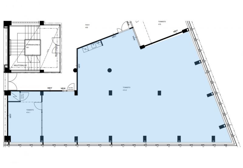
Siisti 223,5 m² toimisto valtakunnan päätöksenteon ytimessä aivan Eduskuntatalon vieressä
Osoite
Töölönkatu 4, 00100 Helsinki
Tilatyyppi
Toimistotilaa
223,5 m2
Pohjapiirros
Kiinteistö
Tämä poikkeuksellisen valoisa huoneisto sijaitsee Kuparitalon “terävässä kärjessä” josta avautuu upeat näköalat joka suuntaan.
Ilmoituksen sisäkuvat ovat yleiskuvia kiinteistön eri tiloista.
Kuparitalo tarjoaa elegantisti uudistettuja toimistotiloja tapahtumien keskipisteessä, eduskunnan naapurissa. Vuonna 1957 Outokumpu Oy:n käyttöön valmistuneessa rakennuksessa pääkonttoritason arvokkuus kohtaa modernin raikkauden. Kaunis ja ajaton kupari elää sen historiassa, julkisivussa ja sisätilojen detaljeissa.
Erikokoisia tiloja on kahdeksassa kerroksessa, ja ne ovat muunneltavissa vuokralaisen toiveiden mukaan.
Kuparitalo sijaitsee Etu-Töölössä erinomaisten kulkuyhteyksien, kulttuuririentojen ja palveluiden keskellä, vajaan vartin kävelymatkan päässä rautatieasemalta ja Kampin keskuksesta.
Ilmoituksen sisäkuvat ovat yleiskuvia kiinteistön eri tiloista.
Kuparitalo tarjoaa elegantisti uudistettuja toimistotiloja tapahtumien keskipisteessä, eduskunnan naapurissa. Vuonna 1957 Outokumpu Oy:n käyttöön valmistuneessa rakennuksessa pääkonttoritason arvokkuus kohtaa modernin raikkauden. Kaunis ja ajaton kupari elää sen historiassa, julkisivussa ja sisätilojen detaljeissa.
Erikokoisia tiloja on kahdeksassa kerroksessa, ja ne ovat muunneltavissa vuokralaisen toiveiden mukaan.
Kuparitalo sijaitsee Etu-Töölössä erinomaisten kulkuyhteyksien, kulttuuririentojen ja palveluiden keskellä, vajaan vartin kävelymatkan päässä rautatieasemalta ja Kampin keskuksesta.
Pysäköinti
Autohallissa 5 paikkaa, 14 pihapaikkaa. Lisäksi autopaikkoja on vuokrattavissa naapurikiinteistöltä.
Kulkuyhteydet
Metro Kamppi 700 m, Rautatieasema 700 m, Lentoasema 20 km, Länsiväylä 1,8 km, Itäväylä 4 km
Vapautuu
Heti
Rakennusvuosi
1957
Kerros
4 / 8
Energiatehokkuusluokka
Ei lain edellyttämää energiatodistusta
Näkyvällä paikalla
Hissi
Ota yhteyttä
ScanReal Oy LKV
Opus Business Park
Hitsaajankatu 24
00810 Helsinki
info@scanreal.fi
Puh:
Näytä puhelinnumero
020 730 8830
Sopivat toimitilat yhdellä otolla!
Kartoitamme toimitilatarpeesi ja etsimme yrityksellesi parhaiten sopivat vapaat toimitilat. Koska vuokranantajat maksavat palvelumme, on tämä yrityksellesi veloituksetonta.
OTA YHTEYTTÄ - SOVI NÄYTTÖ!
Kaikki kohteemme eivät ole netissä, kerro tilatarpeesi niin kartoitamme vaihtoehdot.
Palvelumme on tilanhakijalle ilmainen
Pyydä lisätietoa
