Vuokrataan toimistotilat - Espoo
Keilaranta 4-8, Keilaniemi, 02150 Espoo #10844399
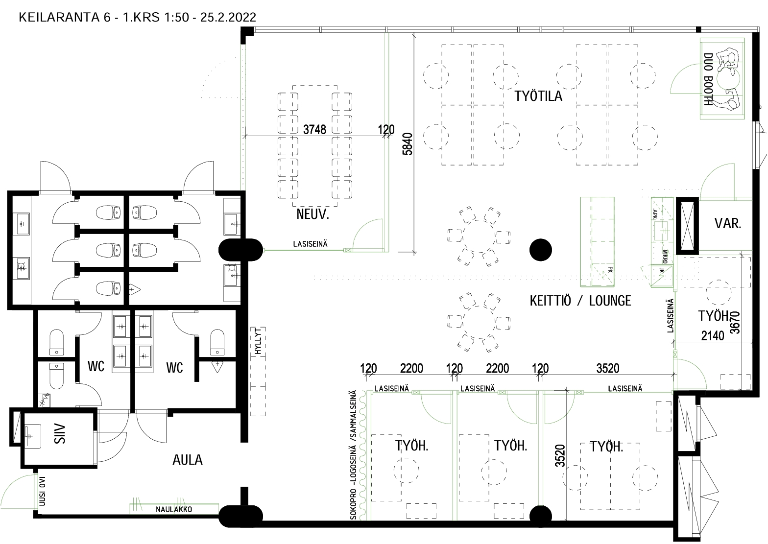
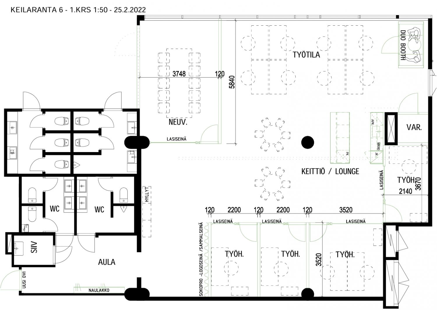
Keilaranta tarjoaa tyylikkäät puitteet työskentelylle. Tältä erinomaisen sijainnin kiinteistöltä löytyy myös kattavat palvelut, joihin kuuluu esimerkiksi aulapalvelut, kaksi lounasravintolaa, kuntosali sekä auditorio ja neuvottelutilat. Keskeinen sijainti mahdollistaa sujuvan saapumisen monelta eri suunnalta.
Me Croisettella autamme teitä löytämään teille parhaat tilat! Olemme puolueettomia asiantuntijoita ja tunnemme toimitilamarkkinat, talot sekä tilat vankalla kokemuksella. Meillä on välityksessä kaikki toimitilat ja tiedämme niiden alustavat vuokratasot.
Tehtävämme on tehdä toimitilahaustanne onnistunutta ja helppoa. Saamme palkkiomme kiinteistönomistajalta, joten sinulle palvelumme on täysin maksuton. Jos kiinnostuit, ota yhteyttä sähköpostitse osoitteeseen vuokraus@croisette.fi tai soita numeroon +358 4 00585857.
Croisette Real Estate Partner
Erottajankatu 5 A 6, 00130 Helsinki
Näytä puhelinnumero
+358 400 585 857
Croisette Vuokraus
Näytä puhelinnumero
+358400585857
