Vuokrataan toimistotilat - Helsinki
Urho Kekkosen Katu 4-6, Kamppi, 00100 Helsinki #10844395
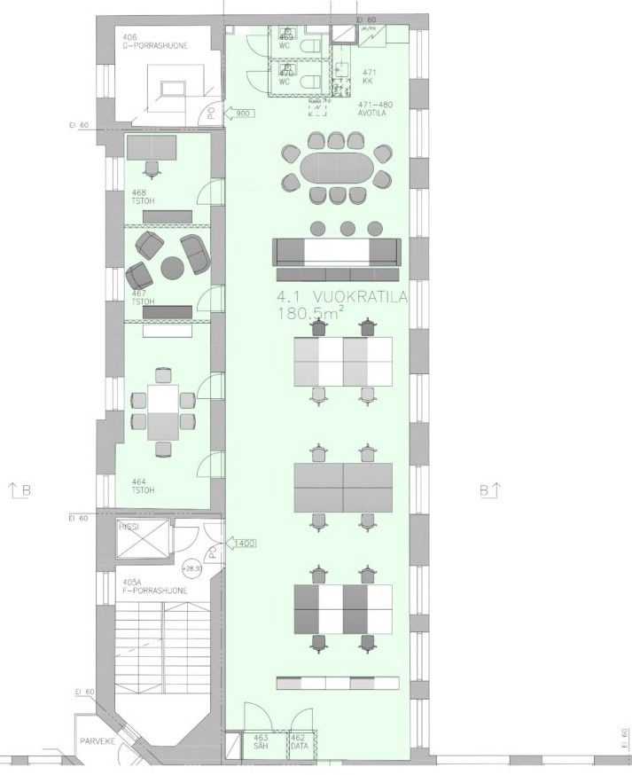
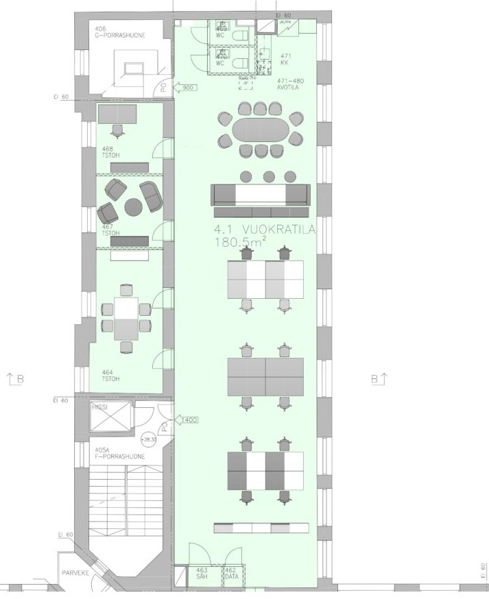
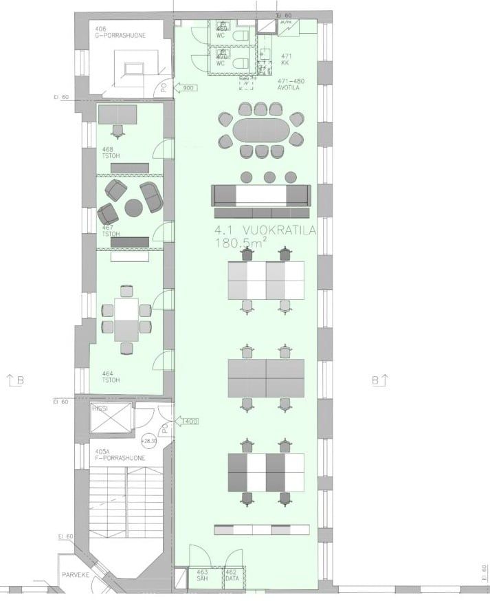
Käytännöllinen toimistotila rakennuksen rauhallisessa F-portaassa. Tilassa on avokonttoria sekä toimistohuoneita. Avokonttorin päädystä löytyvät oma minikeittiö sekä wc-tilat. Tämä tila on mahdollista yhdistää myös ylemmän kerroksen tilaan luoden 348,5 m2 kokonaisuuden. Käynti sisäpihan kautta.
Vuonna 1931 asunnoiksi valmistunut, melkeinpä ikoninen talo jonka moni tuntee Tavastian pitkäaikaisena sijaintipaikkana. Talo valmistui aikanaan Kampinkadulle, joka sai vuonna 1980 nykyisen nimensä presidentti Urho Kaleva Kekkosen mukaan. Kekkonen asui perheineen neljännesvuosisadan ajan vuokralaisena Hämäläisten talossa 1931-1956, jolloin hän tuli valituksi Tasavallan Presidentiksi.
Kiinteistöstä on pidetty erinomaista huolta ja se kätkee sisäänsä rokkiklubin lisäksi toimistoja, lääkäri- ja silmälääkäriaseman, levykaupan, useita ravintoloita etc. Sekä ilmanvaihto että kaistat datalle ovat kunnossa vaativaankin tarpeeseen. Sijainti ei voisi olla keskeisempi! Kaikki palvelut, metro, juna, ratikat, lounaat, viihde – kaikki aivan vieressä. Sateen sattuessa kadun yli ja Kampin Keskuksen kautta sisäkulun kautta vaikka minne.
Croisette on uusi ja innovatiivinen toimitilojen välitysyritys Suomessa. Meillä on vahva halu auttaa teitä löytämään paras toimitilaratkaisu mahdollisimman vaivattomasti.
Huomaathan, että kaikki vapaat ja vapautuvat tilat ovat kauttamme saatavilla. Osa tiloista on hiljaisessa markkinoinnissa, mutta ottamalla meihin yhteyttä saat nekin tietoosi.
Palvelumme on tilanhakijoille täysin maksutonta.
Hissi
Croisette Real Estate Partner
Erottajankatu 5 A 6, 00130 Helsinki
Näytä puhelinnumero
+358 400 585 857
Croisette Vuokraus
Näytä puhelinnumero
+358400585857
