Vuokrataan toimistotilat - Tampere
Haarlankatu 4, Onkiniemi, 33230 Tampere #10844391
Osoite
Haarlankatu 4, 33230 Tampere
Tilatyyppi
Toimistotilaa
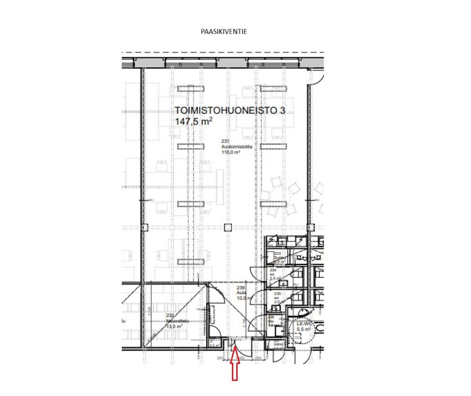
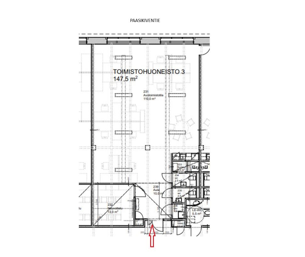
147,5 m2
Muuta
Tampereen historiallinen Haarlan paperitehdaskiinteistö tarjoaa monipuolisia toimitiloja.
Bertel Strömmerin suunnittelemassa tehdasrakennuksessa on toiminut v. 1920-1989 Kauppaneuvos Rafael Haarlan perustama Haarlan Paperitehdas Oy.
Tänä päivänä kiinteistö tarjoaa monipuolisia toimitiloja lukuisille eri alojen yrityksille. Tiloja on vuosien varrella remontoitu ja uudistettu ja siellä nykyaikaistetaan ja rakennetaan kokonaan uusia tiloja jatkuvasti.
Tämä punatiilinen kiinteistö sijaitsee heti Rantatunnelin länsipuolen tunnelin suulla, ja sinne on erittäin hyvät kulkuyhteydet niin omalla autolla kuin ratikalla tai paikallisbussillakin. Pyöräilyreitti kulkee Näsijärven rannassa kiinteistölle. Keskustan ja Lielahden palveluihin on lyhyt matka, samoin kuin Särkänniemeen ja Santalahden puistoon. Paasikiven tien liikenne on erittäin vilkas ja näkyvyys kiinteistölle erittäin hyvä.
Pihassa on reilusti pysäköintitilaa. Peruspysäköintipaikat ovat ilmaisia kiinteistön vuokralaisille ja asiakkaille. Lämmitystolpallisia paikkoja on mahdollisuus vuokrata hyvin kohtuulliseen hintaan. Pihassa on myös sähköautoille latausmahdollisuus. Pihapiirin vanhassa kaarevassa pannuhuoneessa sijaitsee lounas-kahvio. Osaan kiinteistön tiloista on yhteys myös suurella tavarahissillä.
Vuokrattava tila:
Uuden veroista, tyylikästä toimistotilaa 2. kerroksesta.
Tilan koko on 147,5m2. Toimistossa iso avotila, yksi erillinen työ-/neuvotteluhuone, 2x wc joista toisen yhteydessä myös suihku, siivouskomero ja keittiöseinä avotilan yhteydessä. Lukollinen serverikaappi, ovipuhelin ja kaukosäätimellä toimivat, auringonsäteitä hylkivät kaihtimet, jotka kuitenkin päästävät valon läpi.
Toimistossa on koneellinen ilmanvaihto ja jäähdytys. Lattioihin on asennettu helppohoitoinen ja kulutusta kestävä sekä akustoiva palamatto. Toimiston ikkunat ovat Pispalanharjun suuntaan. Tilat ovat varustelultaan moderneja mutta myös vanhaa teollista punatiiliseinää on jätetty toimistojen ikkunaseinissä ja käytävillä.
Tilaan on mahdollista rakentaa esim. lisää toimistohuoneita ja/tai hiljaisia tiloja.
Tiila sijaitsee E-rapussa, jossa hissi. Toimistokäytävällä myös suuri tavarahissi käytössä.
Tila vapautuu nykyiseltä vuokralaiselta 1.2.2026.
Kuvat ovat vastaavanlaisesta viereisestä tilasta.
Ole yhteydessä, mennään tutustumaan paikan päälle.
Tilaa pääsee joustavasti katsomaan:
Annina Niemi
Myyntipäällikkö, LKV
annina.niemi@catella.fi
040 4812 220
Tilanhakijalle palvelumme ovat maksuttomia.
Catella Property Oy on valtakunnallinen toimitilojen vuokraukseen ja myyntiin keskittynyt kiinteistönvälitysyritys.
Kysy paikallisilta ammattitaitoisilta välittäjiltämme myös muita välityksessämme olevia toimitilakohteita.
Välittäjiemme yhteystiedot ja lisää välitettäviä tilakohteita verkkosivuillamme: www.toimitilat.catella.fi.
Ota yhteyttä!
Bertel Strömmerin suunnittelemassa tehdasrakennuksessa on toiminut v. 1920-1989 Kauppaneuvos Rafael Haarlan perustama Haarlan Paperitehdas Oy.
Tänä päivänä kiinteistö tarjoaa monipuolisia toimitiloja lukuisille eri alojen yrityksille. Tiloja on vuosien varrella remontoitu ja uudistettu ja siellä nykyaikaistetaan ja rakennetaan kokonaan uusia tiloja jatkuvasti.
Tämä punatiilinen kiinteistö sijaitsee heti Rantatunnelin länsipuolen tunnelin suulla, ja sinne on erittäin hyvät kulkuyhteydet niin omalla autolla kuin ratikalla tai paikallisbussillakin. Pyöräilyreitti kulkee Näsijärven rannassa kiinteistölle. Keskustan ja Lielahden palveluihin on lyhyt matka, samoin kuin Särkänniemeen ja Santalahden puistoon. Paasikiven tien liikenne on erittäin vilkas ja näkyvyys kiinteistölle erittäin hyvä.
Pihassa on reilusti pysäköintitilaa. Peruspysäköintipaikat ovat ilmaisia kiinteistön vuokralaisille ja asiakkaille. Lämmitystolpallisia paikkoja on mahdollisuus vuokrata hyvin kohtuulliseen hintaan. Pihassa on myös sähköautoille latausmahdollisuus. Pihapiirin vanhassa kaarevassa pannuhuoneessa sijaitsee lounas-kahvio. Osaan kiinteistön tiloista on yhteys myös suurella tavarahissillä.
Vuokrattava tila:
Uuden veroista, tyylikästä toimistotilaa 2. kerroksesta.
Tilan koko on 147,5m2. Toimistossa iso avotila, yksi erillinen työ-/neuvotteluhuone, 2x wc joista toisen yhteydessä myös suihku, siivouskomero ja keittiöseinä avotilan yhteydessä. Lukollinen serverikaappi, ovipuhelin ja kaukosäätimellä toimivat, auringonsäteitä hylkivät kaihtimet, jotka kuitenkin päästävät valon läpi.
Toimistossa on koneellinen ilmanvaihto ja jäähdytys. Lattioihin on asennettu helppohoitoinen ja kulutusta kestävä sekä akustoiva palamatto. Toimiston ikkunat ovat Pispalanharjun suuntaan. Tilat ovat varustelultaan moderneja mutta myös vanhaa teollista punatiiliseinää on jätetty toimistojen ikkunaseinissä ja käytävillä.
Tilaan on mahdollista rakentaa esim. lisää toimistohuoneita ja/tai hiljaisia tiloja.
Tiila sijaitsee E-rapussa, jossa hissi. Toimistokäytävällä myös suuri tavarahissi käytössä.
Tila vapautuu nykyiseltä vuokralaiselta 1.2.2026.
Kuvat ovat vastaavanlaisesta viereisestä tilasta.
Ole yhteydessä, mennään tutustumaan paikan päälle.
Tilaa pääsee joustavasti katsomaan:
Annina Niemi
Myyntipäällikkö, LKV
annina.niemi@catella.fi
040 4812 220
Tilanhakijalle palvelumme ovat maksuttomia.
Catella Property Oy on valtakunnallinen toimitilojen vuokraukseen ja myyntiin keskittynyt kiinteistönvälitysyritys.
Kysy paikallisilta ammattitaitoisilta välittäjiltämme myös muita välityksessämme olevia toimitilakohteita.
Välittäjiemme yhteystiedot ja lisää välitettäviä tilakohteita verkkosivuillamme: www.toimitilat.catella.fi.
Ota yhteyttä!
Vapautuu
Kysy
Kerros
2.
Ota yhteyttä
Catella Property Oy
Hämeenkatu 13b A, 33100 Tampere
Näytä puhelinnumero
010 5220 100
Annina Niemi
Näytä puhelinnumero
040 4812 220
Pyydä lisätietoa
