Vuokrataan toimistotilat - Helsinki
Takomo Base, Takomotie 1-3, Pitäjänmäki, 00380 Helsinki #10844363
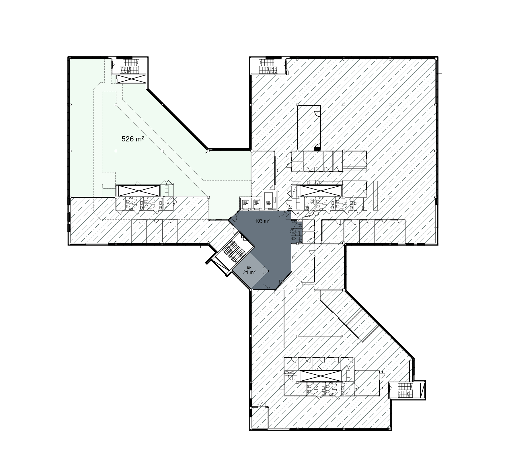
Valoisa 3. kerroksen 526 m² toimisto Takomo Basessa, Pitäjänmäessä
Osoite
Takomotie 1-3, 00380 Helsinki
Tilatyyppi
Toimistotilaa
526 m2
Pohjapiirros
Kiinteistö
Tämä 526 m² kolmannen kerroksen toimistotila tarjoaa miellyttävät näkymät Takomotielle ja sitä reunustavaan vehreään puustoon. Tilassa on erinomainen huonekorkeus (2,5–3,1 m), runsaasti ikkunoita ja luonnonvaloa, mikä luo avaran ja inspiroivan työilmapiirin. Tilat remontoidaan vuokralaisen toiveiden mukaisesti ennen muuttoa juuri sellaisiksi kuin haluat.
Toimitila on varusteltu kaikilla nykyaikaisilla mukavuuksilla: koneellinen ilmanvaihto, jäähdytys ja kaukolämpö takaavat miellyttävän sisäilman vuoden ympäri, ja tiloissa on led-yleisvalaistus sekä sähköinen kulunvalvonta turvallista työskentelyä varten. Rakennus on esteetön, ja käytössä on sekä henkilöhissi että tavarahissi. Varastotilaa on tarvittaessa vuokrattavissa kiinteistöstä.
Takomo Base on todellinen monikäyttäjätalo, jossa toimii noin 20 erilaista yritystä useilta toimialoilta – aina pääkonttoreista ja konsultoinnista e-urheiluun, liikuntaan, terveydenhuoltoon ja jopa 24/7 päivystävään eläinsairaalaan. Kiinteistön palvelut tekevät työpäivistä sujuvia ja viihtyisiä: saman katon alta löytyvät lounasravintola, kokoustilat, kuntosali, aulapalvelu sekä autopesu. Lisäksi kiinteistön etupihalla on asiakaspysäköinti ja runsaasti halli- ja pihapaikkoja henkilökunnalle.
Sijainti Pitäjänmäen ja Tali-alueen rajalla tarjoaa monipuoliset liikunta- ja ulkoilumahdollisuudet – tenniksestä golfiin, lenkkeilyyn ja talvisin hiihtoon. Alueelta on myös erinomaiset liikenneyhteydet julkisilla ja omalla autolla eri puolille pääkaupunkiseutua.
Takomo Base tarjoaa modernin, joustavan ja palvelurikkaan työympäristön, jossa viihtyvät niin ihmiset kuin yrityksetkin. Tule tutustumaan ja suunnitellaan yhdessä toimitila, joka tukee juuri sinun liiketoimintaasi parhaalla mahdollisella tavalla.
Toimitila on varusteltu kaikilla nykyaikaisilla mukavuuksilla: koneellinen ilmanvaihto, jäähdytys ja kaukolämpö takaavat miellyttävän sisäilman vuoden ympäri, ja tiloissa on led-yleisvalaistus sekä sähköinen kulunvalvonta turvallista työskentelyä varten. Rakennus on esteetön, ja käytössä on sekä henkilöhissi että tavarahissi. Varastotilaa on tarvittaessa vuokrattavissa kiinteistöstä.
Takomo Base on todellinen monikäyttäjätalo, jossa toimii noin 20 erilaista yritystä useilta toimialoilta – aina pääkonttoreista ja konsultoinnista e-urheiluun, liikuntaan, terveydenhuoltoon ja jopa 24/7 päivystävään eläinsairaalaan. Kiinteistön palvelut tekevät työpäivistä sujuvia ja viihtyisiä: saman katon alta löytyvät lounasravintola, kokoustilat, kuntosali, aulapalvelu sekä autopesu. Lisäksi kiinteistön etupihalla on asiakaspysäköinti ja runsaasti halli- ja pihapaikkoja henkilökunnalle.
Sijainti Pitäjänmäen ja Tali-alueen rajalla tarjoaa monipuoliset liikunta- ja ulkoilumahdollisuudet – tenniksestä golfiin, lenkkeilyyn ja talvisin hiihtoon. Alueelta on myös erinomaiset liikenneyhteydet julkisilla ja omalla autolla eri puolille pääkaupunkiseutua.
Takomo Base tarjoaa modernin, joustavan ja palvelurikkaan työympäristön, jossa viihtyvät niin ihmiset kuin yrityksetkin. Tule tutustumaan ja suunnitellaan yhdessä toimitila, joka tukee juuri sinun liiketoimintaasi parhaalla mahdollisella tavalla.
Vapautuu
Heti
Rakennusvuosi
1999
Kerros
3
Energiatehokkuusluokka
Ei lain edellyttämää energiatodistusta
Näkyvällä paikalla
Ota yhteyttä
ScanReal Oy LKV
Opus Business Park
Hitsaajankatu 24
00810 Helsinki
info@scanreal.fi
Puh:
Näytä puhelinnumero
020 730 8830
Sopivat toimitilat yhdellä otolla!
Kartoitamme toimitilatarpeesi ja etsimme yrityksellesi parhaiten sopivat vapaat toimitilat. Koska vuokranantajat maksavat palvelumme, on tämä yrityksellesi veloituksetonta.
Palvelumme on tilanhakijalle ilmainen
Pyydä lisätietoa
