Myydään tuotantotilat - Muurame
Ratastie 10, Teollisuuskylä, 40950 Muurame #10844345
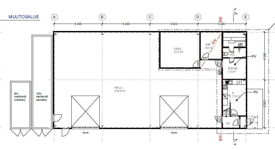
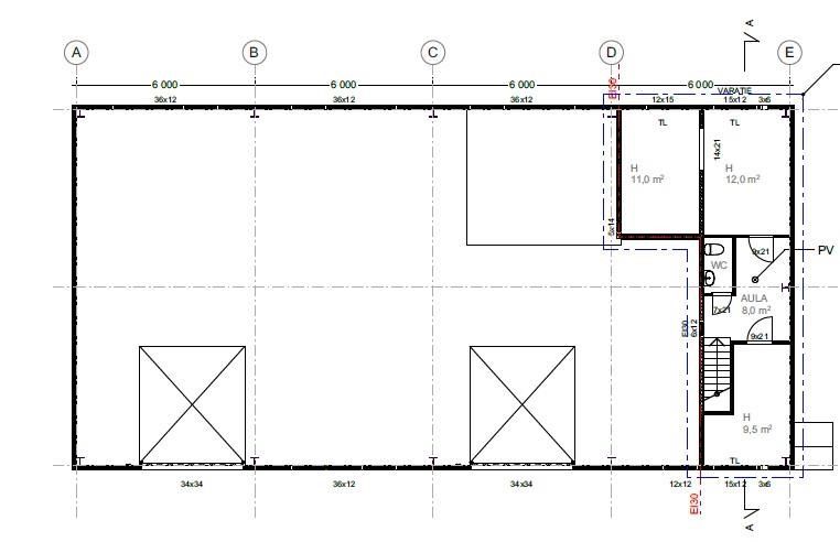
Muuramen teollisuuskylässä v. 1985 rakennettu siistikuntoinen ja ryhdikäs teollisuushalli. Rakennuksessa on yhtenäistä hallitilaa (halliin tehty myös erillinen neuvotteluhuone). Päädyssä katutasossa keittiö-/taukotila sekä saunatilat. Päätyyn, toiseen kerrokseen on tehty lisäksi kolme toimistohuonetta. Hyvä varustetaso; ilmalämpöpumppulämmitys hallitilassa, voimavirta, nosturi 0,5 tn, koneellinen iv, paineilmaverkosto. Oma asfaltoitu tontti, jossa rakennusoikeutta jäjellä runsaasti (käyttämättä n.850 kem2). Heti vapaa! Sovi esittely.
säilytyskontti n. 25 m2, johon käynti hallista
OP Koti Keski-Suomi Oy LKV
Kauppakatu
Kauppakatu 22
40100 JYVÄSKYLÄ
ma - pe 9.00-17.00
Janne Kotamäki
Myyntipäällikkö, LKV, YKV / Toimitilat
Näytä puhelinnumero
050 550 8945
