Vuokrataan toimistotilat - Helsinki
Urho Kekkosen Katu 4-6, Kamppi, 00100 Helsinki #10844279
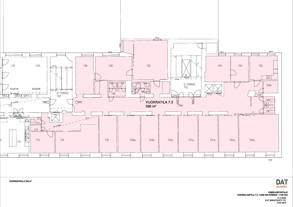
Vuokrattavissa toimistotilaa Kampista, Hämäläisten talosta.
Tämä 396 m² toimistotila sijaitsee kiinteistön 7. kerroksessa. Toimistossa on sekä huoneita että avotilaa. Tilaan on kaksi käyntiä, toinen E-portaan kautta ja toinen B-portaasta. Toimistossa on koneellinen ilmanvaihto, tulo ja poisto sekä huonekohtainen kaukojäähdytys. Tilassa on kuityhteys. Tilaa on mahdollista remontoida vuokralaisen tarpeen mukaan.
Hämäläisten talo sijaitsee aivan Helsingin ydinkeskustassa, Kampin kauppakeskusta vastapäätä. Kiinteistö on tunnettu Helsingin Yliopiston Hämäläis-Osakunnan toiminnasta. Kiinteistön lähellä useat keskustan kauppakeskukset ja muut palvelut.
Kysy lisää numerosta 044 723 4700 tai info@bref.fi. Palvelumme on tilanhakijoille ilmainen.
Bureau Real Estate Finland Oy
Lars Sonckin kaari 16, 02600 Espoo
Näytä puhelinnumero
0447234700
Bureau Real Estate Finland Oy
https://www.bref.fi