Vuokrataan toimistotilat - Tampere
Kuninkaankatu 21, Keskusta, 33210 Tampere #10844265
Osoite
Kuninkaankatu 21, 33210 Tampere
Tilatyyppi
Toimistotilaa
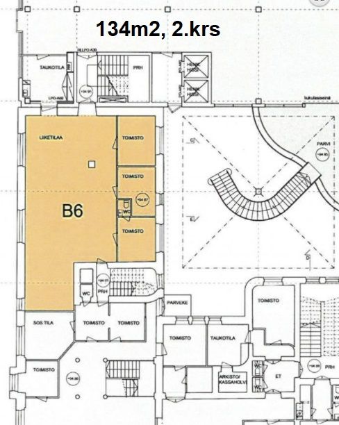
134 m2
Tilajako
Jaettavissa
Muuta
Kuninkaankadun ja Kauppakadun kulmassa sijaitsee yksi Tampereen kauneimmista rakennuksista.
Tämä nk. Tirkkosen talo, on v. 1901 rakennuttanut kauppaneuvos Tirkkonen. Tämän puhtaan jugendtyylisen liiketalon on suunnitelleet arkkitehdit Birger Federley ja Lars Sonck.
Taloa on laajennettu v. 1986 ja 2010 -luvulla. Sisäpiha on katettu ja siellä toimii kahvila-ravintola.
Katutasossa on liiketiloja ja ylemmissä kerroksissa on monenlaista toimistotilaa.
Hämeenkatu on kulman takana, samoin Keskustori. Paikallisbussien ja ratikan pysäkit ovat hyvin lähellä. Lähistöltä löytyy useampi pysäköintitlao autoilijoille. Kiinteistöllä on myös oma autohalli, josta vapaita paikkoja voi tiedustella.
Rakennuksen B-osa on vanhaa alkuperäistä, historiallista kiinteistönosaa. Siellä on runsaasti hienoja kakluuneja, kattomaalauksia ja rappukäytävä on upea.
Vapaana Kuninkaankadun (kävelykadun) puolella toisen kerroksen näppärän kokoinen toimisto 134 m2.
Tila koostuu erillisistä huoneista, avotilasta ja taukotilasta.
Jos etsit yrityksellenne persoonallista tilaa, arvokkaassa kulttuurihistoriallisesti merkittävässä rakennuksessa, tämä voisi olla teitä varten.
Ole yhteydessä:
Annina Niemi
Myyntipäällikkö, LKV
annina.niemi@catella.com
p. 040 4812 220
Tilanhakijalle palvelumme ovat maksuttomia.
Catella Property Oy on valtakunnallinen toimitilojen vuokraukseen ja myyntiin keskittynyt kiinteistönvälitysyritys.
Kysy paikallisilta ammattitaitoisilta välittäjiltämme myös muita välityksessämme olevia toimitilakohteita.
Välittäjiemme yhteystiedot ja lisää välitettäviä tilakohteita verkkosivuillamme: www.toimitilat.catella.fi.
Tämä nk. Tirkkosen talo, on v. 1901 rakennuttanut kauppaneuvos Tirkkonen. Tämän puhtaan jugendtyylisen liiketalon on suunnitelleet arkkitehdit Birger Federley ja Lars Sonck.
Taloa on laajennettu v. 1986 ja 2010 -luvulla. Sisäpiha on katettu ja siellä toimii kahvila-ravintola.
Katutasossa on liiketiloja ja ylemmissä kerroksissa on monenlaista toimistotilaa.
Hämeenkatu on kulman takana, samoin Keskustori. Paikallisbussien ja ratikan pysäkit ovat hyvin lähellä. Lähistöltä löytyy useampi pysäköintitlao autoilijoille. Kiinteistöllä on myös oma autohalli, josta vapaita paikkoja voi tiedustella.
Rakennuksen B-osa on vanhaa alkuperäistä, historiallista kiinteistönosaa. Siellä on runsaasti hienoja kakluuneja, kattomaalauksia ja rappukäytävä on upea.
Vapaana Kuninkaankadun (kävelykadun) puolella toisen kerroksen näppärän kokoinen toimisto 134 m2.
Tila koostuu erillisistä huoneista, avotilasta ja taukotilasta.
Jos etsit yrityksellenne persoonallista tilaa, arvokkaassa kulttuurihistoriallisesti merkittävässä rakennuksessa, tämä voisi olla teitä varten.
Ole yhteydessä:
Annina Niemi
Myyntipäällikkö, LKV
annina.niemi@catella.com
p. 040 4812 220
Tilanhakijalle palvelumme ovat maksuttomia.
Catella Property Oy on valtakunnallinen toimitilojen vuokraukseen ja myyntiin keskittynyt kiinteistönvälitysyritys.
Kysy paikallisilta ammattitaitoisilta välittäjiltämme myös muita välityksessämme olevia toimitilakohteita.
Välittäjiemme yhteystiedot ja lisää välitettäviä tilakohteita verkkosivuillamme: www.toimitilat.catella.fi.
Vapautuu
vapaa
Kerros
2
Jaettavissa
Ota yhteyttä
Catella Property Oy
Hämeenkatu 13b A, 33100 Tampere
Näytä puhelinnumero
010 5220 100
Annina Niemi
Näytä puhelinnumero
040 4812 220
Pyydä lisätietoa
