Vuokrataan toimistotilat - Helsinki
Salomonkatu 17 A, Keskusta, 00100 Helsinki #10844253
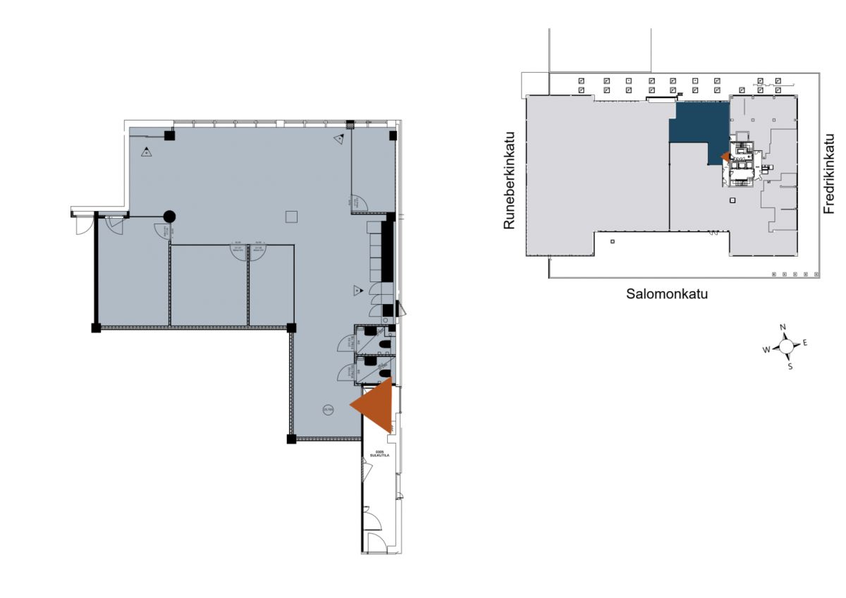
Vuokrataan 3.kerroksen toimistotila Kampin Autotalosta. Toimisto koostuu avotilasta ja muutamasta huoneesta. Tiloissa on jäähdytys ja kiinteistöön tulee valokuitu.
Kiinteistössä on tehty mittava perusparannushanke muutama vuosi sitten. Erinomaiset julkiset kulkuyhteydet, metro- ja linja-autoasema aivan vieressä ja juna-asemalle muutaman minuutin kävelymatka. Autoilijoille löytyy parkkipaikkoja talon alta autohallista. Pyöräilijöille pyöräparkki, suihkut ja pukuhuonetilat. Kivijalassa ravintolamaailma.
Talon ylimmästä kerroksessa upeat erikseen vuokrattavissa olevat kokous- ja saunatilat.
Lisätietoja soita 020 730 4530 tai info@repoint.fi. Palvelumme on tilanhakijalle ilmainen.
Repoint Toimitilat Oy
Itälahdenkatu 22 B, 00210 Helsinki
Näytä puhelinnumero
020 730 4530
Lisätietoja soita Näytä puhelinnumero 020 730 4530 tai info@repoint.fi
https://repoint.fi/