Vuokrataan toimistotilat - Helsinki
Annankatu 34, Kamppi, 00100 Helsinki #10844251
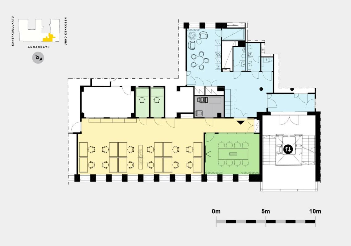
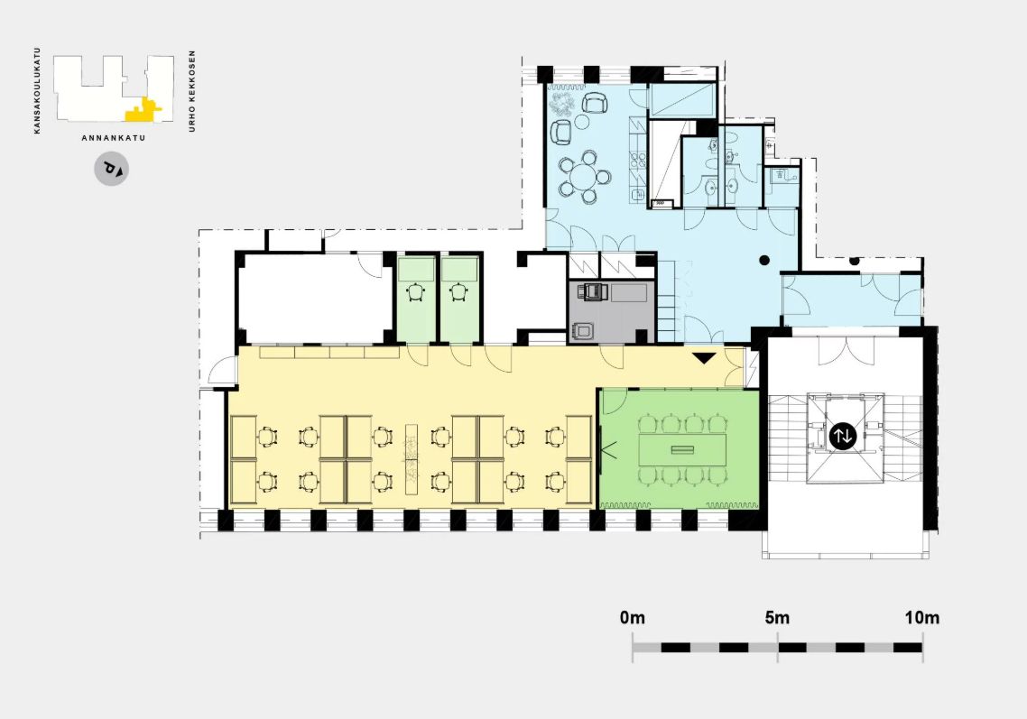
Kampin Huippu - Toimisto 149,5 m²
Osoite
Annankatu 34, 00100 Helsinki
Tilatyyppi
Toimistotilaa
150 m2
Pohjapiirros
Kiinteistö
Tyylikäs ja tehokas toimistotila seitsemännessä kerroksessa tarjoaa 149,5 neliötä toimivaa työympäristöä, jossa yhdistyvät oma rauha ja yhteisölliset tilat. Varsinainen toimisto on kooltaan 120 m² ja sisältää avotyöalueen, neuvottelutilan, kaksi vetäytymistilaa sekä varasto- tai kopiointitilan. Tila on suunniteltu tukemaan monipuolista työskentelyä ja tarjoaa hyvät puitteet niin tiimityöhön kuin keskittymistä vaativiin tehtäviin.
Lisäksi pinta-alaan sisältyy osuus (29,5 m²) jaettavista yhteistiloista, joihin kuuluvat viihtyisä taukokeittiö, wc-tilat sekä aulalounge. Vuokranmaksu on pinta-alan 149,5 m2 perusteella. Tila on heti vapaa!
Kampin Huippu – Kasvualusta yrityksesi menestykselle
Sijainti, joka yhdistää kaiken
Kampin Huippu sijaitsee Helsingin sydämessä, tarjoten yrityksellesi ainutlaatuisen sijainnin, jossa työ ja liikkuminen sujuvat vaivattomasti. Kiinteistöön on erinomaiset yhteydet:
Sisäyhteys Kampin keskukseen, metroasemalle ja bussiterminaaliin
Raitiovaunut kulkevat aivan vierestä
Lyhyt kävelymatka Helsingin päärautatieasemalle
Autoilijoille suora hissiyhteys P-CityForumiin, jossa myös sähköautojen latausmahdollisuus
Pyöräilijöille lämmin pyöräparkki, tilavat pukuhuoneet ja suihkut, kuivauskaapit ja pyöränhuoltopiste
Palvelut, jotka tukevat arkea ja elämyksiä
Kampin Huipun toimitilat on suunniteltu tukemaan yritysten arkea ja työhyvinvointia:
Muunneltavat ja valoisat toimistotilat, jotka mukautuvat eri tarpeisiin
Tyylikäs yleisilme ja laadukkaat materiaalit, jotka luovat inspiroivan työympäristön
Tasokkaat aulapalvelut, vuokrattavat neuvottelutilat ja kokouspalvelut
Oma lounasravintola sekä satoja ravintolavaihtoehtoja lähikortteleissa, catering-palvelut
Kulttuuri- ja palvelutarjonta mahdollistaa yhteisöllisyyttä (afterworkit, taide-elämykset yms.)
Edustustila, saunaosasto ja kattoterassi kahdeksannessa kerroksessa tarjoavat upeat puitteet edustamiseen ja rentoutumiseen
Vastuullisuus, joka näkyy teoissa
Kampin Huippu on sitoutunut kestävään kehitykseen. Kiinteistöllä on BREEAM In-Use Very Good -ympäristösertifikaatti, joka kertoo vastuullisista ratkaisuista ja energiatehokkuudesta.
Ota yhteyttä
Kiinnostuitko? Ota yhteyttä ja tule tutustumaan tiloihin!
Toimitilavälityspalvelumme on tilanhakijalle maksuton.
Lisäksi pinta-alaan sisältyy osuus (29,5 m²) jaettavista yhteistiloista, joihin kuuluvat viihtyisä taukokeittiö, wc-tilat sekä aulalounge. Vuokranmaksu on pinta-alan 149,5 m2 perusteella. Tila on heti vapaa!
Kampin Huippu – Kasvualusta yrityksesi menestykselle
Sijainti, joka yhdistää kaiken
Kampin Huippu sijaitsee Helsingin sydämessä, tarjoten yrityksellesi ainutlaatuisen sijainnin, jossa työ ja liikkuminen sujuvat vaivattomasti. Kiinteistöön on erinomaiset yhteydet:
Sisäyhteys Kampin keskukseen, metroasemalle ja bussiterminaaliin
Raitiovaunut kulkevat aivan vierestä
Lyhyt kävelymatka Helsingin päärautatieasemalle
Autoilijoille suora hissiyhteys P-CityForumiin, jossa myös sähköautojen latausmahdollisuus
Pyöräilijöille lämmin pyöräparkki, tilavat pukuhuoneet ja suihkut, kuivauskaapit ja pyöränhuoltopiste
Palvelut, jotka tukevat arkea ja elämyksiä
Kampin Huipun toimitilat on suunniteltu tukemaan yritysten arkea ja työhyvinvointia:
Muunneltavat ja valoisat toimistotilat, jotka mukautuvat eri tarpeisiin
Tyylikäs yleisilme ja laadukkaat materiaalit, jotka luovat inspiroivan työympäristön
Tasokkaat aulapalvelut, vuokrattavat neuvottelutilat ja kokouspalvelut
Oma lounasravintola sekä satoja ravintolavaihtoehtoja lähikortteleissa, catering-palvelut
Kulttuuri- ja palvelutarjonta mahdollistaa yhteisöllisyyttä (afterworkit, taide-elämykset yms.)
Edustustila, saunaosasto ja kattoterassi kahdeksannessa kerroksessa tarjoavat upeat puitteet edustamiseen ja rentoutumiseen
Vastuullisuus, joka näkyy teoissa
Kampin Huippu on sitoutunut kestävään kehitykseen. Kiinteistöllä on BREEAM In-Use Very Good -ympäristösertifikaatti, joka kertoo vastuullisista ratkaisuista ja energiatehokkuudesta.
Ota yhteyttä
Kiinnostuitko? Ota yhteyttä ja tule tutustumaan tiloihin!
Toimitilavälityspalvelumme on tilanhakijalle maksuton.
Vapautuu
Kysy
Kerros
7
Ota yhteyttä
Logistila Oy
Kylätie 11-13, 00320 HELSINKI
Karoliina Turppo
Näytä puhelinnumero
050 345 3258
Pyydä lisätietoa
