Vuokrataan toimistotilat - Helsinki
Annankatu 34, Kamppi, 00100 Helsinki #10844249
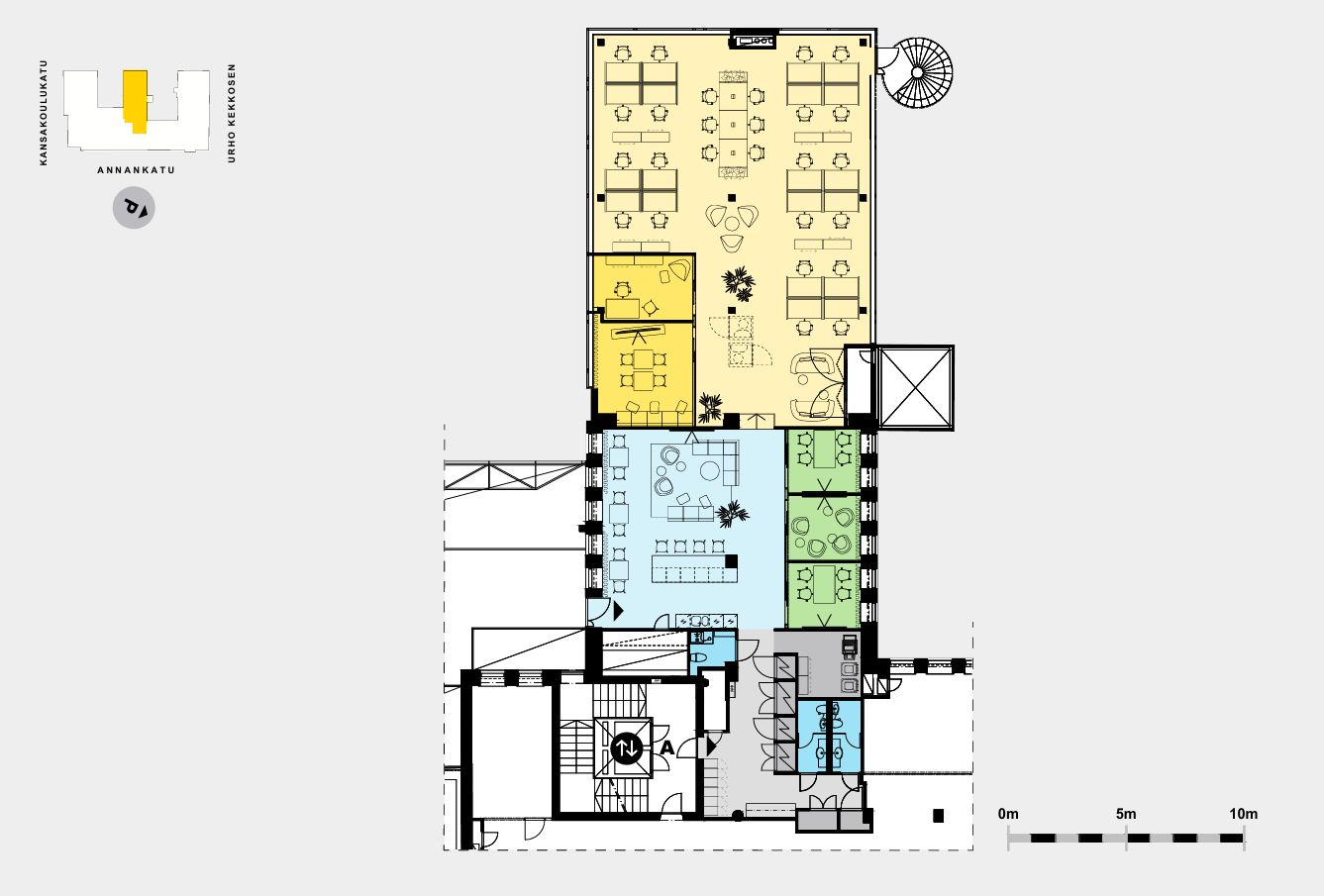
Kampin Huippu - Toimisto 333,5 m²
Osoite
Annankatu 34, 00100 Helsinki
Tilatyyppi
Toimistotilaa
334 m2
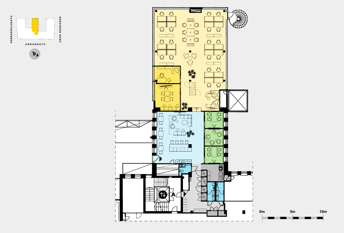
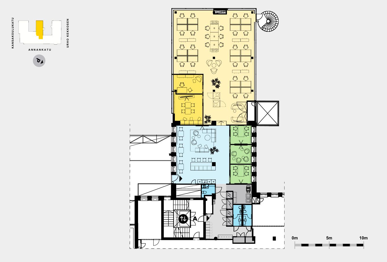
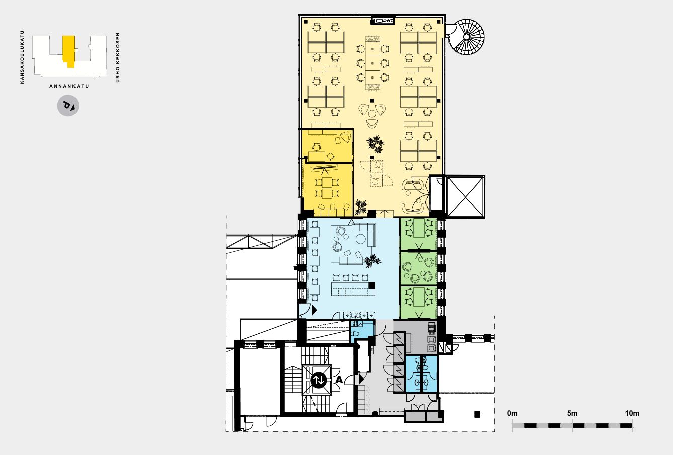
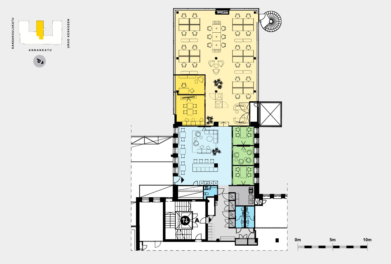
Pohjapiirros
Kiinteistö
Valoisa ja moderni toimistotila kuudennessa kerroksessa tarjoaa avaruutta ja toimivuutta tehokkaaseen työskentelyyn. Sisäpihan rauhallinen sijainti yhdistyy tyylikkääseen sisustukseen ja harkittuun tilaratkaisuun, jossa on kaikki tarvittava sujuvaan arkeen.
Tilassa on viihtyisä working cafe lounge, joka kutsuu rentoon työskentelyyn ja kohtaamisiin. Kolme kompaktia neuvottelutilaa tukevat tehokasta tiimityötä ja asiakastapaamisia, kun taas avotyöalue ja kaksi erillistä työhuonetta tarjoavat joustavuutta erilaisiin työskentelytarpeisiin. Kolme wc-tilaa sekä varasto- ja kopiointitila viimeistelevät kokonaisuuden, joka on suunniteltu nykyaikaisen työyhteisön tarpeisiin.
Kampin Huippu – Kasvualusta yrityksesi menestykselle
Sijainti, joka yhdistää kaiken
Kampin Huippu sijaitsee Helsingin sydämessä, tarjoten yrityksellesi ainutlaatuisen sijainnin, jossa työ ja liikkuminen sujuvat vaivattomasti. Kiinteistöön on erinomaiset yhteydet:
Sisäyhteys Kampin keskukseen, metroasemalle ja bussiterminaaliin
Raitiovaunut kulkevat aivan vierestä
Lyhyt kävelymatka Helsingin päärautatieasemalle
Autoilijoille suora hissiyhteys P-CityForumiin, jossa myös sähköautojen latausmahdollisuus
Pyöräilijöille lämmin pyöräparkki, tilavat pukuhuoneet ja suihkut, kuivauskaapit ja pyöränhuoltopiste
Palvelut, jotka tukevat arkea ja elämyksiä
Kampin Huipun toimitilat on suunniteltu tukemaan yritysten arkea ja työhyvinvointia:
Muunneltavat ja valoisat toimistotilat, jotka mukautuvat eri tarpeisiin
Tyylikäs yleisilme ja laadukkaat materiaalit, jotka luovat inspiroivan työympäristön
Tasokkaat aulapalvelut, vuokrattavat neuvottelutilat ja kokouspalvelut
Oma lounasravintola sekä satoja ravintolavaihtoehtoja lähikortteleissa, catering-palvelut
Kulttuuri- ja palvelutarjonta mahdollistaa yhteisöllisyyttä (afterworkit, taide-elämykset yms.)
Edustustila, saunaosasto ja kattoterassi kahdeksannessa kerroksessa tarjoavat upeat puitteet edustamiseen ja rentoutumiseen
Vastuullisuus, joka näkyy teoissa
Kampin Huippu on sitoutunut kestävään kehitykseen. Kiinteistöllä on BREEAM In-Use Very Good -ympäristösertifikaatti, joka kertoo vastuullisista ratkaisuista ja energiatehokkuudesta.
Ota yhteyttä
Kiinnostuitko? Ota yhteyttä ja tule tutustumaan tiloihin!
Toimitilavälityspalvelumme on tilanhakijalle maksuton.
Tilassa on viihtyisä working cafe lounge, joka kutsuu rentoon työskentelyyn ja kohtaamisiin. Kolme kompaktia neuvottelutilaa tukevat tehokasta tiimityötä ja asiakastapaamisia, kun taas avotyöalue ja kaksi erillistä työhuonetta tarjoavat joustavuutta erilaisiin työskentelytarpeisiin. Kolme wc-tilaa sekä varasto- ja kopiointitila viimeistelevät kokonaisuuden, joka on suunniteltu nykyaikaisen työyhteisön tarpeisiin.
Kampin Huippu – Kasvualusta yrityksesi menestykselle
Sijainti, joka yhdistää kaiken
Kampin Huippu sijaitsee Helsingin sydämessä, tarjoten yrityksellesi ainutlaatuisen sijainnin, jossa työ ja liikkuminen sujuvat vaivattomasti. Kiinteistöön on erinomaiset yhteydet:
Sisäyhteys Kampin keskukseen, metroasemalle ja bussiterminaaliin
Raitiovaunut kulkevat aivan vierestä
Lyhyt kävelymatka Helsingin päärautatieasemalle
Autoilijoille suora hissiyhteys P-CityForumiin, jossa myös sähköautojen latausmahdollisuus
Pyöräilijöille lämmin pyöräparkki, tilavat pukuhuoneet ja suihkut, kuivauskaapit ja pyöränhuoltopiste
Palvelut, jotka tukevat arkea ja elämyksiä
Kampin Huipun toimitilat on suunniteltu tukemaan yritysten arkea ja työhyvinvointia:
Muunneltavat ja valoisat toimistotilat, jotka mukautuvat eri tarpeisiin
Tyylikäs yleisilme ja laadukkaat materiaalit, jotka luovat inspiroivan työympäristön
Tasokkaat aulapalvelut, vuokrattavat neuvottelutilat ja kokouspalvelut
Oma lounasravintola sekä satoja ravintolavaihtoehtoja lähikortteleissa, catering-palvelut
Kulttuuri- ja palvelutarjonta mahdollistaa yhteisöllisyyttä (afterworkit, taide-elämykset yms.)
Edustustila, saunaosasto ja kattoterassi kahdeksannessa kerroksessa tarjoavat upeat puitteet edustamiseen ja rentoutumiseen
Vastuullisuus, joka näkyy teoissa
Kampin Huippu on sitoutunut kestävään kehitykseen. Kiinteistöllä on BREEAM In-Use Very Good -ympäristösertifikaatti, joka kertoo vastuullisista ratkaisuista ja energiatehokkuudesta.
Ota yhteyttä
Kiinnostuitko? Ota yhteyttä ja tule tutustumaan tiloihin!
Toimitilavälityspalvelumme on tilanhakijalle maksuton.
Vapautuu
Kysy
Kerros
6
Ota yhteyttä
LogisTila Oy
Kylätie 11-13, 00320 HELSINKI
Karoliina Turppo
Näytä puhelinnumero
050 345 3258
Pyydä lisätietoa
