Vuokrataan toimistotilat - Helsinki
Haapaniemenkatu 9, Merihaka, 00530 Helsinki #10844236
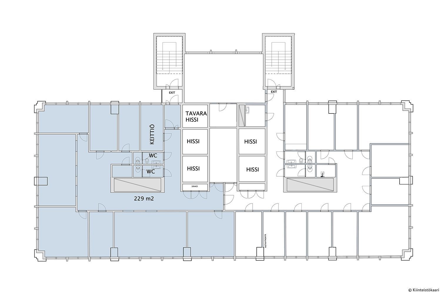
Vuokrataan siistissä kunnossa oleva muuttovalmis toimistotila, josta on upeat näkymät. Lisäksi tilassa on edullinen vuokra ja joustavat sopimusehdot.
Haapaniemenkatu 9 on moderni ja hyvin varusteltu toimistokiinteistö, joka tarjoaa monipuoliset puitteet yrityksen tarpeisiin. Rakennuksesta löytyy muun muassa auditorio, henkilöstöravintola, vuokrattavia neuvottelutiloja sekä viihtyisä saunaosasto. Toimistotilat ovat ilmastoituja ja muunneltavissa avo- tai kombitoimistoiksi. Pihakannen alla sijaitsevasta tilavasta pysäköintihallista on vuokrattavissa autopaikkoja, ja lisäksi käytössä on katettuja vieraspysäköintipaikkoja.
Kiinteistö sijaitsee keskeisellä paikalla Haapaniemenkadulla, hyvien kulkuyhteyksien varrella. Alueelle on helppo saapua niin julkisilla kuin omalla autollakin, ja palvelut sekä kaupungin keskeiset toiminnot ovat kävelyetäisyydellä. Erinomainen sijainti ja kattavat palvelut tekevät Haapaniemenkatu 9:stä houkuttelevan toimitilakohteen monenlaisille yrityksille.
Me Croisettella autamme teitä löytämään teille parhaat tilat! Olemme puolueettomia asiantuntijoita ja tunnemme toimitilamarkkinat, talot sekä tilat vankalla kokemuksella. Meillä on välityksessä kaikki toimitilat ja tiedämme niiden alustavat vuokratasot.
Tehtävämme on tehdä toimitilahaustanne onnistunutta ja helppoa. Saamme palkkiomme kiinteistönomistajalta, joten sinulle palvelumme on täysin maksuton. Jos kiinnostuit, ota yhteyttä sähköpostitse osoitteeseen vuokraus@croisette.fi tai soita numeroon +358 4 00585857.
Croisette Real Estate Partner
Erottajankatu 5 A 6, 00130 Helsinki
Näytä puhelinnumero
+358 400 585 857
Croisette Vuokraus
Näytä puhelinnumero
+358400585857
