Vuokrataan toimistotilat - Helsinki
Pursimiehenkatu 26-30, Punavuori, 00150 Helsinki #10844231
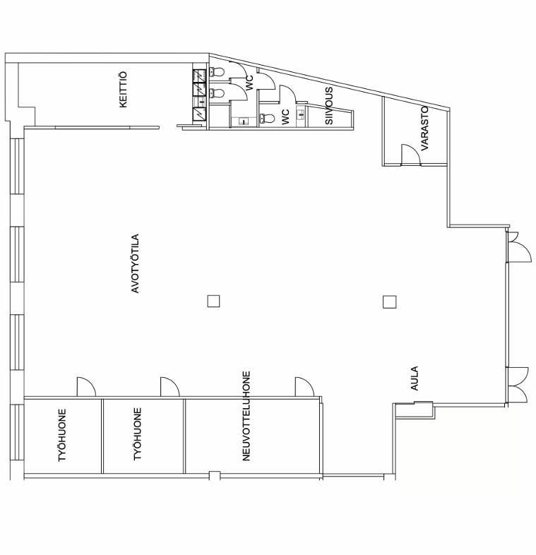
Pursimiehenkatu 26–30 sijaitsee Punavuoren sydämessä, erinomaisella paikalla Helsingin kantakaupungissa aivan meren ja Hietalahden palveluiden tuntumassa. Alueelle on helppo saapua kaikilla julkisillakulkuvälineillä ja autoilijoille alue tarjoaa pysäköintimahdollisuuksia sekä lähellä sijaitsevia parkkihalleja. Lisäksi lähialueelta löytyy runsas valikoima ravintoloita, kahviloita, päivittäistavarakauppoja, liikuntapalveluita ja muita arjen tarvitsemia palveluita sekä yrityksille sopivia tukipalveluja.
Me Croisettella autamme teitä löytämään teille parhaat tilat! Olemme puolueettomia asiantuntijoita ja tunnemme toimitilamarkkinat, talot sekä tilat vankalla kokemuksella. Meillä on välityksessä kaikki toimitilat ja tiedämme niiden alustavat vuokratasot.
Tehtävämme on tehdä toimitilahaustanne onnistunut ja helppo. Saamme palkkiomme kiinteistönomistajalta, joten sinulle palvelumme on täysin maksuton.
Croisette Real Estate Partner
Erottajankatu 5 A 6, 00130 Helsinki
Näytä puhelinnumero
+358 400 585 857
Croisette Vuokraus
Näytä puhelinnumero
+358400585857
