Vuokrataan toimistotilat - Helsinki
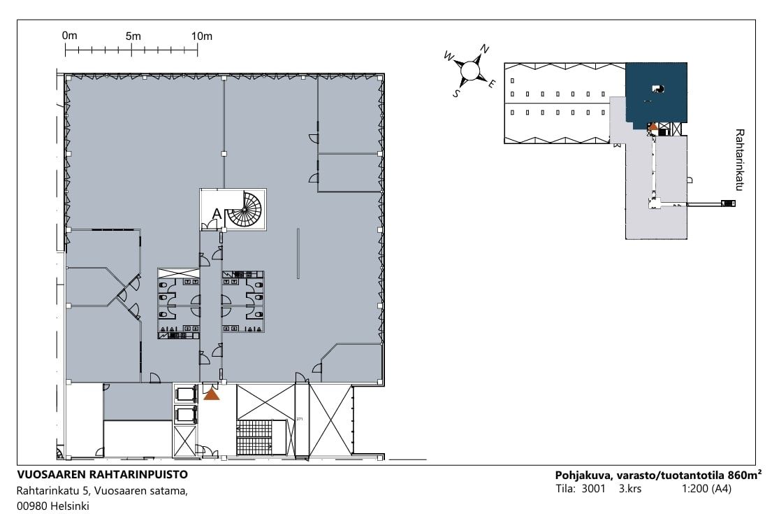
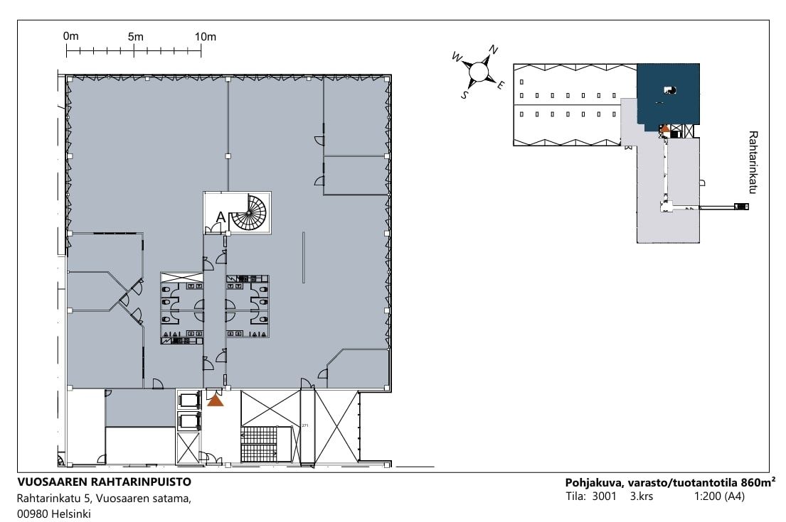
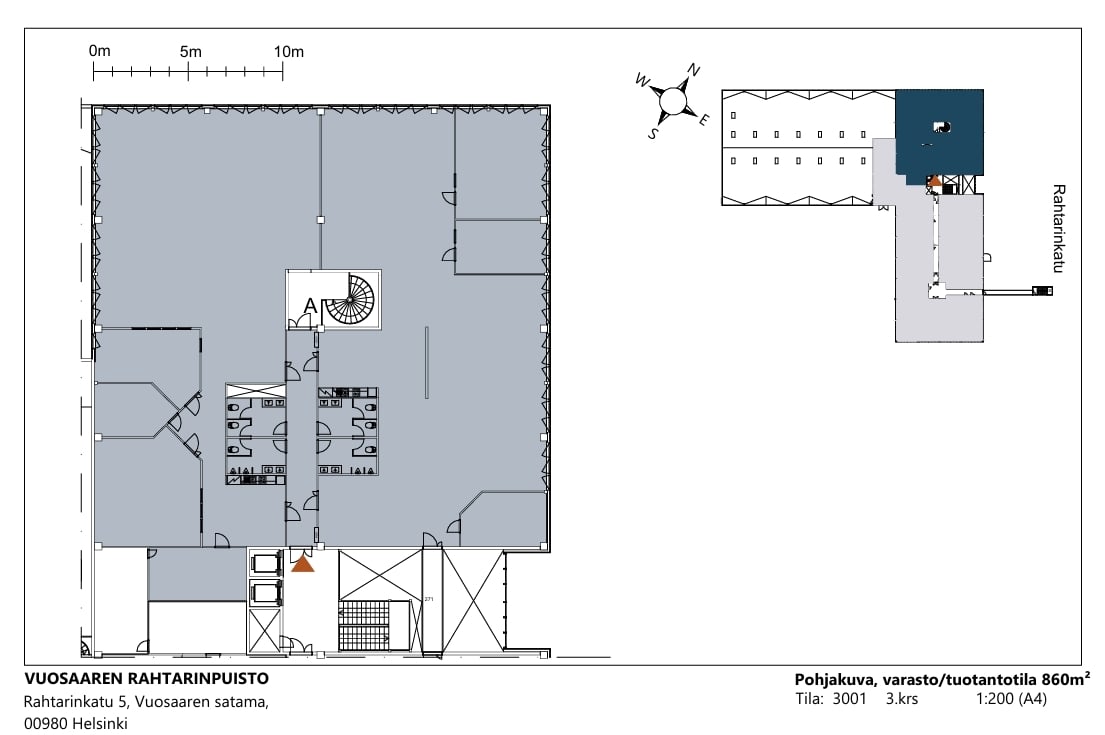
Rahtarinkatu 5, Vuosaari, 00980 Helsinki #10844213
Vuonna 2009 valmistunut Vuosaaren Rahtarinpuisto tarjoaa modernia toimistotilaa sekä sisäänajettavia huoltohalleja. Kiinteistön laaja ja asfaltoitu piha-alue palvelee erinomaisesti kiinteistöllä toimivia kuljetus- ja logistiikka-alan yrityksiä. Kiinteistöltä on hyvät yhteydet Kehä III:lle ja Lahdentielle.
Me Croisettella autamme teitä löytämään teille parhaat tilat! Olemme puolueettomia asiantuntijoita ja tunnemme toimitilamarkkinat, talot sekä tilat vankalla kokemuksella. Meillä on välityksessä kaikki toimitilat ja tiedämme niiden alustavat vuokratasot.
Tehtävämme on tehdä toimitilahaustanne onnistunut ja helppo. Saamme palkkiomme kiinteistönomistajalta, joten sinulle palvelumme on täysin maksuton.
Croisette Real Estate Partner
Erottajankatu 5 A 6, 00130 Helsinki
Näytä puhelinnumero
+358 400 585 857
Croisette Vuokraus
Näytä puhelinnumero
+358400585857
