Vuokrataan toimistotilat - Helsinki
Salomonkatu 17, Kamppi, 00100 Helsinki #10844205
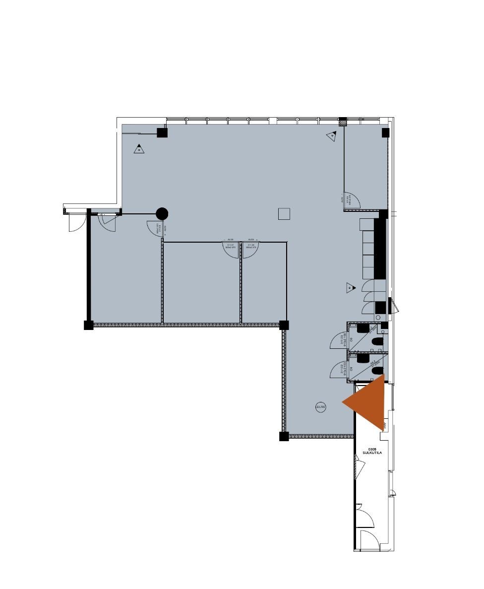
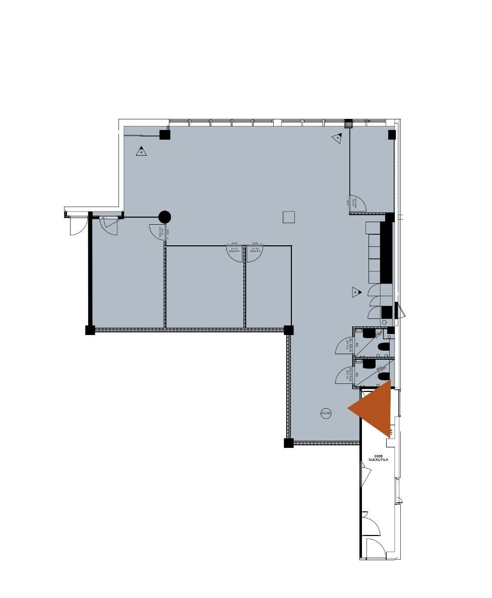
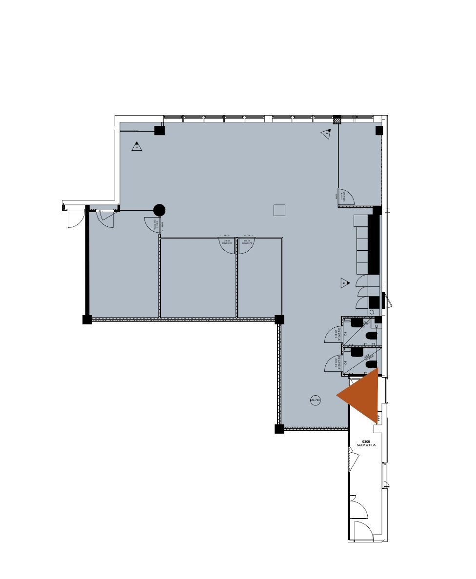
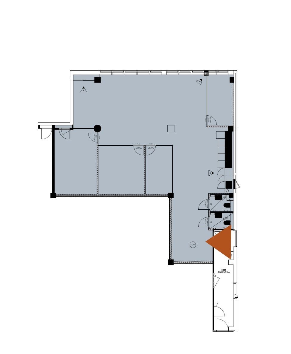
Autotalokortteli sijaitsee erinomaisella paikalla Kampin kauppakeskuksen vieressä, hyvien julkisten kulkuyhteyksien äärellä. Myös autoilijoille löytyy oma maanalainen pysäköintihalli. Tyylikäs, hiljattain remontoitu aulatila tarjoaa edustavan vastaanoton niin vieraille kuin työntekijöille.
Rakennuksella on kiehtova historia: 1950-luvulla valmistunut Autotalo rakennettiin autojen maahantuontiliikkeen käyttöön, ja sen suunnittelivat arkkitehdit Veli Valorinta ja Eino Tuompo. Alun perin talossa toimi autokauppa ja huoltoasema – nykyisin tilat palvelevat moderneina liike- ja toimistotiloina.
Me Croisettella autamme teitä löytämään teille parhaat tilat! Olemme puolueettomia asiantuntijoita ja tunnemme toimitilamarkkinat, talot sekä tilat vankalla kokemuksella. Meillä on välityksessä kaikki toimitilat ja tiedämme niiden alustavat vuokratasot.
Tehtävämme on tehdä toimitilahaustanne onnistunut ja helppo. Saamme palkkiomme kiinteistönomistajalta, joten sinulle palvelumme on täysin maksuton.
Croisette Real Estate Partner
Erottajankatu 5 A 6, 00130 Helsinki
Näytä puhelinnumero
+358 400 585 857
Croisette Vuokraus
Näytä puhelinnumero
+358400585857
