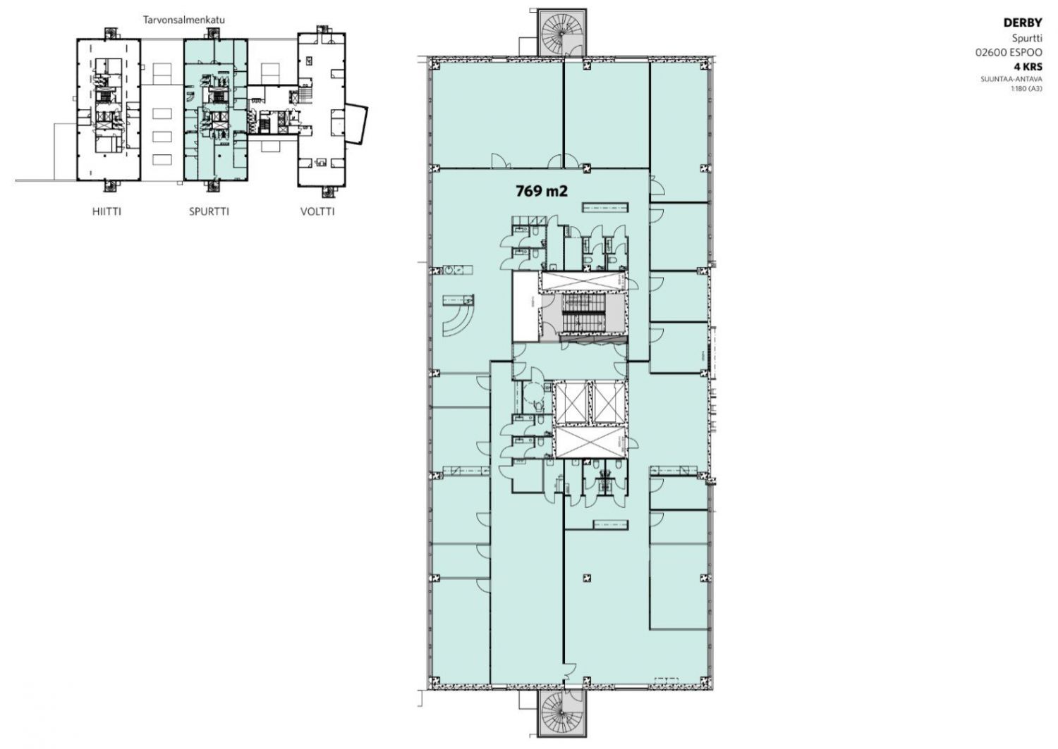
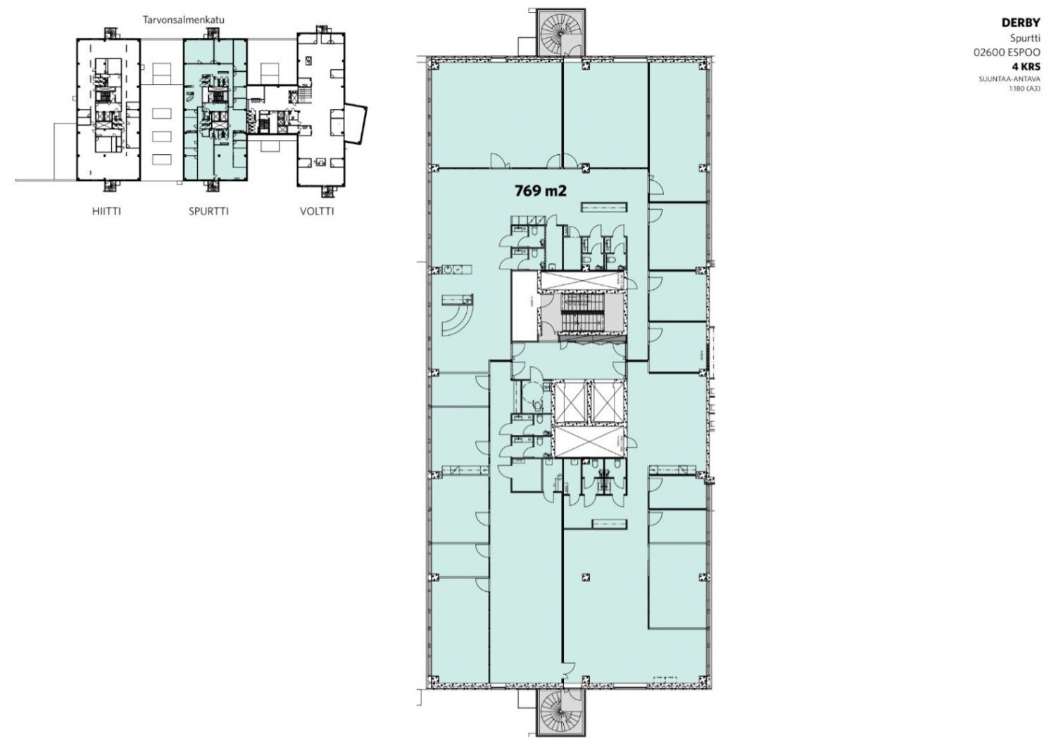
Vuokrataan toimistotilat - Espoo
Tarvonsalmenkatu 15-17, Yhdyskunnanmäki, 02600 Espoo #10844194
Nyt vuokrattavissa kolme samantyyppistä kerrosta Derbyn toimitilakiinteistöstä. Tilat ovat muuntojoustavia ja vuokrassakin voidaan monipuolisesti joustaa. Tilat ovat avarat ja sisältävät niin avotyötilaa, kuin työ- ja neuvotteluhuoneita. Lisäksi tiloista löytyy tottakai omat keittiöt ja siistit wc-tilat.
Perkkaalla hyvien yhteyksien päästä. Kiinteistön palveluihin lukeutuu mm. aulapalvelu, neuvotteluhuoneiden vuokraus, ravintola ja catering-palvelut, kunto- ja ryhmäliikuntasali ja ylimmän kerroksen näyttävät edustustilat, jotka ovat yksinoikeudella vain kiinteistön vuokralaisten varattavissa.
Kiinteistöllä on LEED Platinum -tason sertifikaatti ja toimistotilojen suunnittelussa on otettu huomioon sisäilman, sisälämpötilan ja valaistuksen merkitys työnteolle ja viihtyvyydelle. Suurista ikkunoista avautuu rauhoittavat maisemat Laajalahden luonnonsuojelualueelle.
Me Croisettella autamme teitä löytämään teille parhaat tilat! Olemme puolueettomia asiantuntijoita ja tunnemme toimitilamarkkinat, talot sekä tilat vankalla kokemuksella. Meillä on välityksessä kaikki toimitilat ja tiedämme niiden alustavat vuokratasot.
Tehtävämme on tehdä toimitilahaustanne onnistunutta ja helppoa. Saamme palkkiomme kiinteistönomistajalta, joten sinulle palvelumme on täysin maksuton.
Croisette Real Estate Partner
Erottajankatu 5 A 6, 00130 Helsinki
Näytä puhelinnumero
+358 400 585 857
Croisette Vuokraus
Näytä puhelinnumero
+358400585857
