Vuokrataan toimistotilat - Espoo
Säterinkatu 6, Leppävaara, 02600 Espoo #10844193
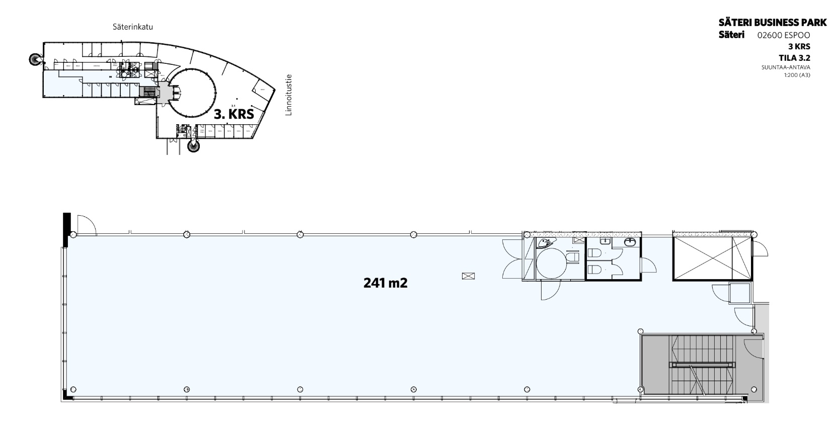
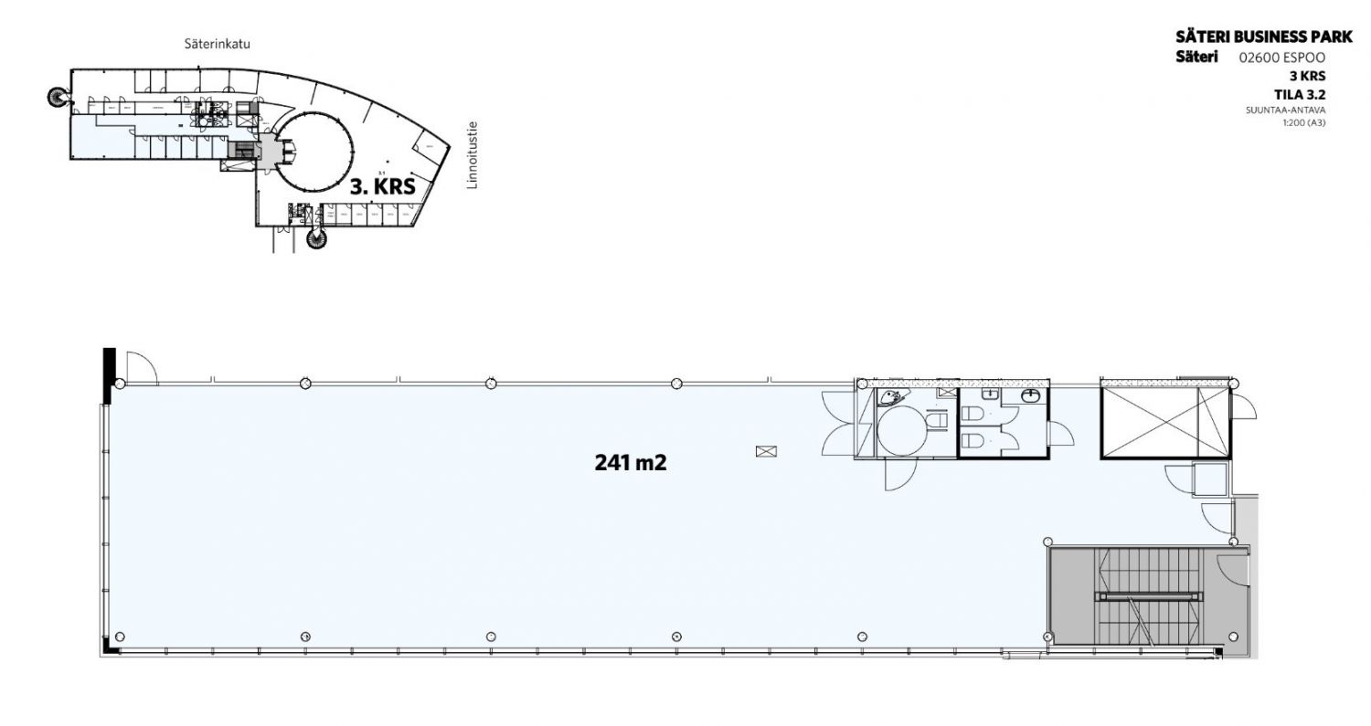
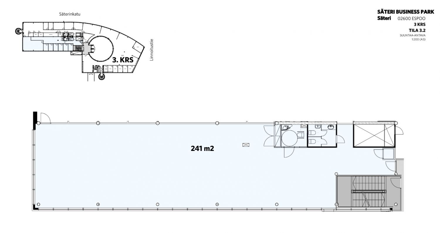
Säteri 6 on 2001 valmistunut kauttaaltaan uudistettu toimistorakennus Espoon Leppävaarassa hyvien yhteyksien päässä. Kiinteistön palveluihin kuuluu mm. kuntosali, saunatilat ja viihtyisät terassialueet. Aulapalvelu palvelee arkisin ottaen vieraasi vastaan ja vuokraa tarvittaessa neuvotteluhuoneet päivän palavereihin. Lounas hoituu kiinteistön omassa ravintolassa, josta saa myös hoidettua päivän kokouksien catering-tarpeet.
Me Croisettella autamme teitä löytämään teille parhaat tilat! Olemme puolueettomia asiantuntijoita ja tunnemme toimitilamarkkinat, talot sekä tilat vankalla kokemuksella. Meillä on välityksessä kaikki toimitilat ja tiedämme niiden alustavat vuokratasot.
Tehtävämme on tehdä toimitilahaustanne onnistunutta ja helppoa. Saamme palkkiomme kiinteistönomistajalta, joten sinulle palvelumme on täysin maksuton. Jos kiinnostuit, ota yhteyttä sähköpostitse osoitteeseen vuokraus@croisette.fi tai soita numeroon +358 4 00585857.
Croisette Real Estate Partner
Erottajankatu 5 A 6, 00130 Helsinki
Näytä puhelinnumero
+358 400 585 857
Croisette Vuokraus
Näytä puhelinnumero
+358400585857
