Vuokrataan toimistotilat - Helsinki
Lautatarhankatu 6, Kalasatama, 00580 Helsinki #10844188
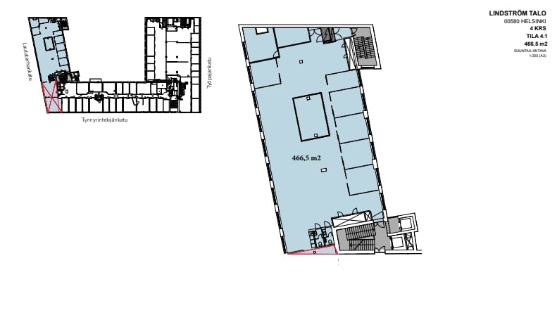
Nyt vuokrattavissa muuttovalmiit toimitilat neljännestä kerroksesta! Tilassa on moderni, teollishenkinen tunnelma, ja se koostuu sekä avarasta avotilasta että erillisistä työ- ja neuvotteluhuoneista.
Lindström Talo on alueen vanhimpia kiinteistöjä ja rakennettu vuonna 1902. Talo toimi nimensä mukaisesti Lindströmin pesularakennuksena, mutta koki täydellisen remontin vuonna 2003, jolloin se uudistettiin pesulasta moderniksi tämän päivän toimistotilaksi. Kiinteistön vanhan käyttötarkoituksen vuoksi osa tilasta on upeaa yli neljän metrin huonekorkeudellista industrial-henkistä tilaa suurine ikkunoineen.
Kiinteistön päivityksen yhteydessä otettiin huomioon nykypäivän vaateet ja tila onkin muokattavissa joustavasti erilaisiin tarpeisiin. Talosta löytyy aulapalvelun lisäksi myös yhteisiä neuvottelutiloja ja ravintola, josta saa niin aamupalaa kuin lounastakin. Lindströmin Talo sijaitsee aivan Teurastamon urbaanin kaupunkikeskuksen vieressä, josta löydät lounasvaihtoehtoja. Kauppakeskus REDI sijaitsee kävelymatkan päässä.
Me Croisettella autamme teitä löytämään teille parhaat tilat! Olemme puolueettomia asiantuntijoita ja tunnemme toimitilamarkkinat, talot sekä tilat vankalla kokemuksella. Meillä on välityksessä kaikki toimitilat ja tiedämme niiden alustavat vuokratasot.
Tehtävämme on tehdä toimitilahaustanne onnistunutta ja helppoa. Saamme palkkiomme kiinteistönomistajalta, joten sinulle palvelumme on täysin maksuton. Jos kiinnostuit, ota yhteyttä sähköpostitse osoitteeseen vuokraus@croisette.fi tai soita numeroon +358 4 00585857.
Croisette Real Estate Partner
Erottajankatu 5 A 6, 00130 Helsinki
Näytä puhelinnumero
+358 400 585 857
Croisette Vuokraus
Näytä puhelinnumero
+358400585857
