Vuokrataan liiketilat - Helsinki
Annankatu 34, Kamppi, 00100 Helsinki #10844173
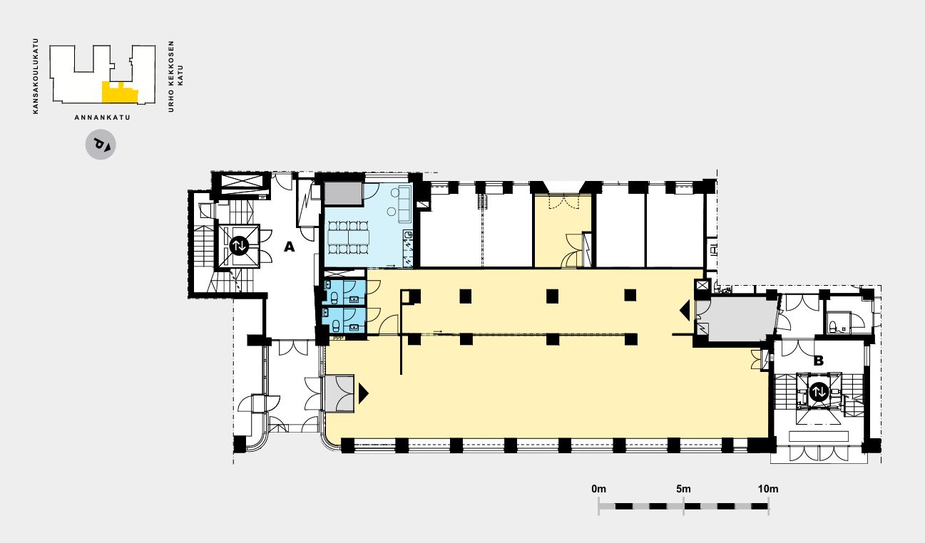
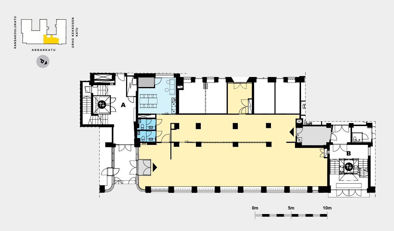
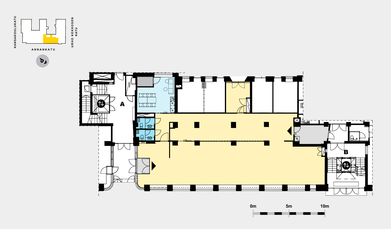
Kampin Huippu - Liiketila 291 m²
Osoite
Annankatu 34, 00100 Helsinki
Tilatyyppi
Liiketilaa
291 m2
Pohjapiirros
Kiinteistö
Liiketila näkyvällä paikalla Annankadun varrella, aivan Helsingin keskustan ytimessä. Tilaan on esteetön kulku suoraan kadulta, mikä tekee siitä helposti saavutettavan niin asiakkaille kuin henkilökunnallekin. Tila koostuu avarasta avotilasta, erillisestä toimistotilasta sekä taukotilasta, mikä mahdollistaa monipuolisen käytön esimerkiksi asiakaspalveluun, showroomiksi tai toimistoksi. Erinomainen sijainti vilkkaalla liikepaikalla takaa näkyvyyden ja jatkuvan asiakasvirran.
Kampin Huippu – Kasvualusta yrityksesi menestykselle
Sijainti, joka yhdistää kaiken
Kampin Huippu sijaitsee Helsingin sydämessä, tarjoten yrityksellesi ainutlaatuisen sijainnin, jossa työ ja liikkuminen sujuvat vaivattomasti. Kiinteistöön on erinomaiset yhteydet:
Sisäyhteys Kampin keskukseen, metroasemalle ja bussiterminaaliin
Raitiovaunut kulkevat aivan vierestä
Lyhyt kävelymatka Helsingin päärautatieasemalle
Autoilijoille suora hissiyhteys P-CityForumiin, jossa myös sähköautojen latausmahdollisuus
Pyöräilijöille lämmin pyöräparkki, tilavat pukuhuoneet ja suihkut, kuivauskaapit ja pyöränhuoltopiste
Palvelut, jotka tukevat arkea ja elämyksiä
Kampin Huipun toimitilat on suunniteltu tukemaan yritysten arkea ja työhyvinvointia:
Muunneltavat ja valoisat toimistotilat, jotka mukautuvat eri tarpeisiin
Tyylikäs yleisilme ja laadukkaat materiaalit, jotka luovat inspiroivan työympäristön
Tasokkaat aulapalvelut, vuokrattavat neuvottelutilat ja kokouspalvelut
Oma lounasravintola sekä satoja ravintolavaihtoehtoja lähikortteleissa, catering-palvelut
Kulttuuri- ja palvelutarjonta mahdollistaa yhteisöllisyyttä (afterworkit, taide-elämykset yms.)
Edustustila, saunaosasto ja kattoterassi kahdeksannessa kerroksessa tarjoavat upeat puitteet edustamiseen ja rentoutumiseen
Vastuullisuus, joka näkyy teoissa
Kampin Huippu on sitoutunut kestävään kehitykseen. Kiinteistöllä on BREEAM In-Use Very Good -ympäristösertifikaatti, joka kertoo vastuullisista ratkaisuista ja energiatehokkuudesta.
Ota yhteyttä
Kiinnostuitko? Ota yhteyttä ja tule tutustumaan tiloihin!
Toimitilavälityspalvelumme on tilanhakijalle maksuton.
Kampin Huippu – Kasvualusta yrityksesi menestykselle
Sijainti, joka yhdistää kaiken
Kampin Huippu sijaitsee Helsingin sydämessä, tarjoten yrityksellesi ainutlaatuisen sijainnin, jossa työ ja liikkuminen sujuvat vaivattomasti. Kiinteistöön on erinomaiset yhteydet:
Sisäyhteys Kampin keskukseen, metroasemalle ja bussiterminaaliin
Raitiovaunut kulkevat aivan vierestä
Lyhyt kävelymatka Helsingin päärautatieasemalle
Autoilijoille suora hissiyhteys P-CityForumiin, jossa myös sähköautojen latausmahdollisuus
Pyöräilijöille lämmin pyöräparkki, tilavat pukuhuoneet ja suihkut, kuivauskaapit ja pyöränhuoltopiste
Palvelut, jotka tukevat arkea ja elämyksiä
Kampin Huipun toimitilat on suunniteltu tukemaan yritysten arkea ja työhyvinvointia:
Muunneltavat ja valoisat toimistotilat, jotka mukautuvat eri tarpeisiin
Tyylikäs yleisilme ja laadukkaat materiaalit, jotka luovat inspiroivan työympäristön
Tasokkaat aulapalvelut, vuokrattavat neuvottelutilat ja kokouspalvelut
Oma lounasravintola sekä satoja ravintolavaihtoehtoja lähikortteleissa, catering-palvelut
Kulttuuri- ja palvelutarjonta mahdollistaa yhteisöllisyyttä (afterworkit, taide-elämykset yms.)
Edustustila, saunaosasto ja kattoterassi kahdeksannessa kerroksessa tarjoavat upeat puitteet edustamiseen ja rentoutumiseen
Vastuullisuus, joka näkyy teoissa
Kampin Huippu on sitoutunut kestävään kehitykseen. Kiinteistöllä on BREEAM In-Use Very Good -ympäristösertifikaatti, joka kertoo vastuullisista ratkaisuista ja energiatehokkuudesta.
Ota yhteyttä
Kiinnostuitko? Ota yhteyttä ja tule tutustumaan tiloihin!
Toimitilavälityspalvelumme on tilanhakijalle maksuton.
Vapautuu
Kysy
Kerros
1
Liitetiedostot
Ota yhteyttä
Logistila Oy
Kylätie 11-13, 00320 HELSINKI
Karoliina Turppo
Näytä puhelinnumero
050 345 3258
Pyydä lisätietoa
