Videoesittely
Vuokrataan liiketilat, hoivatilat - Tampere
Liike- / hyvinvointitila, Kaupinpuistokatu 1, Kauppi, 33500 Tampere #10844169
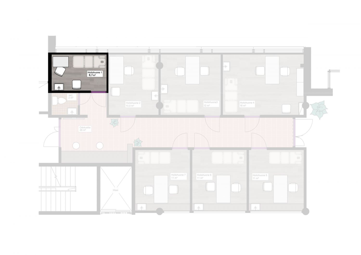
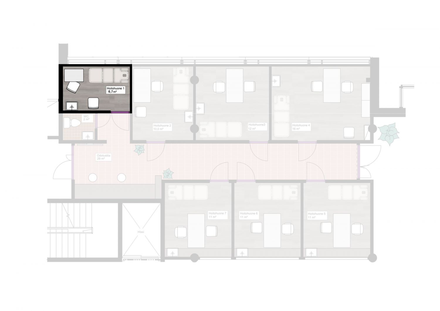
Valoisa 1. kerroksen 6,7 m2:n tila, jossa ikkuna järvimaisemalla. Tila on saneerattu täysin uutta vastaavaksi, tilassa on vesipiste, käytävällä wc ja odotustila. Tulossa yhteiset sosiaalitilat syksyllä 2024. Vuokra 390 € (sis. sähkö ja vesi).
Osoite
Kaupinpuistokatu 1, 33500 Tampere
Tilatyyppi
Liiketilaa
6,7 m2
Hoivatilaa
6,7 m2
Yhteensä
6,7 m2
Pohjapiirros
Vuokra
390 €
Vuokraan sisältyy sähkö, vesi
Kiinteistö
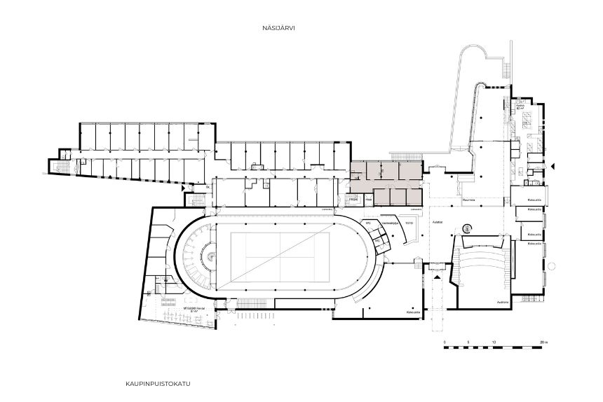
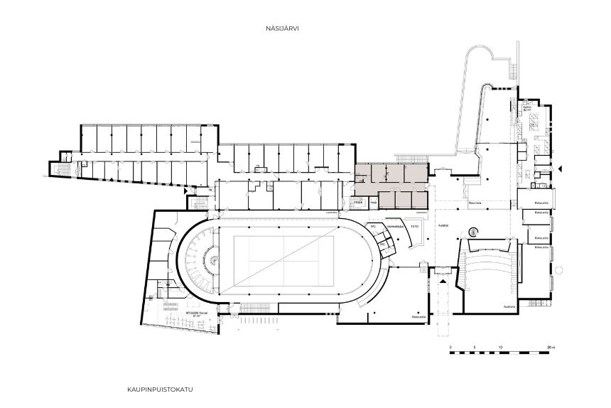
UKK-instituutti on uudistumassa täyden palvelun hyvinvointikeskukseksi, sisältäen laajan valikoiman hyvinvointi- ja liikuntapalveluita, ravintolapalveluita, sekä 88 huoneen upean hotellin. Alueen vetonauloina toimivat muun muassa maankuulut luontopolut, lukuisat liikunta- ja urheilumahdollisuudet sekä yli 60 000 vuosittaisen kävijän Kaupinojan sauna.
UKK-instituutti sijaitsee Tampereen Kaupin ulkoilualueen välittömässä läheisyydessä Näsijärveen laskevalla pohjoisrinteellä. Ulkoilumahdollisuudet ovat loistavat, niin juoksuun, hiihtoon kuin maastopyöräilyynkin. Kaupin urheilupuisto liikuntapalveluineen (urheilupuistossa on mm. pesäpallostadion sekä useita jalkapallokenttiä) alle kilometrin matkan päässä.
Kiinteistön tiedot
UKK-instituutissa on tällä hetkellä vapaana vuokrattavaksi kahdeksan täysin remontoitua tilaa. Kaikkiin tiloihin on esteetön sisäänkäynti. Katutason hoitohuoneet koostuvat seitsemän huoneen kokonaisuudesta, josta vuokrattavana on kuusi huonetta. Näillä hoitohuoneilla on yhteinen odotusaula. Lisäksi pohjakerroksessa on kaksi hoitotilaa. Hoitohuoneet ovat juuri saneerattu uudenveroisiksi. Huoneissa on valoisat vaaleat seinät, ruskeanharmaa helppohoitoinen vinyylilankkulattia ja energiatehokkaat led-paneelivalaisimet.
Kaikissa huoneissa on vesipiste altaalla ja odotustilassa on erillinen, juuri remontoitu yhteiskäyttö wc.
UKK-instituutti sijaitsee Tampereen Kaupin ulkoilualueen välittömässä läheisyydessä Näsijärveen laskevalla pohjoisrinteellä. Ulkoilumahdollisuudet ovat loistavat, niin juoksuun, hiihtoon kuin maastopyöräilyynkin. Kaupin urheilupuisto liikuntapalveluineen (urheilupuistossa on mm. pesäpallostadion sekä useita jalkapallokenttiä) alle kilometrin matkan päässä.
Kiinteistön tiedot
UKK-instituutissa on tällä hetkellä vapaana vuokrattavaksi kahdeksan täysin remontoitua tilaa. Kaikkiin tiloihin on esteetön sisäänkäynti. Katutason hoitohuoneet koostuvat seitsemän huoneen kokonaisuudesta, josta vuokrattavana on kuusi huonetta. Näillä hoitohuoneilla on yhteinen odotusaula. Lisäksi pohjakerroksessa on kaksi hoitotilaa. Hoitohuoneet ovat juuri saneerattu uudenveroisiksi. Huoneissa on valoisat vaaleat seinät, ruskeanharmaa helppohoitoinen vinyylilankkulattia ja energiatehokkaat led-paneelivalaisimet.
Kaikissa huoneissa on vesipiste altaalla ja odotustilassa on erillinen, juuri remontoitu yhteiskäyttö wc.
Ympäristö
Henkilöautolla on helppo saapua UKK-instituuttiin – matkaa on alle 4 kilometriä Tampereen keskustasta. Lisäksi Tampereen seudun joukkoliikenteen bussinumero 11 reitti kulkee vajaan kilometrin matkan päässä. Kaupin urheilupustolta kulkevat linjat 13, 14 ja 38. Myös ratikalla pääsee myös UKK-instituutin läheisyyteen, noin reilun kilometrin kävelymatkan päähän.
Pysäköinti
Rakennuksen edessä on tilava ja ilmainen pysäköintimahdollisuus asiakkaille ja henkilökunnalle.
Palvelut
Rakennuksessa toimii UKK-instituutti, joka on terveys- ja liikunta-alalla toimiva yksityinen tutkimus- ja asiantuntijakeskus. Lisäksi yli 60 000 vuosittaisen kävijän Kaupinojan sauna on kiinteistön vieressä.
Vuokralaisia
Alueella on laaja kattaus liikuntamahdollisuuksia. Kaupinojan sauna on rakennuksen vieressä ja Kaupin urheilupuisto liikuntapalveluineen (urheilupuistossa on mm. pesäpallostadion, hiihtoladut talvella, jalkapallokentät) alle kilometrin matkan päässä.
Vapautuu
Kysy
Rakennusvuosi
1984
Saneerausvuosi
2023
Kerros
1
Huoneiden lukumäärä
1
Energiatehokkuusluokka
B
Katutasossa
Ota yhteyttä
Meijou Oy
Saapastie 2
Näytä puhelinnumero
+358 40 555 5413
Marko Kuusisto
Toimitusjohtaja
Näytä puhelinnumero
+358 20 1980 200
Rakennuksessa toimii UKK-instituutti, joka on terveys- ja liikunta-alalla toimiva yksityinen tutkimus- ja asiantuntijakeskus.
https://ukkinstituutti.fi/Pyydä lisätietoa
