Vuokrataan toimistotilat - Helsinki
Urho Kekkosen katu 4-6 E, Kamppi, Kamppi, 00100 Helsinki #10844134
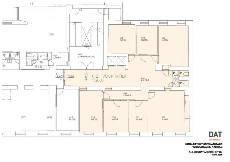
Osoite
Urho Kekkosen katu 4-6 E, Kamppi, 00100 Helsinki
Tilatyyppi
Toimistotilaa
166 m2
Kiinteistö
Vuokrataan Hämäläisten talosta E-portaan 6. kerroksen toimistotilaa 166 m². Koneellinen ilmanvaihto, kaukokylmä, valokuitu ja cat6a-sisäverkko.
Peruskuntoinen tila, johon muutostyöt mahdollisia.
Peruskuntoinen tila, johon muutostyöt mahdollisia.
Pysäköinti
Mahdollisuus vuokrata autopaikka.
Palvelut
Kaikki Kampin palvelut vieressä.
Muuta
Hämäläisten talo valmistunut vuonna 1930. Talossa 8 kerrosta, valtaosa toimistotilaa ja katutasossa liiketiloja.
Vapautuu
Heti
Energiatehokkuusluokka
Ei lain edellyttämää energiatodistusta
Hissi
Ota yhteyttä
Comreal Oy LKV
Tuula Leikas
Näytä puhelinnumero
040 531 3722
P.
Näytä puhelinnumero
020 744 1000
Läkkisepänkuja 6, 00620 Helsinki
Comreal Oy on kasvava ja osaava kiinteistöalan palveluntuottaja kiinteistöjen omistajille ja käyttäjille.
Kiinteistö on sijoittajalle hyvä sijoitus vain, jos siellä on tyytyväiset asiakkaat, eli vuokralaiset. Siksi laadukas asiakaspalvelu on toiminnan lähtökohta.
Pyydä lisätietoa
