Vuokrataan toimistotilat - Helsinki
Siltasaarenkatu 8-10, Hakaniemi, 00530 Helsinki #10844070
Modernia toimistotilaa Siltasaari 10:stä, Helsingin Hakaniemestä.
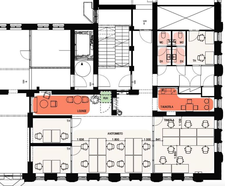
Tämä 178 m² toimistotila sijaitsee kiinteistön 5. kerroksessa. Toimistossa on avotilaa, huoneita, lounge-tila sekä omat keittiö- ja wc-tilat. Tila on remontoitu ja muuttovalmis. Kuvat ovat yleiskuvia kiinteistön tiloista.
Siltasaari 10 on täysin saneerattu toimistokiinteistö Helsingin Hakaniemessä. Kiinteistön tilat ovat uutta vastaavassa kunnossa, ja ne on toteutettu erittäin korkealaatuisilla materiaaleilla. Kun haluat yrityksellesi inspiroivan työympäristön ja yksilölliset, tarpeidenne mukaan suunnitellut toimitilat loistavien kulkuyhteyksien varrelta, on Siltasaari 10 oikea valinta.
Kiinteistön katutasossa on liiketiloja ja ravintoloita. Toisessa kerroksessa on toimistotilojen Welcome Desk, yhteiskäyttöiset neuvottelu- ja edustustilat sekä POOL coworking -alue ja ravintola-alue. Vuokralaisia palvelevat myös auto- ja pyöräpaikoitus. Kiinteistössä yhdistyvät liikemaailma, kulttuuri ja vapaa-aika. Se houkuttelee paikalle niin työntekijät kuin alueen asukkaatkin.
Kysy lisää numerosta 044 723 4700 tai info@bref.fi. Palvelumme on tilanhakijoille ilmainen.
Hissi
Bureau Real Estate Finland Oy
Lars Sonckin kaari 16, 02600 Espoo
Näytä puhelinnumero
0447234700
Bureau Real Estate Finland Oy
https://www.bref.fi