Vuokrataan toimistotilat - Helsinki
Päijänteentie 12, Vallila, 00510 Helsinki #10844061
Modernia pääkonttoritason toimistotilaa Helsingin Vallilassa.
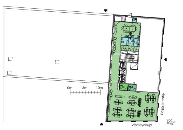
Tämä laadukas 317 m² kokoinen tila sijaitsee kiinteistön 7. kerroksessa. Toimisto on avonainen, ja siihen kuuluvat omat keittiö- ja wc-tilat.
Vallila korttelin toimitilojen suunnittelussa on huomioitu erityisesti tilojen joustavuus ja materiaalien korkea laatu. Myös ilmanlaatuun ja luonnonvalon määrään on kiinnitetty huomiota. Kiinteistöllä on LEED Gold -sertifiointi. Vuokralaisten käytössä on monipuoliset palvelut. Galleriakerroksessa on viisi ravintolatilaa, jaettavat neuvotteluhuoneet, kolme auditoriota, kuntosali, kampaaja, hieroja, ja fysioterapeutti. Kiinteistössä on myös pysäköintihalli ja lämmin pyöräparkki.
Vallilan alueella on ollut suuri merkitys Suomen teollistumisen historiassa. Nyt alue on jälleen uuden liiketoiminnan edelläkävijä ja kasvun keskus. Huippuluokan palvelutarjonta on taattu, koska Vallila kuuluu Suomen merkittävimpään kehitysalueeseen, Pasila-Vallila-Kalasatama-akseliin, ja sen rajanaapurina ovat kaksi dominoivaa ostoskeskusta, Tripla ja Redi, sekä valtava määrä uusia asuinrakennuksia. Ympäröivät asuinalueet houkuttelevat erityisesti nuoria huippuammattilaisia.
Kysy lisää numerosta 045 319 7173 toni.kiventera@bref.fi tai 044 723 4700 info@bref.fi. Palvelumme on tilanhakijoille ilmainen.
Hissi
Bureau Real Estate Finland Oy
Lars Sonckin kaari 16, 02600 Espoo
Näytä puhelinnumero
0447234700
Bureau Real Estate Finland Oy
https://www.bref.fi