Vuokrataan toimistotilat, työtilat - Helsinki
Kaupintie 11, Lassila, 00440 Helsinki #10844039
Erinomaisten yhteyksien päässä toimistotilaa vuokrattavana Helsingin Lassilassa! Hinta 1199 €/kk
Osoite
Kaupintie 11, 00440 Helsinki
Tilatyyppi
Toimistotilaa
143 m2
Työtilaa
143 m2
Yhteensä
143 m2
Virtuaaliesittely
Vuokra
1’199 €/kk, alv 0%
Vuokraan sisältyy lämpö
Muuta
Helsingin Lassilassa Pohjois- Haagassa vuokrattavana hyväkuntoista ja valoisaa toimistotilaa.
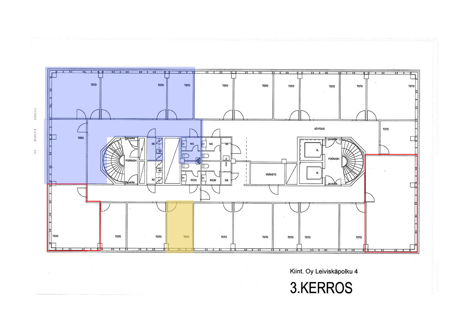
Huone sijaitsee ison toimistorakennuksen tiloissa ja on pinta-alaltaan 143 m² (merkitty pohjaan sinisellä). Huoneisto on rakennuksen kolmannessa kerroksessa ja sisäänkäynti Leiviskäpolun puolelta. Rakennuksessa on hissi. Siisti ja valoisa rappu ja toimistohuoneessa isot ikkunat. Toimistohuoneiden lisäksi tiloissa on myös siisti keittiö ja WC. Siistit pinnat ja hyväkuntoinen tila.
Lämmitys ja vesi sisältyy vuokraan, mutta sähkö maksetaan kulutuksen mukaan ja se laskutetaan 2 kertaa vuodessa.
Tila soveltuu arvonlisäverovapaaseen käyttöön, mutta mikäli toimija on arvonlisäverovelvollinen lisätään vuokran arvonlisävero.
Autopaikkoja on mahdollista vuokrata rakennuksen parkkihallista hintaan 90 €/kk ja pihapaikkoja on myös 50 €/kk.
Loistavat liikenneyhteydet, kaikki julkisen liikenteen pysäkit löytyvät kävelyetäisyydeltä, mm. Pohjois-Haagan juna-asema.
Toimistohuoneisto loistavien yhteyksien päässä!
Kohdetiedot
Sijainti
Katuosoite: Kaupintie 11, 00440 Helsinki
Kaupunginosa: Lassila
Ympäristö: Lassilan yritys- ja toimistotaloja
Rakennus/huoneisto
Pinta-alat: noin 143 m²
Rakennustyyppi: Toimistotalo
Rakennusvuosi:1986
Energiatodistus: Ei lain vaatimaa todistusta
Huoneistoselitelmä: Toimistohuoneisto
Kunto, varusteet ja palvelut: Hyvä kunto. Eri kokoisia toimistohuoneita, WC ja keittiö
Pysäköinti: Paikoitustilaa parkkihallissa ja pihalla
Vapautuminen: Heti vapaa
Vuokrahinta ja kulut
Kuukausivuokra: 1’199 €/kk, alv 0%
Sähkö: Kulutuksen mukaan (laskutetaan 2 kertaa/vuosi)
Vesimaksu: Sisältyy vuokraan
Lämmitys: Kaukolämpö (sisältyy vuokraan)
Muut kulut: Minimisopimuskausi 12kk, vakuus 3kk vuokraa vastaava summa ja luottotietojen oltava kunnossa
Huone sijaitsee ison toimistorakennuksen tiloissa ja on pinta-alaltaan 143 m² (merkitty pohjaan sinisellä). Huoneisto on rakennuksen kolmannessa kerroksessa ja sisäänkäynti Leiviskäpolun puolelta. Rakennuksessa on hissi. Siisti ja valoisa rappu ja toimistohuoneessa isot ikkunat. Toimistohuoneiden lisäksi tiloissa on myös siisti keittiö ja WC. Siistit pinnat ja hyväkuntoinen tila.
Lämmitys ja vesi sisältyy vuokraan, mutta sähkö maksetaan kulutuksen mukaan ja se laskutetaan 2 kertaa vuodessa.
Tila soveltuu arvonlisäverovapaaseen käyttöön, mutta mikäli toimija on arvonlisäverovelvollinen lisätään vuokran arvonlisävero.
Autopaikkoja on mahdollista vuokrata rakennuksen parkkihallista hintaan 90 €/kk ja pihapaikkoja on myös 50 €/kk.
Loistavat liikenneyhteydet, kaikki julkisen liikenteen pysäkit löytyvät kävelyetäisyydeltä, mm. Pohjois-Haagan juna-asema.
Toimistohuoneisto loistavien yhteyksien päässä!
Kohdetiedot
Sijainti
Katuosoite: Kaupintie 11, 00440 Helsinki
Kaupunginosa: Lassila
Ympäristö: Lassilan yritys- ja toimistotaloja
Rakennus/huoneisto
Pinta-alat: noin 143 m²
Rakennustyyppi: Toimistotalo
Rakennusvuosi:1986
Energiatodistus: Ei lain vaatimaa todistusta
Huoneistoselitelmä: Toimistohuoneisto
Kunto, varusteet ja palvelut: Hyvä kunto. Eri kokoisia toimistohuoneita, WC ja keittiö
Pysäköinti: Paikoitustilaa parkkihallissa ja pihalla
Vapautuminen: Heti vapaa
Vuokrahinta ja kulut
Kuukausivuokra: 1’199 €/kk, alv 0%
Sähkö: Kulutuksen mukaan (laskutetaan 2 kertaa/vuosi)
Vesimaksu: Sisältyy vuokraan
Lämmitys: Kaukolämpö (sisältyy vuokraan)
Muut kulut: Minimisopimuskausi 12kk, vakuus 3kk vuokraa vastaava summa ja luottotietojen oltava kunnossa
Vapautuu
Heti
Rakennusvuosi
1986
Kerros
3 / 4
Hissi
Ota yhteyttä
Tilat.fi
KTM, LKV Antti Soivio
Näytä puhelinnumero
0400 446 553
OTM, LKV Riikka Tuominen
Näytä puhelinnumero
0400 551 790
KTM, LKV Maria-Sofia Puhakka
Näytä puhelinnumero
0400-150330
MBA, LKV Susanne Wallenius
Näytä puhelinnumero
0400-128877
Yrityksen virallinen nimi: LKV Tilat.fi Oy.
Toimitilojen välitykseen erikoistunut yritys.
Pyydä lisätietoa
