Vuokrataan toimistotilat - Espoo
Säterinportti, Linnoitustie 6, Leppävaara, 02600 Espoo #10844029
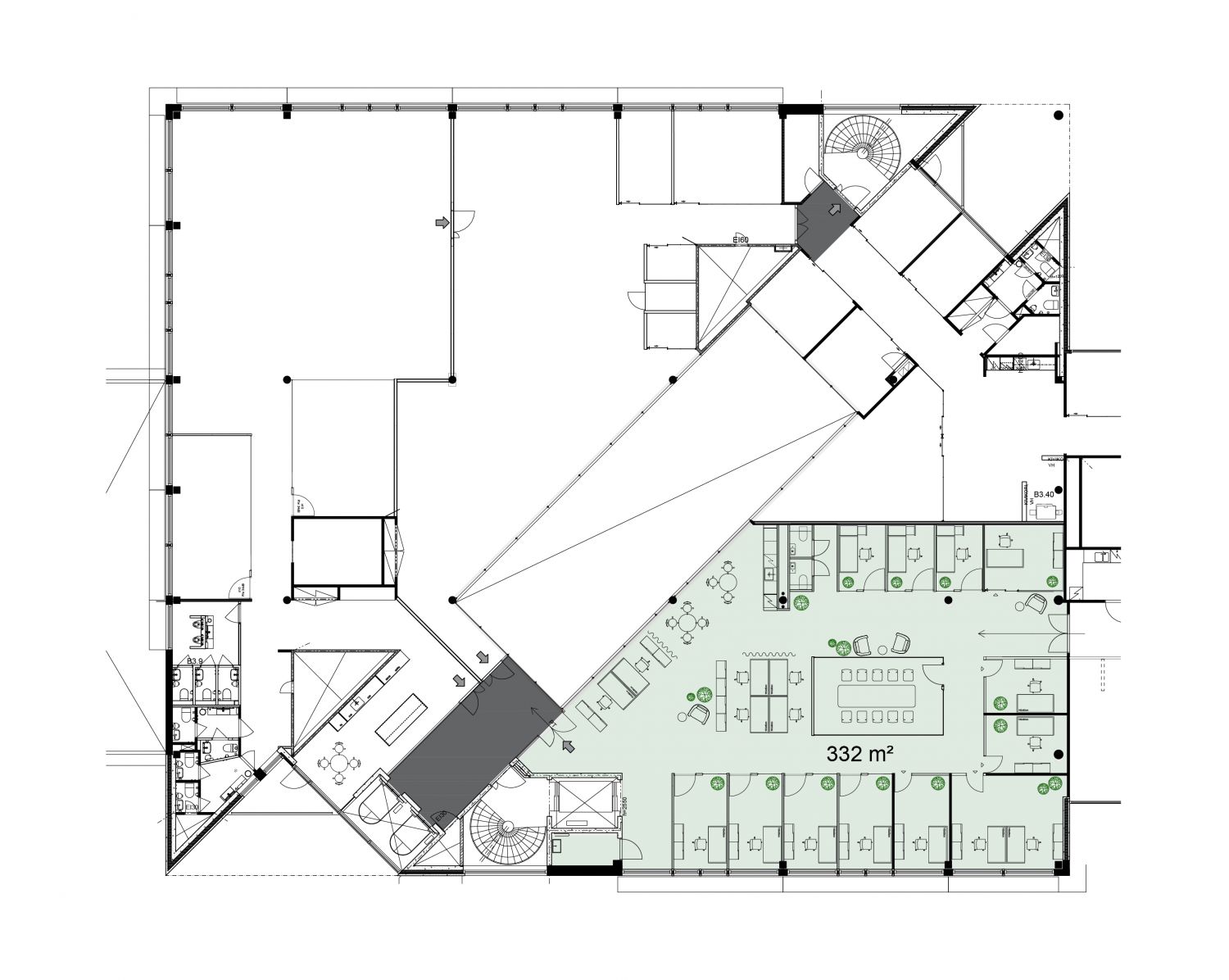
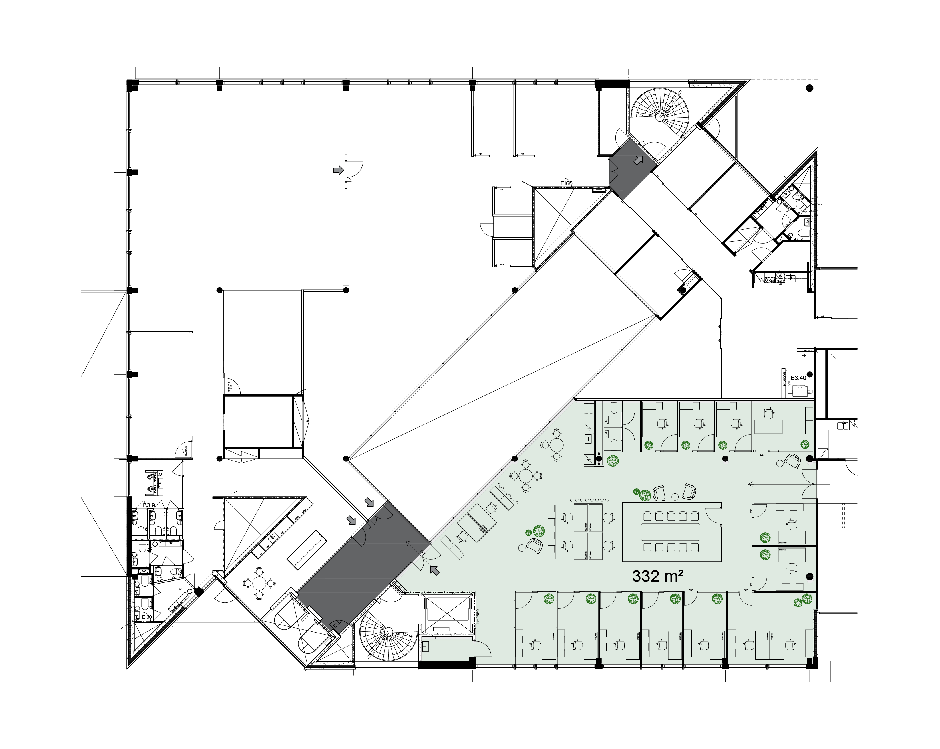
Tehokas 3. kerroksen 332 m² toimisto Leppävaaran Säterinportissa
Osoite
Linnoitustie 6, 02600 Espoo
Tilatyyppi
Toimistotilaa
332 m2
Pohjapiirros
Kiinteistö
Valmiiksi remontoitu ja muokattavissa oleva 332 m² toimitila Leppävaaran halutuimmassa toimistokohteessa – Säterinportissa. Tämä 332 m² toimisto sijaitsee kiinteistön kolmannessa kerroksessa ja tarjoaa valoisat, avarat ja tehokkaasti hyödynnettävät tilat, jotka on mahdollista räätälöidä käyttäjän toiveiden ja tarpeiden mukaisesti. Tilaan mahtuu jopa 30 työpistettä. Tilassa on 3,3 metrin huonekorkeus, laadukas led-yleisvalaistus sekä itään avautuvat suuret ikkunat, jotka tuovat runsaasti luonnonvaloa työskentelyyn.
Kiinteistössä on kaikki modernin toimistoympäristön mukavuudet ja tekniikka: koneellinen ilmanvaihto, jäähdytys, kaukolämpö, sähköinen kulunvalvonta sekä esteettömät kulkureitit. Rakennuksessa on henkilöhissi, ja tarvittaessa varastotilaa on vuokrattavissa samasta kiinteistöstä. Tila soveltuu erinomaisesti yritykselle, joka arvostaa joustavuutta ja viihtyisää, nykyaikaista työympäristöä.
Säterinportti on Leppävaaran tunnetuin ja suosituin toimistokeskittymä, jossa toimii noin 25 eri yritystä – pienistä kasvuyrityksistä suuriin organisaatioihin. Vilkas ja yhteisöllinen ilmapiiri, laadukkaat palvelut ja aktiivinen yritysyhteisö tekevät Säterinportista houkuttelevan sijaintipaikan monen alan toimijoille.
Sijainti Leppävaaran ytimessä takaa erinomaiset liikenneyhteydet ja palvelut aivan vieressä. Alueelta löytyy kattava valikoima ravintoloita, kahviloita ja päivittäispalveluita, ja Leppävaaran juna-asema sekä kauppakeskus Sello sijaitsevat kävelyetäisyydellä. Autoileville on tarjolla hyvin pysäköintitilaa, ja myös julkisilla kulkuvälineillä pääsee sujuvasti eri puolille pääkaupunkiseutua.
Tämä toimitila yhdistää muokattavuuden, modernin tekniikan ja erinomaisen sijainnin.
Kiinteistössä on kaikki modernin toimistoympäristön mukavuudet ja tekniikka: koneellinen ilmanvaihto, jäähdytys, kaukolämpö, sähköinen kulunvalvonta sekä esteettömät kulkureitit. Rakennuksessa on henkilöhissi, ja tarvittaessa varastotilaa on vuokrattavissa samasta kiinteistöstä. Tila soveltuu erinomaisesti yritykselle, joka arvostaa joustavuutta ja viihtyisää, nykyaikaista työympäristöä.
Säterinportti on Leppävaaran tunnetuin ja suosituin toimistokeskittymä, jossa toimii noin 25 eri yritystä – pienistä kasvuyrityksistä suuriin organisaatioihin. Vilkas ja yhteisöllinen ilmapiiri, laadukkaat palvelut ja aktiivinen yritysyhteisö tekevät Säterinportista houkuttelevan sijaintipaikan monen alan toimijoille.
Sijainti Leppävaaran ytimessä takaa erinomaiset liikenneyhteydet ja palvelut aivan vieressä. Alueelta löytyy kattava valikoima ravintoloita, kahviloita ja päivittäispalveluita, ja Leppävaaran juna-asema sekä kauppakeskus Sello sijaitsevat kävelyetäisyydellä. Autoileville on tarjolla hyvin pysäköintitilaa, ja myös julkisilla kulkuvälineillä pääsee sujuvasti eri puolille pääkaupunkiseutua.
Tämä toimitila yhdistää muokattavuuden, modernin tekniikan ja erinomaisen sijainnin.
Vapautuu
Heti
Rakennusvuosi
2001
Kerros
3
Energiatehokkuusluokka
Ei lain edellyttämää energiatodistusta
Näkyvällä paikalla
Hissi
Ota yhteyttä
ScanReal Oy LKV
Opus Business Park
Hitsaajankatu 24
00810 Helsinki
info@scanreal.fi
Puh:
Näytä puhelinnumero
020 730 8830
Sopivat toimitilat yhdellä otolla!
Kartoitamme toimitilatarpeesi ja etsimme yrityksellesi parhaiten sopivat vapaat toimitilat. Koska vuokranantajat maksavat palvelumme, on tämä yrityksellesi veloituksetonta.
Palvelumme on tilanhakijalle ilmainen
Pyydä lisätietoa
