Vuokrataan toimistotilat - Espoo
Tinurinkuja 4, Leppävaara, 02650 Espoo #10844022
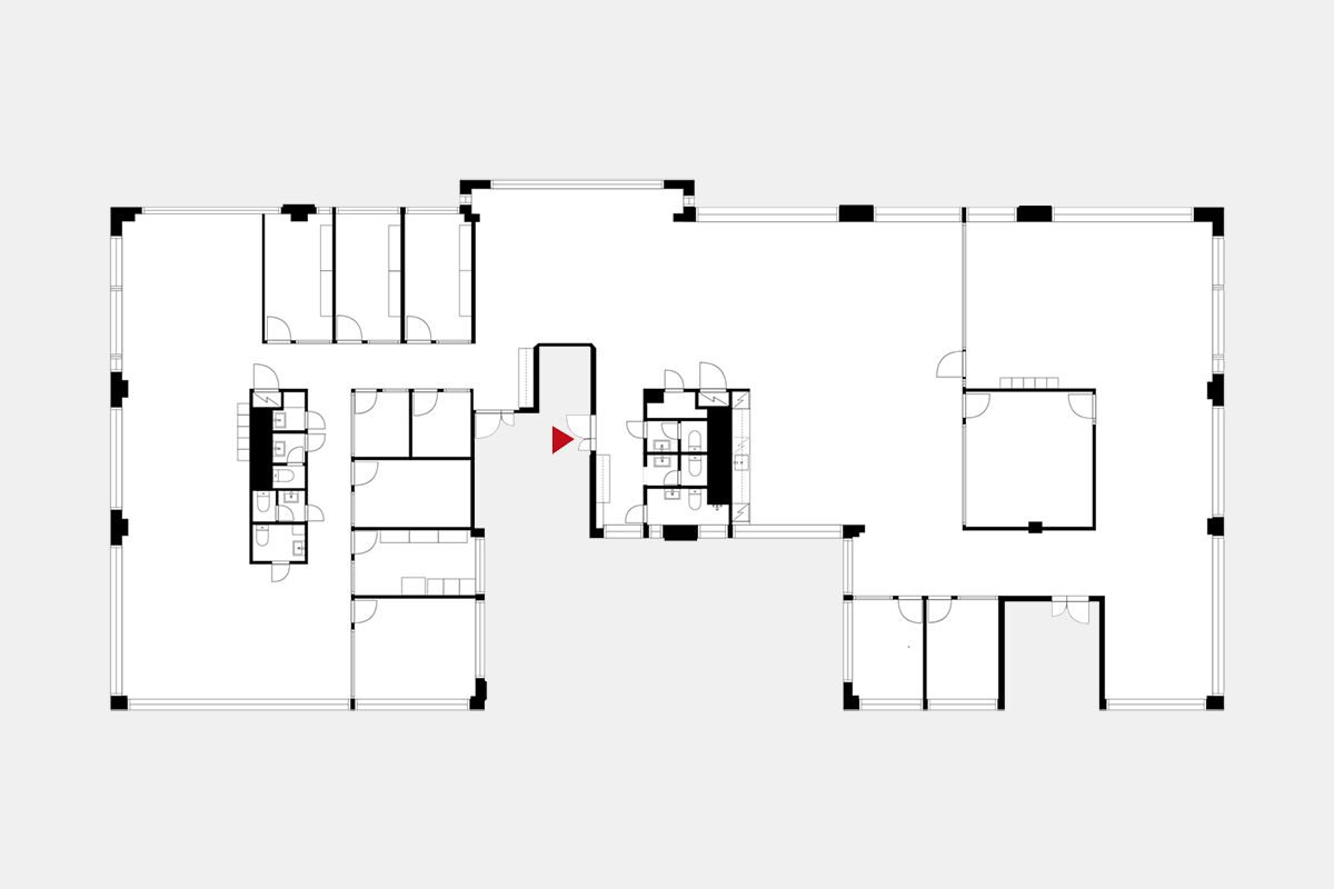
Vuokrataan toimistotilaa Leppävaarasta Läkkitorilta.
Kolmannen kerroksen huoneista ja avotoimistosta koostuva tila, joka on laajennettavissa 523 neliöiseksi.
Hyvä sijainti Kehä 1 ja Turuntien risteyksessä. Hyvä saavutettavuus autolla sekä julkisella liikenteellä. Leppävaaran juna-asemalle, linja-autoasemalle ja Kauppakeskus Selloon 3 minuuttia kävellen Turuntien alitse.
Lisätietoja soita 020 730 4530 tai info@repoint.fi. Palvelumme on tilanhakijalle ilmainen.
Repoint Toimitilat Oy
Itälahdenkatu 22 B, 00210 Helsinki
Näytä puhelinnumero
020 730 4530
Lisätietoja soita Näytä puhelinnumero 020 730 4530 tai info@repoint.fi
https://repoint.fi/