Vuokrataan toimistotilat - Helsinki
Vanha Helsingintie 18, Malmi, Malmi, 00700 Helsinki #10844014
Malmin palveluiden vieressä vuokrattavia tiloja alkaen 10 m².
Osoite
Vanha Helsingintie 18, Malmi, 00700 Helsinki
Tilatyyppi
Toimistotilaa
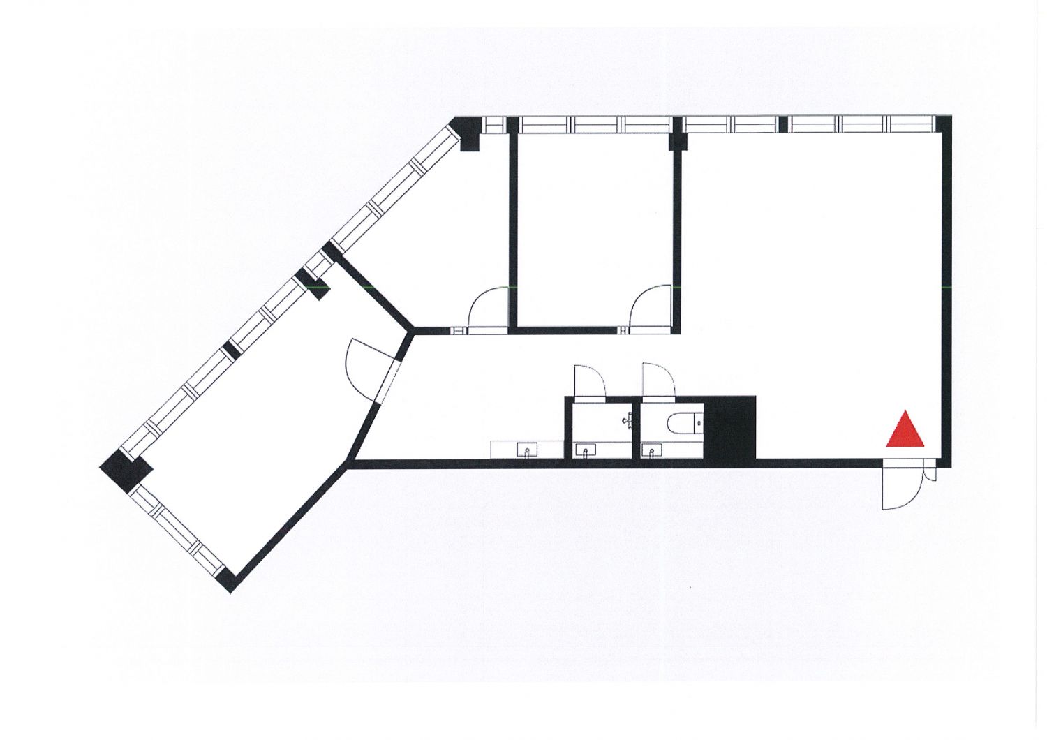
108 m2
Kiinteistö
Vuokrataan kiinteistön 3. kerroksen siisti 108 m²:n toimisto. Tilassa työhuoneita, avotilaa, keittiötila, wc sekä suihku.
Pysäköinti
Kiinteistöllä vuokrattavia autopaikkoja.
Palvelut
Kiinteistössä lounasravintola.
Kulkuyhteydet
Bussipysäkki 100 m
Juna-asema 720 m
Lentoasema 13,3 km
Juna-asema 720 m
Lentoasema 13,3 km
Vapautuu
Heti
Energiatehokkuusluokka
D2018
Ota yhteyttä
Comreal Oy LKV
Tuula Leikas
Näytä puhelinnumero
040 531 3722
P.
Näytä puhelinnumero
020 744 1000
Läkkisepänkuja 6, 00620 Helsinki
Comreal Oy on kasvava ja osaava kiinteistöalan palveluntuottaja kiinteistöjen omistajille ja käyttäjille.
Kiinteistö on sijoittajalle hyvä sijoitus vain, jos siellä on tyytyväiset asiakkaat, eli vuokralaiset. Siksi laadukas asiakaspalvelu on toiminnan lähtökohta.
Pyydä lisätietoa
