Vuokrataan toimistotilat - Espoo
Niittytaival 13, Niittykumpu, 02200 Espoo #10844010
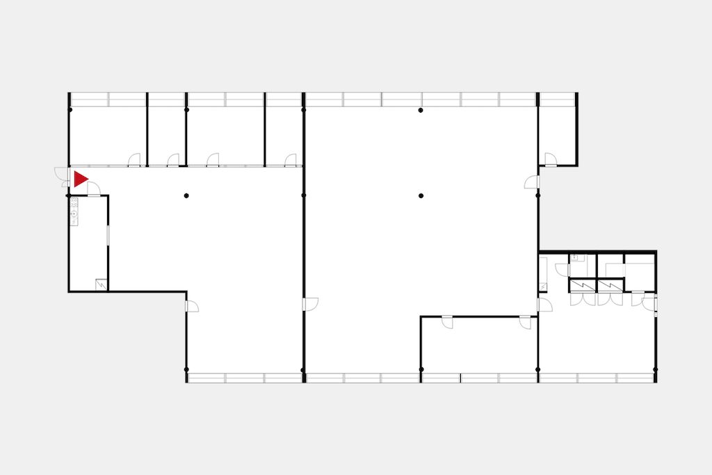
Vuokrataan tehokasta toimistotilaa Länsiväylän varrelta. Tilaa koostuu pääosin avotilasta, jonka lisäksi erillisiä huoneita. Tila on muokattavissa seuraavan käyttäjän tarpeiden mukaan.
Kiinteistö sijaitsee näkyvällä paikalla Niittykummun metroaseman lähellä. Hyvät julkiset yhteydet metrolla ja linja-autolla. Autoilijoille on vuokrattavissa parkkipaikkoja pihalta. Kiinteistössä on myös vuokrattavia kokoustiloja.
Lisätietoja soita 020 730 4530 tai info@repoint.fi. Palvelumme on tilanhakijalle ilmainen.
Repoint Toimitilat Oy
Itälahdenkatu 22 B, 00210 Helsinki
Näytä puhelinnumero
020 730 4530
Lisätietoja soita Näytä puhelinnumero 020 730 4530 tai info@repoint.fi
https://repoint.fi/