Vuokrataan toimistotilat - Helsinki
Fredrikinkatu 47, Kamppi, 00100 Helsinki #10843994
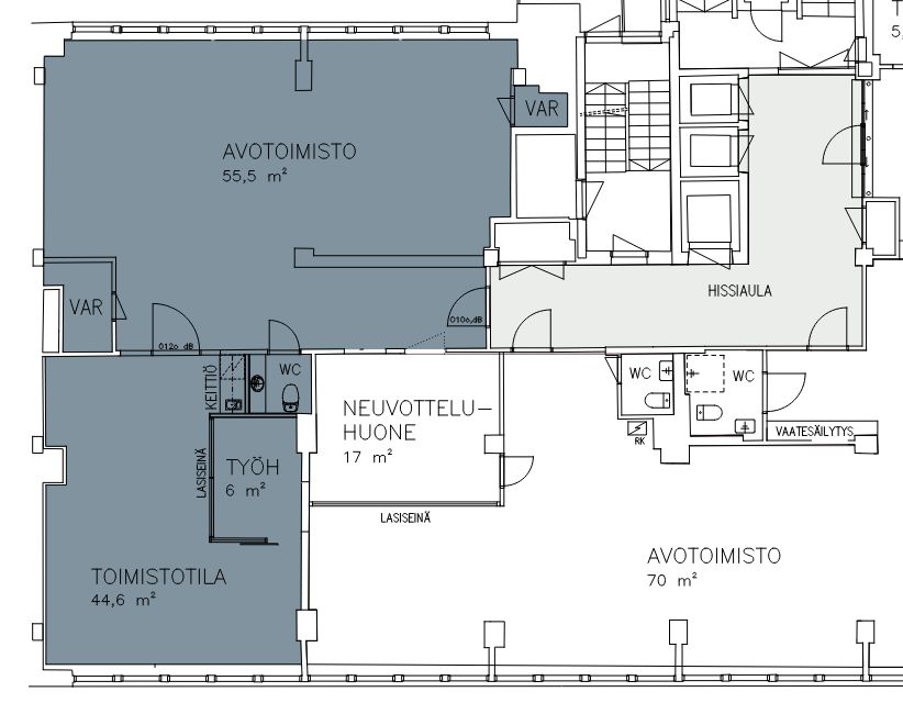
FREDRIKINKATU 47 - toimisto 127m2
Valoisa läpitalon toimistotila rakennuksen 4. kerroksesta.
Tila on pääosin avonaista, mutta siitä löytyy myös iso keittiö-, lounge-, teams-huone jossa pieni neuvottelutila.
Tilaan on myös mahdollista tehdä pieniä muutoksia.
Lisätiedot ja kohdenäytöt: p. 040 7070 321 / HeikkiKerros: 4
Osoite
Fredrikinkatu 47, 00100 Helsinki
Tilatyyppi
Toimistotilaa
127 m2
Kulkuyhteydet
Metro, raitiovaunu, bussi - vierestä.
Ota yhteyttä
CRE PREMISES
Puh. Näytä puhelinnumero 020 7290 710
Vantaankoskentie 14
01670 VANTAA
Pyydä lisätietoa
