Vuokrataan toimistotilat - Helsinki
Itälahdenkatu 23, Lauttasaari, 00210 Helsinki #10843992
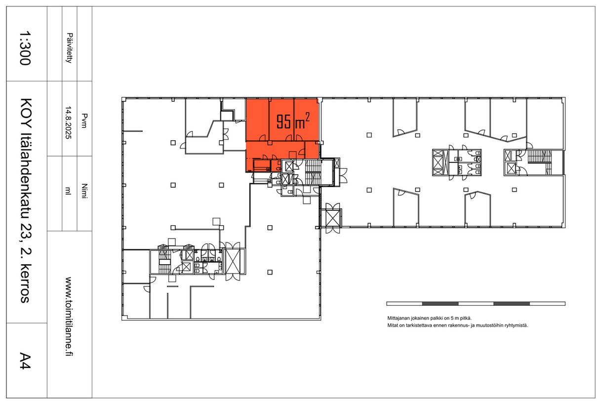
Toimistotila 95 m2 vuokrattavana. Kolme tilavaa toimistohuonetta ja pieni varastohuone. Keittokomero, wc ja sisääntuloaula ovat yhteiskäytössä toisen vuokralaisen kanssa. Toimistotila sijaitsee 2. kerroksessa. Käytössä on henkilöhissi.
Helsingin Lauttasaaressa sijaitseva toimistorakennus on valmistunut 1970-luvulla. Sen kokonaispinta-ala on 7000 m2. Kohteessa on omia parkkipaikkoja ja lastauslaituri. Toimitilojen lähistöllä on useita lounasravintoloita.
Yhteydenotot 020 7290 710. Lisää kohteita www.premises.fi
Kohteella ei ole lain edellyttämää energiatodistusta tai energialuokka ei tiedossa.Kerros: 2
CRE PREMISES
Puh. Näytä puhelinnumero 020 7290 710
Vantaankoskentie 14
01670 VANTAA
