Vuokrataan tuotantotilat, varastotilat - Järvenpää
Minkkikatu 1-3, 04430 Järvenpää #10843949
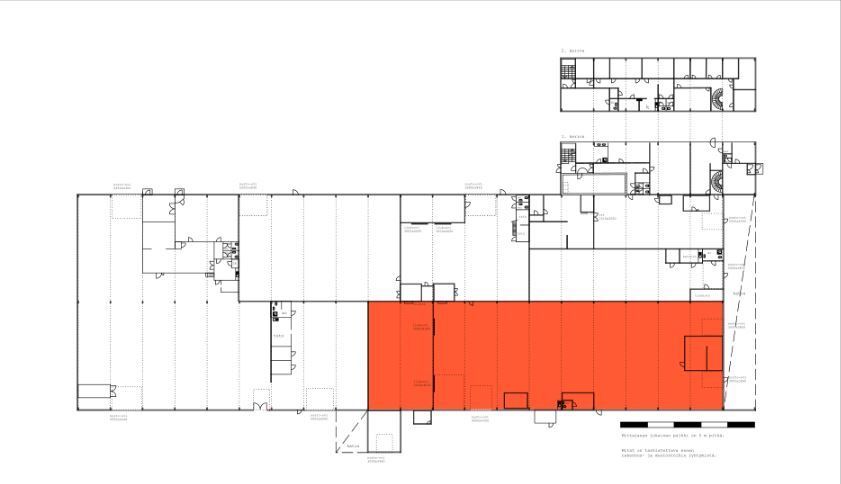
Vuokrattavana tuotanto/teollisuus- tai varastotila 1320 m2, jossa erillinen väliseinällä kahteen osaan jaettu toimistotila 44 m2 sekä keittiönurkkaus ja wc. Lisäksi toimistotilaa vuokrattavissa erikseen toimistosiivestä 125 -300 m2.
Tilan vapaa korkeus on 4,2 m, lattia on betonia. Ulos johtaa kaksi nosto-ovea mitoiltaan 3,00 m (leveys) x 3,86 m (korkeus) ja yksi nosto-ovi kooltaan 4,00 m (leveys) x 4,50 m (korkeus). Käytössä on pöytänosturi (8 tn).
Matkaajan hallina tunnettu kiinteistö on valmistunut 1980-luvulla Järvenpäähän. Se sijaitsee sujuvasti Lahdenväylän ja Vanhan Lahdentien välissä. Kokonaispinta-alaltaan 5000 m2:n kokoisessa rakennuksessa on öljylämmitys. Asfaltoidulla piha-alueella riittää tilaa pysäköintiin ja vaikka yksittäisten konttien säilyttämiseen.
Lisätietoja 020 7290 710, lisää kohteita www.premises.fi
Kohteella ei ole lain edellyttämää energiatodistusta.Kerros: 1
CRE PREMISES
Puh. Näytä puhelinnumero 020 7290 710
Vantaankoskentie 14
01670 VANTAA
