Vuokrataan toimistotilat - Helsinki
Kumpulantie 5, Vallila, 00520 Helsinki #10843891
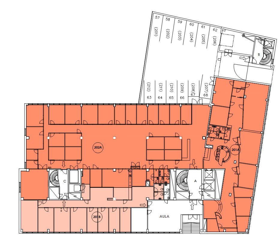
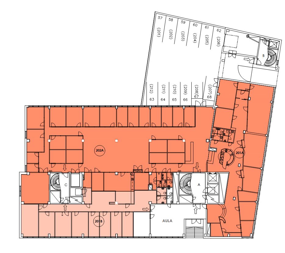
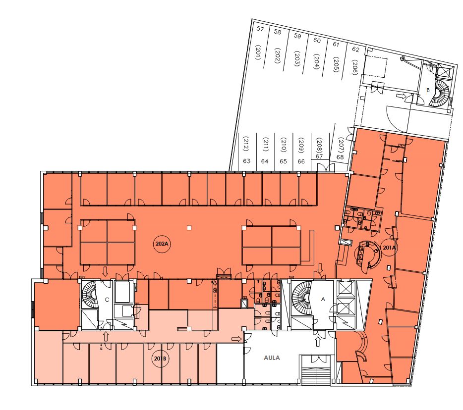
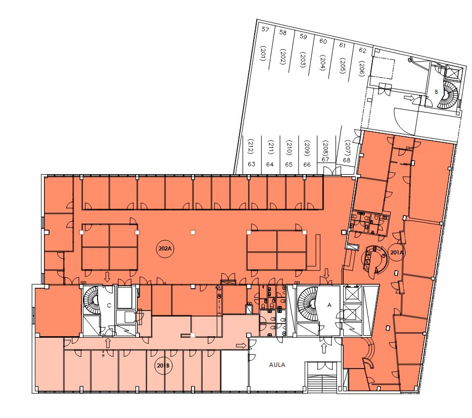
Vuokrattavana 2. kerroksen toimisto 336 m2.
Toimitiloja Vallilasta, 10 minuutin kävelymatkan päästä Pasilan asemalta. Talon palveluihin kuuluu mm. oma henkilöstöravintola, aulapalvelu, vuokrattavat kokous- ja neuvottelutilat sekä saunaosasto. Parkkipaikkoja löytyy sekä ulkoa että parkkihallista.
Lisätietoja 020 7290 710 ja lisää kohteita premises.fi
Kohteella ei lain edellyttämää energiatodistusta tai energialuokka ei tiedossa.Kerros: 2
Osoite
Kumpulantie 5, 00520 Helsinki
Tilatyyppi
Toimistotilaa
336 m2
Kulkuyhteydet
Erinomaiset julkiset liikenneyhteydet.
Ota yhteyttä
CRE PREMISES
Puh. Näytä puhelinnumero 020 7290 710
Vantaankoskentie 14
01670 VANTAA
Pyydä lisätietoa
