Vuokrataan toimistotilat - Helsinki
Tallberginkatu 2, Ruoholahti, 00180 Helsinki #10843881
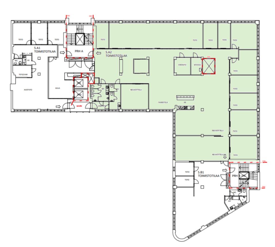
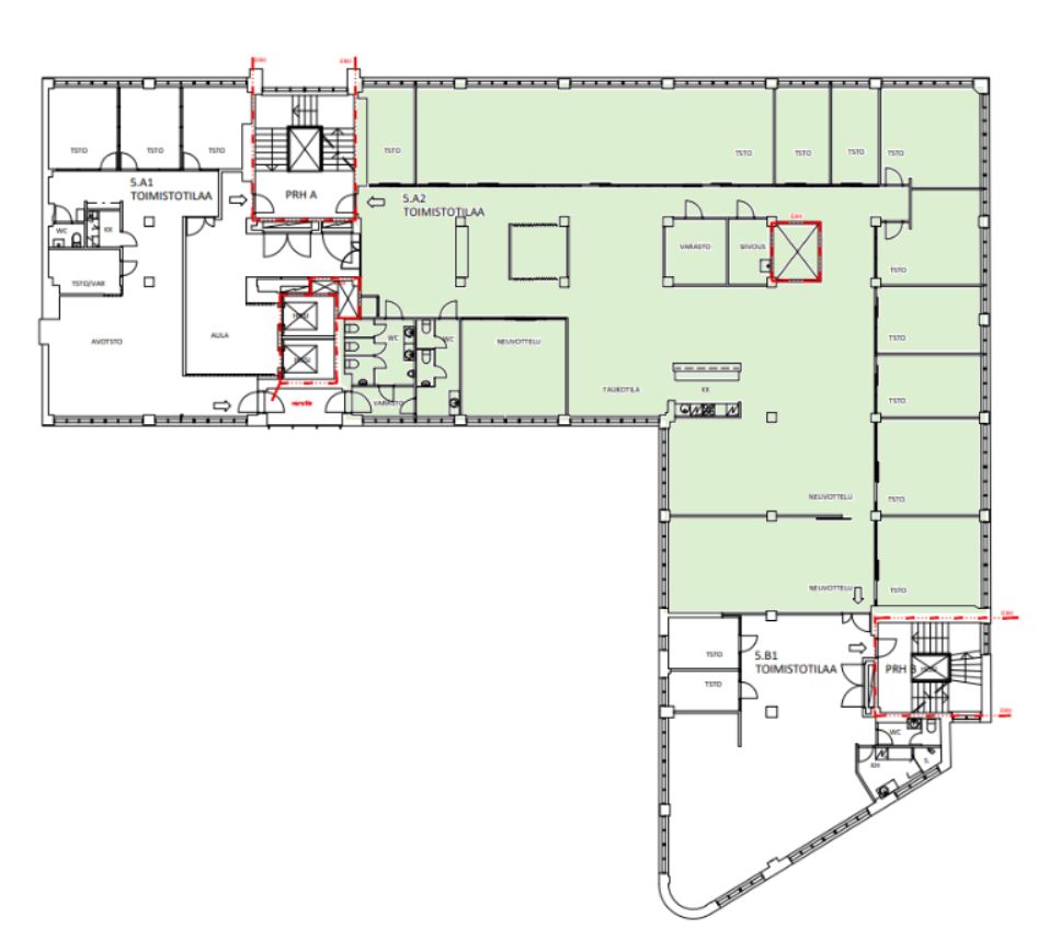
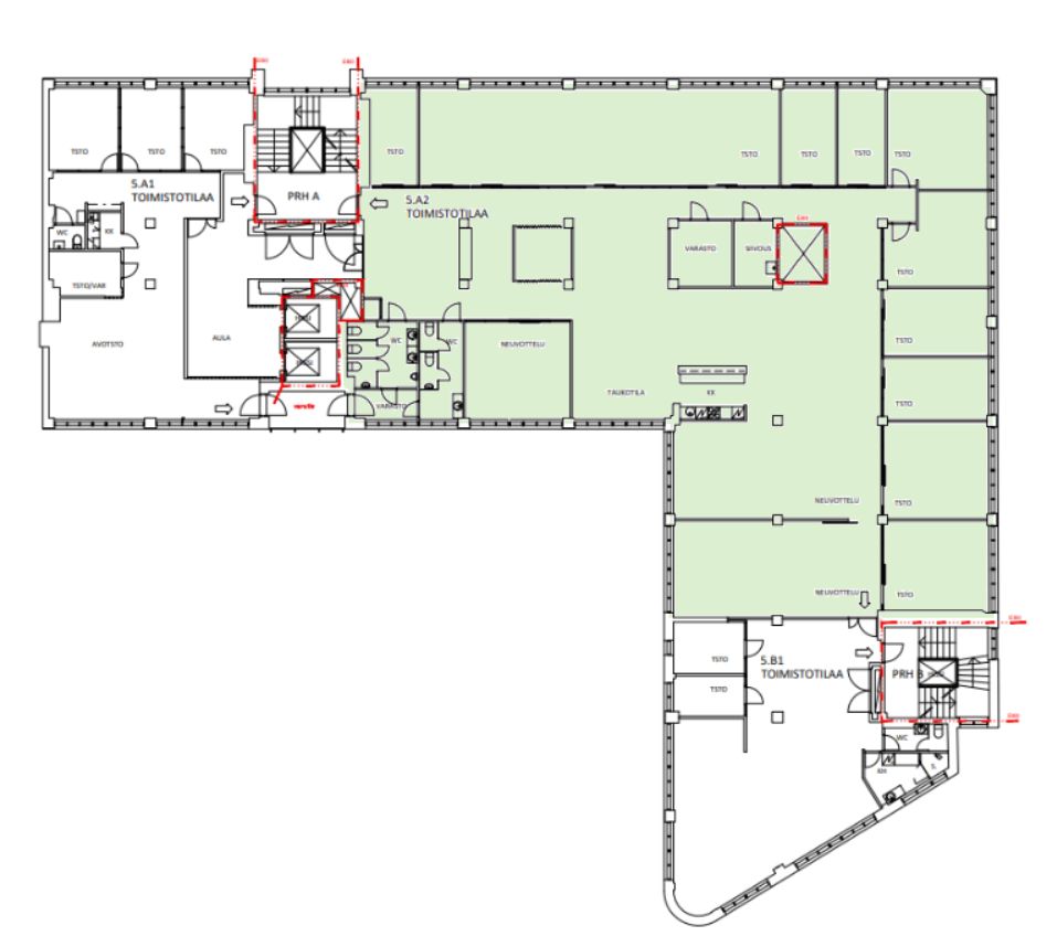
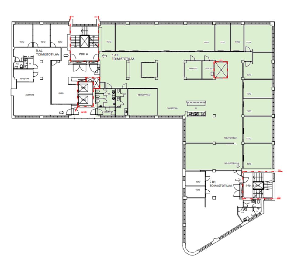
Viidennen kerroksen iso toimistotila, jossa runsaasti tiimi- ja työhuoneita. Valoisa keittiö-lounge keskellä tilaa.
Tallbergintalo on vuonna 1938 valmistunut funkkisaikakauden rakennus, joka toimii sisäyhteydellä naapurin Itämerentalon kanssa jakaen monia palveluja.
Lisätietoja numerosta 020 7290 710. Lisää kohteita osoitteessa www.premises.fi.
Kohteella ei ole lain edellyttämää energiatodistusta tai energialuokka ei tiedossa.Kerros: 5
Osoite
Tallberginkatu 2, 00180 Helsinki
Tilatyyppi
Toimistotilaa
715,5 m2
Kulkuyhteydet
Erinomaiset liikenneyhteydet. Bussit, raitiovaunut ja metro ovat pienen kävelymatkan päässä.
Ota yhteyttä
CRE PREMISES
Puh. Näytä puhelinnumero 020 7290 710
Vantaankoskentie 14
01670 VANTAA
Pyydä lisätietoa
