Vuokrataan toimistotilat - Helsinki
Porkkalankatu 22, Ruoholahti, 00180 Helsinki #10843869
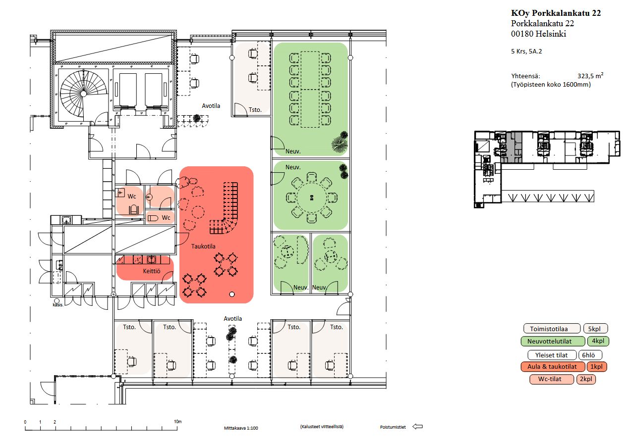
Tyylikäs huonekonttori, jossa on myös pieni avotila keskellä tilaa lähellä keittiötä. 5 toimistohuonetta ja 4 eri kokoista omaa neuvottelutilaa. 2 wc:tä ja erillinen keittiö. Läpitalon huoneisto, ikkunat molemmin puolin tilaa Porkkalankadulle ja sisäpihalle.
Ruoholahti on voimakkaasti kehittyvä liike-elämän keskus, joka on kansainvälisestikin palkittu. Moderni rakentaminen luo hyvät toimintaedellytykset Ruoholahden Tähden asiakasyrityksille. Kiinteistöön on rakennettu muuntojoustavat ja viihtyisät tilat vuokralaisille.
Lähialueen kattavat palvelut tarjoavat yrityksellesi korkeatasoisen toimintaympäristön. Vieressä sijaitseva Ruoholahden kauppakeskus tarjoaa kaikki päivittäiset palvelut työntekijöille.
Kiinteistössä on aulapalvelu, ravintola- ja cateringpalvelut sekä varustellut neuvottelutilat. Kiinteistön asiakkailla on käytössään Spondan extranet -palvelu tehokkaaseen yhteydenpitoon toimitila-asioissa
Lisätietoja 020 7290 710. Lisää kohteita www.premises.fi
Kohteella ei ole lain edellyttämää energiatodistusta.Kerros: 5
Autopaikkoja on vuokrattavissa Kauppakeskus Ruoholahden parkkihallista, jonne ajetaan sisään Porkkalankadulta tai Länsisatamankadulta tai Länsiväylältä tunnelin kautta. Parkkihallista on suora yhteys hisseillä kerroksiin.
Parkkihalli on avoinna joka päivä 6-22 sekä sopimusasiakkaille 24 h/vrk.
CRE PREMISES
Puh. Näytä puhelinnumero 020 7290 710
Vantaankoskentie 14
01670 VANTAA
