Vuokrataan toimistotilat - Helsinki
Sörnäistenkatu 1, Sörnäinen, 00580 Helsinki #10843867
Valmistumassa uusi upea Aina Valmis-toimisto Kalasatamaan.
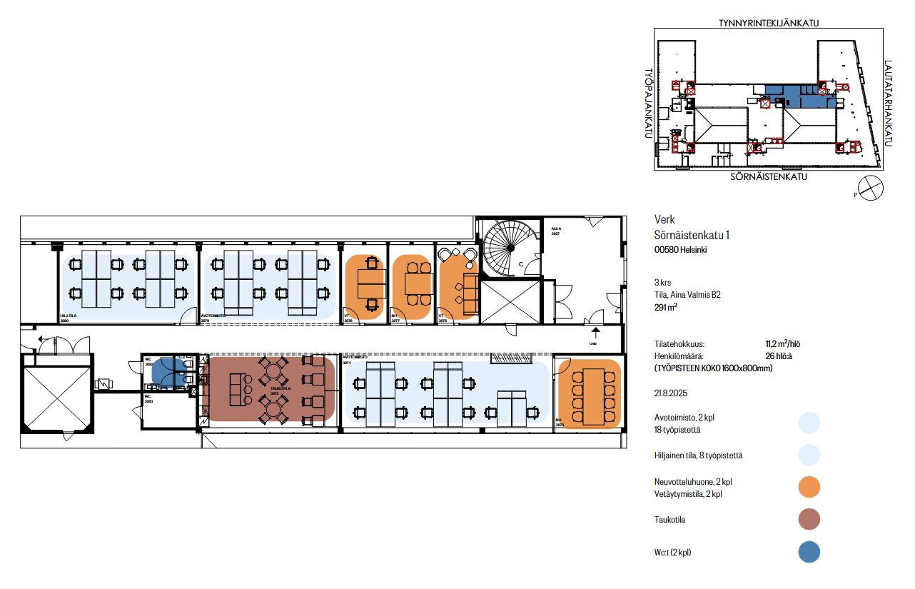
Valoisassa ja avarassa rakennuksessa on atriumpiha ja upeat näkymät, sillä ikkunat ulottuvat lattiasta kattoon asti. Kiinteistön palveluihin kuuluu muun muassa aulavastaanotto, lounasravintola, kuntosali sekä kattavat kokoustilat. Lähellä sijaitsevan Teurastamon alueella on useita ravintoloita, baareja ja kahviloita.
Tila on upea ja täysin remontoitu Aina Valmis -konseptin mukaisesti laadukkailla ja vastuullisilla materiaaleilla sekä toimivalla tilaratkaisulla vastaamaan nykytyöelämän vaatimuksia.
Valoisassa ja avarassa rakennuksessa on atriumpiha ja upeat näkymät, sillä ikkunat ulottuvat lattiasta kattoon asti. Kiinteistön palveluihin kuuluu muun muassa aulavastaanotto, lounasravintola, kuntosali sekä kattavat kokoustilat. Lähellä sijaitsevan Teurastamon alueella on useita ravintoloita, baareja ja kahviloita.
Kiinteistö Oy Sörnäistenkatu 1 tunnetaan linjakkaasta ja ajattomasta arkkitehtuuristaan sekä yritystoimintaa tukevista, tasokkaista palveluista.
Sörnäistenkatu 1:n palvelut ovat tasokkaat. Kiinteistössä on tilava autohalli, kuntosali, useita kabinetteja ja kokoustiloja, laadukas henkilöstöravintola, vastaanottopalvelut ja korkeatasoiset turvajärjestelyt.
Lisätiedot 020 7290 710. Lisää kohteita www.premises.fi
Kohteella ei ole lain edellyttämää energiatodistusta tai energialuokka ei tiedossa.Kerros: 3
CRE PREMISES
Puh. Näytä puhelinnumero 020 7290 710
Vantaankoskentie 14
01670 VANTAA
