Vuokrataan toimistotilat - Helsinki
Hämeentie 19, Sörnäinen, 00500 Helsinki #10843834
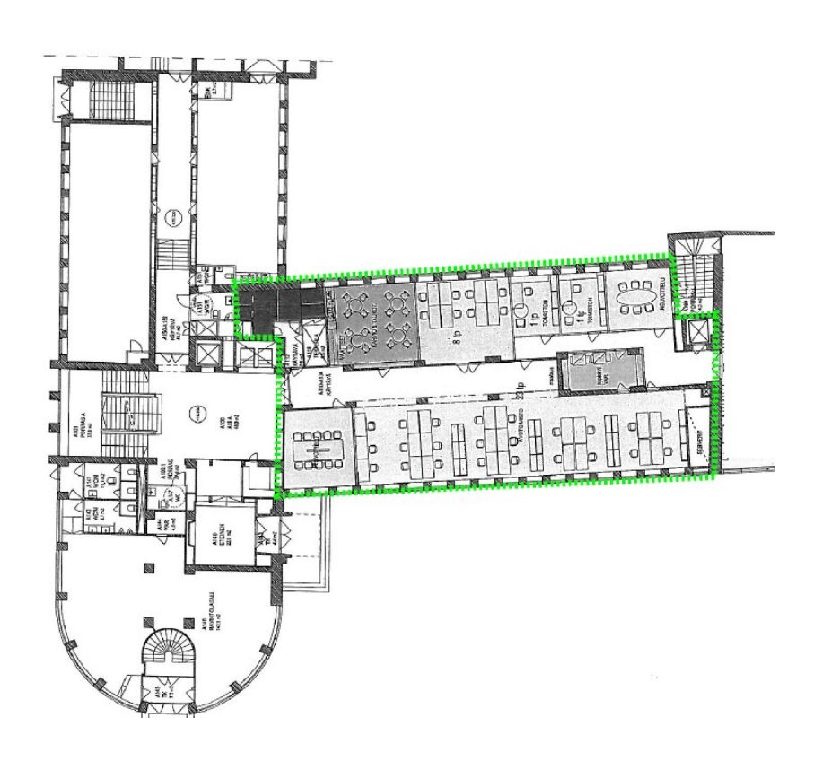
Avo - ja huonekonttoria 1. kerroksessa upeassa Hämeentien funkkistalossa. Isot ikkunat molemmilla puolin tilaa.
Upea industrial-henkinen kiinteistö Sörnäisissä yhdistää arkkitehtonisesti vaikuttavan estetiikan ja modernin talotekniikan.
Lisätietoja 020 7290 710 ja lisää kohteita premises.fi
Kohteella ei ole lain edellyttämää energiatodistusta tai energialuokka ei tiedossa.Kerros: 1
Osoite
Hämeentie 19, 00500 Helsinki
Tilatyyppi
Toimistotilaa
405 m2
Ota yhteyttä
CRE PREMISES
Puh. Näytä puhelinnumero 020 7290 710
Vantaankoskentie 14
01670 VANTAA
Pyydä lisätietoa
