Vuokrataan varastotilat - Helsinki
Unioninkatu 13, Kaartinkaupunki, 00130 Helsinki #10843780
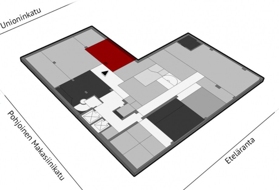
Vuokrattavana tilava kellarikerroksen varasto Helsingin keskustassa, joka on erinomainen lisä kiinteistön liike- tai toimistotiloihin. Varastoon on käynti sisäpihan puolelta Unioninkadulta.
Kiinteistössä on parkkihalli ja mahdollisuus pysäköidä myös sisäpihalle. Tilaa tarjotaan vain arvonlisäverolliselle toimijalle.
Ota yhteyttä ja tule tutustumaan!
www.blanctoimitilat.fi
Joonas Nuutinen, toimitila-asiantuntija
+358 40 754 5408
joonas.nuutinen@blanckiinteisto.com
HUOM! Tilanhakijalle palvelumme on maksuton!
Osoite
Unioninkatu 13, 00130 Helsinki
Tilatyyppi
Varastotilaa
42 m2
Vapautuu
Heti vapaa
Ota yhteyttä

Blanc Toimitilat
Harri Laisto
Toimitila-asiantuntija, CEO, Kaupanvahvistaja, LKV
Näytä puhelinnumero
+358405365590
Pyydä lisätietoa