Vuokrataan toimistotilat - Helsinki
Kiviaidankatu 2, Lauttasaari, 00210 Helsinki #10843778
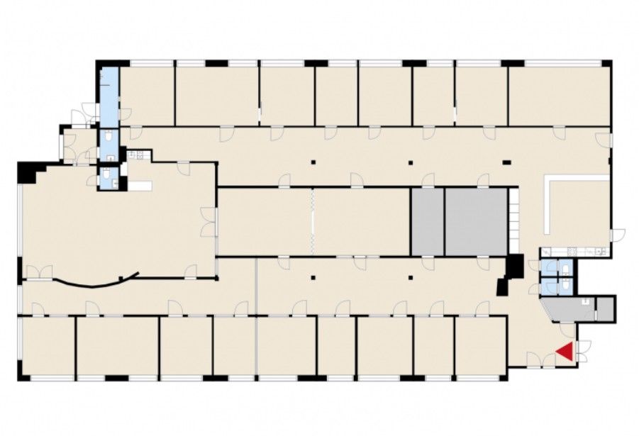
Vuokrataan monikäyttöinen toimistotila, joka tarjoaa eri kokoisia työhuoneita, neuvottelutiloja sekä hyviä sosiaali- ja oleskelutiloja. Nykyisin tila soveltuu noin 30-35 työpisteelle, ja se sisältää 1-6 hengen työhuoneita. Tila on jaettavissa ja laajennettavissa 379/393 m² kokoon tarpeen mukaan, ja muutostyöt ovat mahdollisia. Tarvittaessa tila voidaan myös jakaa kahdeksi erilliseksi huoneistoksi.
Talon omasta pysäköintihallista ja pihalta on saatavilla autopaikkoja. Kiviaidankadun varrella on lisäksi ilmaisia 4 h kiekkopysäköintipaikkoja.
Ota yhteyttä ja kysy lisää!
www.blanctoimitilat.fi
Joonas Nuutinen, Toimitila-asiantuntija
+358 40 754 5408
joonas.nuutinen@blanckiinteisto.com
