Vuokrataan varastotilat - Helsinki
Linnanpajantie 22, Vartioharju, 00950 Helsinki #10843734
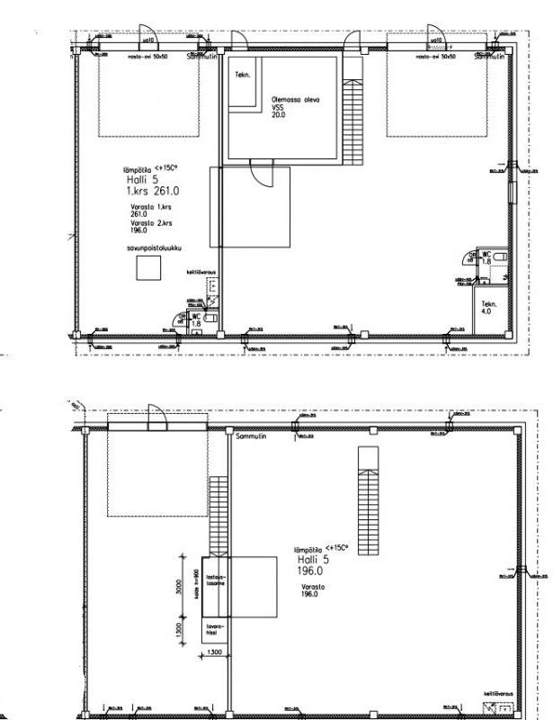
Vuokrataan sisään ajettava 457m2 tila, tilan oikea puolisko on n.5m korkea ja varustettu isolla nosto-ovella. Vasen puolisko on varustettu 196m2 parvella, jolle pääsee nostamaan tavaraa trukilla korkeamman osan puolelta. Parvelle löytyy myös portaita. Vasempaan osaan puolella lötyy oma nosto-ovi. Tilassa löytyy myös sosiaalitilat.
Pihalla on pysäköinti sekä Linnanpajantien varressa on maksuttomia kadunvarsipysäköintipaikkoja.
Katutasossa
Näkyvällä paikalla
Comreal Oy LKV
Salla Saraniemi
Näytä puhelinnumero
040 138 1081
P.
Näytä puhelinnumero
020 744 1000
Läkkisepänkuja 6, 00620 Helsinki
Comreal Oy on kasvava ja osaava kiinteistöalan palveluntuottaja kiinteistöjen omistajille ja käyttäjille.
Kiinteistö on sijoittajalle hyvä sijoitus vain, jos siellä on tyytyväiset asiakkaat, eli vuokralaiset. Siksi laadukas asiakaspalvelu on toiminnan lähtökohta.
