Vuokrataan toimistotilat - Helsinki
Hankasuontie 9, Konala, 00390 Helsinki #10843682
Toimistotilaa Helsingin Konalassa.
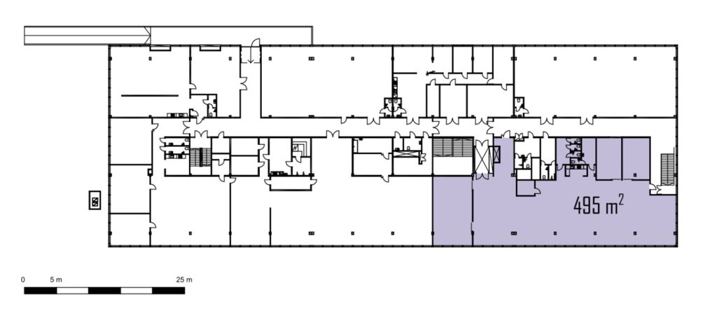
Tämä 495 m² toimistotila sijaitsee kiinteistön 2. kerroksessa. Toimistossa on avotilaa, muutama neuvotteluhuone, ja siihen kuuluvat omat wc-, keittiö- ja pukuhuonetilat. Osaa tilasta voi tarvittaessa käyttää varasto- tai tuotantotilana. Tilan korkeus on noin 3 metriä ja kattoikkunat tuovat lisää valoa. Tilassa on jäähdytys.
Pienteollisuustoimintaan sopiva kiinteistö on rakennettu vuonna 1969 ja peruskorjattu vuosien 2009-2010 aikana. Rakennuksessa on varasto-, tuotanto- ja toimistotiloja kahdessa kerroksessa, koulutustiloja ja matalaa varastotilaa kellarikerroksessa. Kiinteistössä on lastauslaituri ja tavarahissi, jonka kantavuus on 3500kg.
Kysy lisää numerosta 044 723 4700 tai info@bref.fi. Palvelumme on tilanhakijoille ilmainen.
Bureau Real Estate Finland Oy
Lars Sonckin kaari 16, 02600 Espoo
Näytä puhelinnumero
0447234700
Bureau Real Estate Finland Oy
https://www.bref.fi