Vuokrataan toimistotilat, tuotantotilat - Pori
Mikkolantie 10, 00640 Pori #10843679
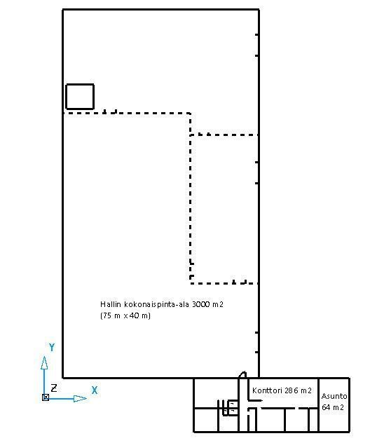
Vuokrataan loistopaikalta Porista varasto-/teollisuushalli n. 3000 m2 + toimisto n. 240 m2
Osoite
Mikkolantie 10, 00640 Pori
Tilatyyppi
Toimistotilaa
286 m2
Tuotantotilaa
3000 m2
Yhteensä
3286 m2
Tilajako
Jaettavissa
Kiinteistö
Vuokrataan hyvällä paikalla sijaitseva varasto-/teollisuushalli 3000 m2 ja erillinen toimisto noin 286 m2. Halli jaettu nyt kolmeen osaan, mahdollista muuntaa yhdeksi isoksi tilaksi. Kaukolämpö, sprinkleri, oma sähkömuuntamo, 3 suurta nosto-ovea ja useita pylväsnostureita. Hallin korkeus keskeltä 10 metriä, laidoilta noin 6 metriä. Hallissa on lattiakaivot, ei kuitenkaan öljynerotuskaivoja. Suuri asfaltoitu piha-alue. Soita ja kysy lisää.
Sijainti
Sijaitsee hyvällä paikalla Helsingin-, ja Tampereentien liittymien vieressä. Samalla alueella mm. Prisma, Citymarket, Motonet, Biltelma, Tokmanni, Power, Jysk, Byggmax ja Jula.
Vapautuu
Heti
Näkyvällä paikalla
Jaettavissa
Ota yhteyttä
Comreal Oy LKV
Anna-Maija Hyppönen
Näytä puhelinnumero
050 534 8001
P.
Näytä puhelinnumero
020 744 1000
Läkkisepänkuja 6, 00620 Helsinki
Comreal Oy on kasvava ja osaava kiinteistöalan palveluntuottaja kiinteistöjen omistajille ja käyttäjille.
Kiinteistö on sijoittajalle hyvä sijoitus vain, jos siellä on tyytyväiset asiakkaat, eli vuokralaiset. Siksi laadukas asiakaspalvelu on toiminnan lähtökohta.
Pyydä lisätietoa
