Vuokrataan liiketilat - Helsinki
Simonkatu 9, Kamppi, 00101 Helsinki #10843675
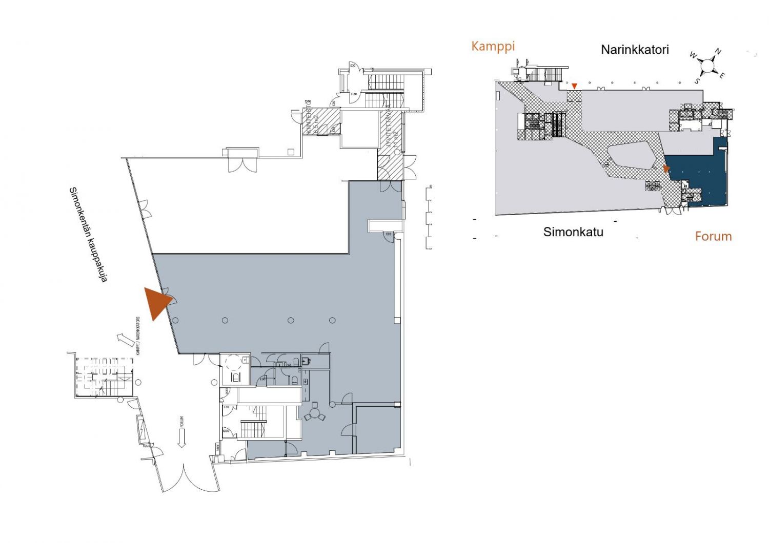
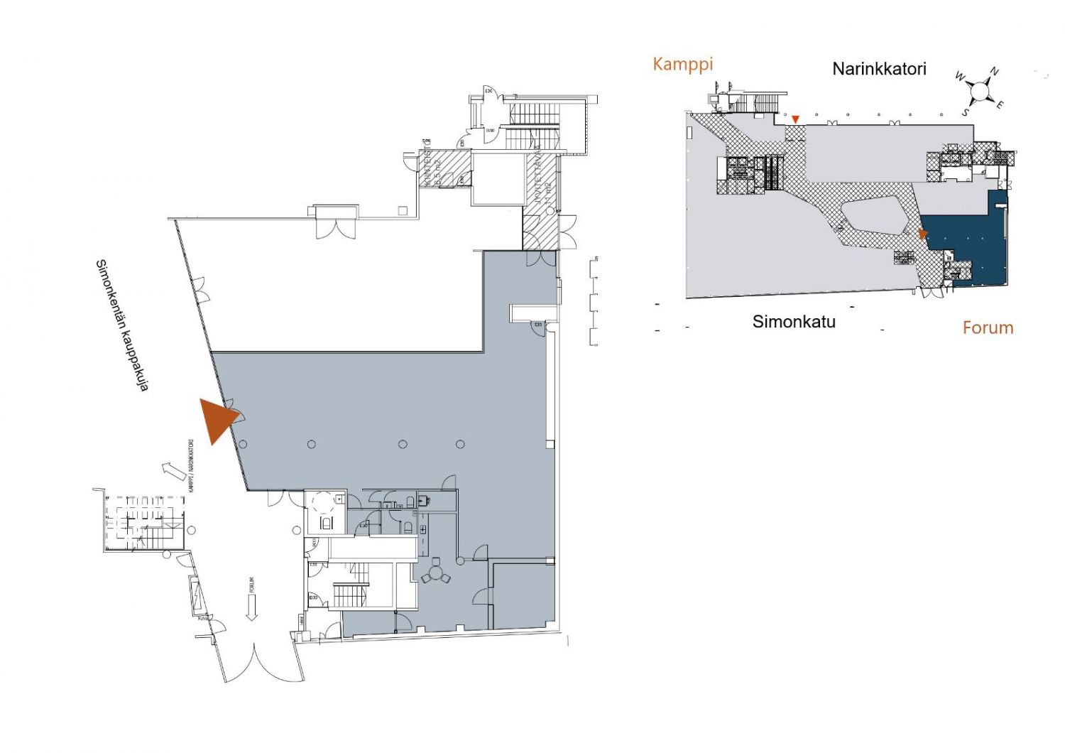
Vuokrataan Simonkentän kauppakujalla sijaitseva 266 m² liiketila. Se tarjoaa erinomaiset mahdollisuudet monipuoliselle liiketoiminnalle vilkkaan jalankulkuliikenteen ansiosta. Kampin ja Forumin kauppakeskusten läheisyys sekä alueen laaja valikoima kauppoja, ravintoloita ja palveluita lisäävät kohteen vetovoimaa. Kiinteistössä on jäähdytys, valokuituyhteydet ja kierrätysmahdollisuudet. Energialuokka C2018. Rakennus on valmistunut vuonna 2000. Tila on heti vapaa. Ei sovellu ravintolaksi/ruoan valmistusta edellyttävään käyttöön.
Kysy lisätietoja tai sovitaan käynti kohteelle jo tänään!
Katutasossa
Näkyvällä paikalla
Hausala Oy
Erkkilänkatu 11, 33100 Tampere
Näytä puhelinnumero
050 472 7077
Mikko Ranta
Näytä puhelinnumero
050 360 6500
Mika Savikko
Näytä puhelinnumero
050 472 7077
