Vuokrataan varastotilat, autotalli/-hallitilat, muut tilat - Helsinki
Muonamiehentie 12, Konala, 00390 Helsinki #10843662
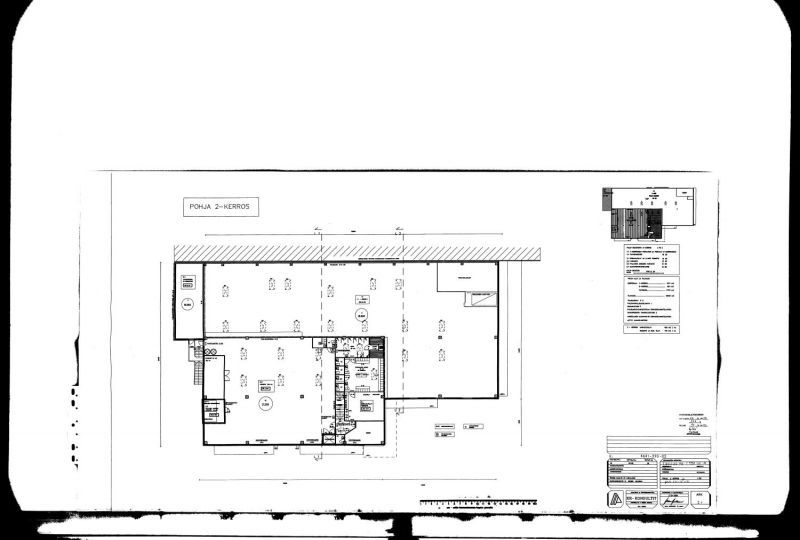
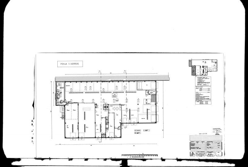
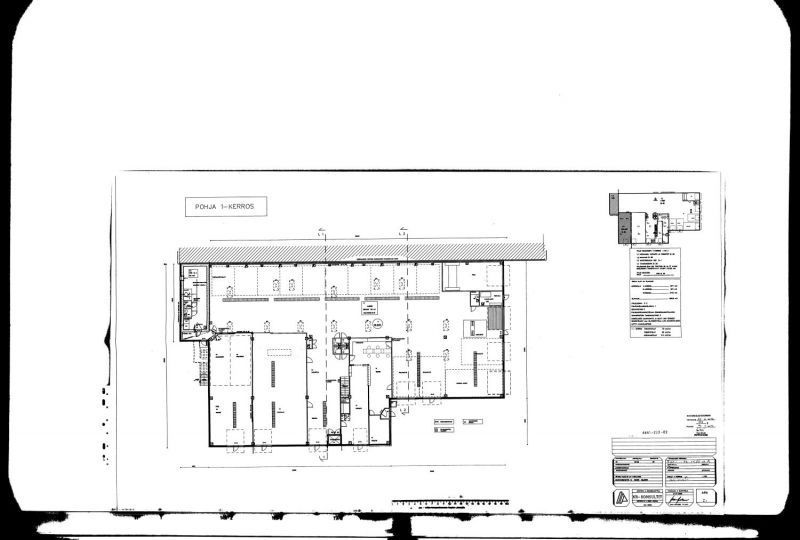
Siisti ja iso 2100 m² autohuoltotila loistavien kulkuyhteksien varrelta, Helsingin Konalasta.
Osoite
Muonamiehentie 12, 00390 Helsinki
Tilatyyppi
Varastotilaa
2100 m2
Autotalli/-hallitilaa
2100 m2
Muuta tilaa
2100 m2
Yhteensä
2100 m2
Tila soveltuu
Autokorjaamo
Kiinteistö
Vuokrattavana siistiä vuonna 2001 valmistunutta autohuoltotilaa.
Tila on toiminut alusta asti autohuoltotilana ja tiloissa on toiminut Alppilan autohuolto kesä/syksy 2025 saakka.
Tilassa on valmiina pari nostinta, jarrudyno, öljylinja sekä pesulinjasto.
Tila on toiminut alusta asti autohuoltotilana ja tiloissa on toiminut Alppilan autohuolto kesä/syksy 2025 saakka.
Tilassa on valmiina pari nostinta, jarrudyno, öljylinja sekä pesulinjasto.
Vapautuu
Heti
Rakennusvuosi
2001
Kerros
1 / 2
Energiatehokkuusluokka
Ei lain edellyttämää energiatodistusta
Katutasossa
Näkyvällä paikalla
Ota yhteyttä
ScanReal Oy LKV
Opus Business Park
Hitsaajankatu 24
00810 Helsinki
info@scanreal.fi
Puh:
Näytä puhelinnumero
020 730 8830
Sopivat toimitilat yhdellä otolla!
Kartoitamme toimitilatarpeesi ja etsimme yrityksellesi parhaiten sopivat vapaat toimitilat. Koska vuokranantajat maksavat palvelumme, on tämä yrityksellesi veloituksetonta.
Palvelumme on tilanhakijalle ilmainen
Pyydä lisätietoa
