Vuokrataan varastotilat - Helsinki
Itälahdenkatu 23, Lauttasaari, 00210 Helsinki #10843644
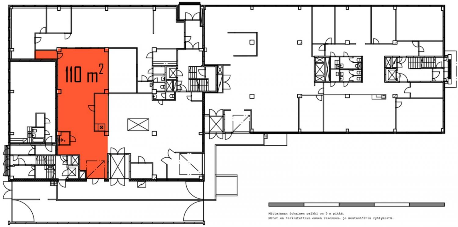
Vuokrataan Helsingin Lauttasaaresta ensimmäisen kerroksen 110 m² varastotila.
Ison tilan lisäksi kaksi erillistä pientä varastohuonetta. Suihkuhuone. Oma sisäänkäynti lastauslaiturilta (nosto-ovi n. 2,6 m * 2,3 m). Sisään voi kulkea myös A-rapun kautta Itälahdenkadun puolelta.
Kysy rohkeasti lisätietoja ja sovitaan käynti kohteella!
Osoite
Itälahdenkatu 23, 00210 Helsinki
Tilatyyppi
Varastotilaa
110 m2
Kiinteistö
Itälahdenkatu 23
Vapautuu
Kysy
Ota yhteyttä
Hausala Oy
Erkkilänkatu 11, 33100 Tampere
Näytä puhelinnumero
050 472 7077
Mikko Ranta
Näytä puhelinnumero
050 360 6500
Mika Savikko
Näytä puhelinnumero
050 472 7077
Pyydä lisätietoa
