Vuokrataan toimistotilat - Helsinki
Malminkaari 5, Malmi, 00700 Helsinki #10843614
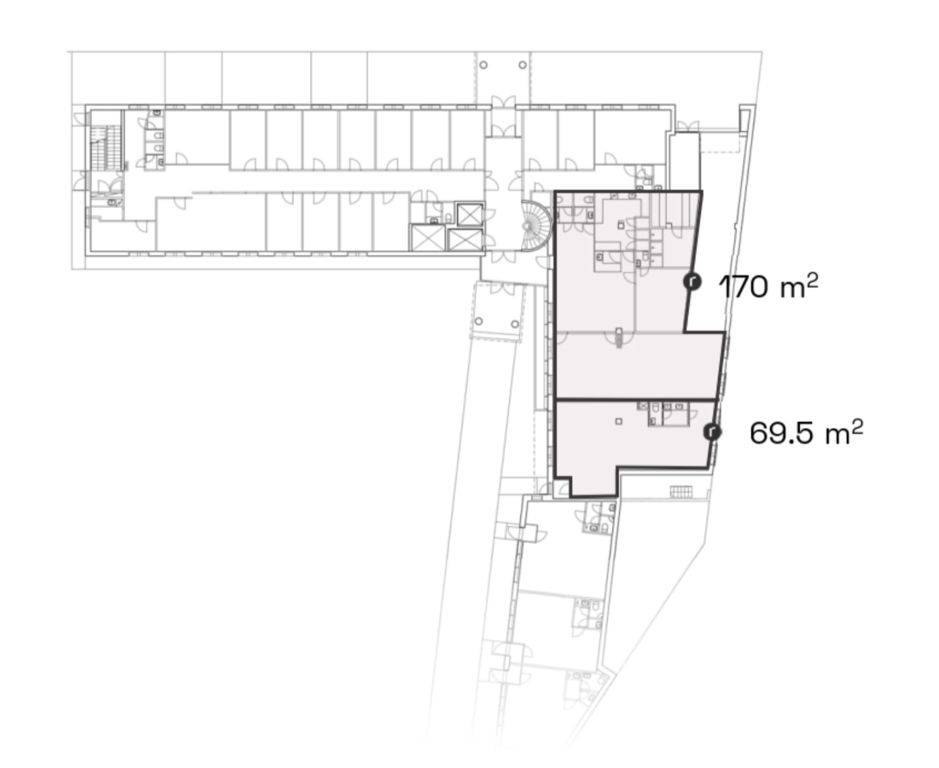
Vuokrattavana toimisto-/liiketilaa Helsingin Malmilta.
Tämä 239,5 m² tila sijaitsee kiinteistön katutasossa. Toimistossa on huoneita, avotilaa sekä omat keittiö- ja wc-tilat. Tila soveltuu myös liiketilakäyttöön. Kokonaisuus on mahdollista jakaa 69,5 m² ja 170 m² kokoisiin osiin.
Malminkaari 5 on viisikerroksinen toimitilakiinteistö, jonka tilat soveltuvat monenlaisiin eri toimintatarkoituksiin. Se sijaitsee kävelyetäisyydellä Malmin juna-asemalta ja bussipysäkit löytyvät heti kiinteistön vierestä.
Kysy lisää numerosta 044 723 4700 tai info@bref.fi. Palvelumme on tilanhakijoille ilmainen.
Bureau Real Estate Finland Oy
Lars Sonckin kaari 16, 02600 Espoo
Näytä puhelinnumero
0447234700
Bureau Real Estate Finland Oy
https://www.bref.fi