Vuokrataan toimistotilat - Kuopio
Toimistotila Volttikatu 5, Savilahti, 70700 Kuopio #10843580
Toimistotila
Osoite
Toimistotila Volttikatu 5, 70700 Kuopio
Tilatyyppi
Toimistotilaa
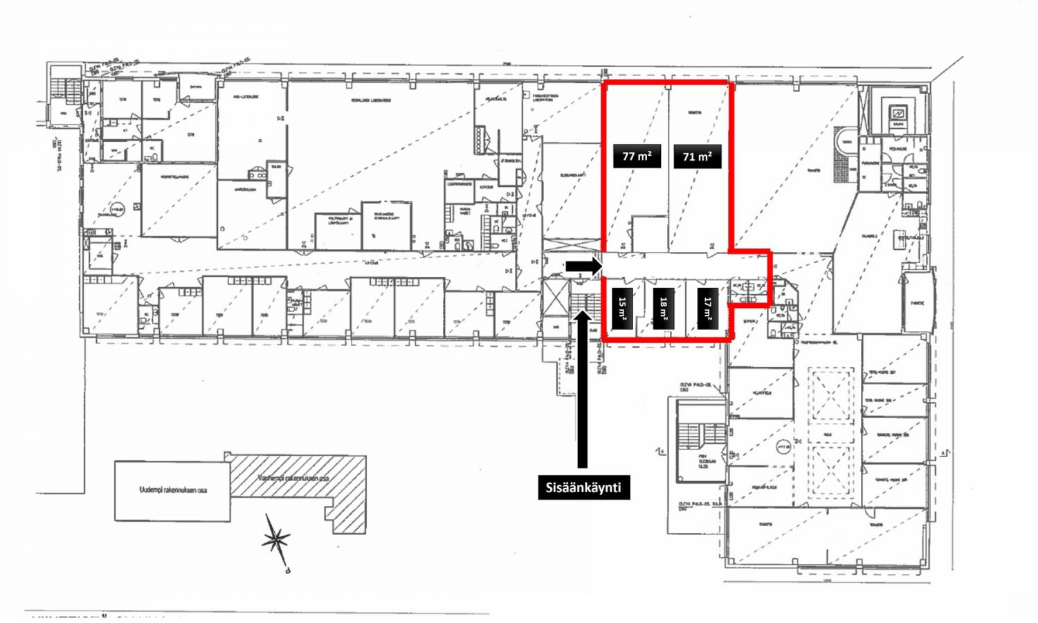
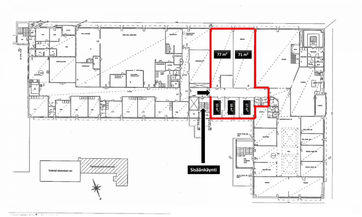
50 - 220 m2
Kiinteistö
Edullista ja siistiä toimistotilaa Savilahdesta
Toimistotilat ovat hyvillä perusvarusteilla varustettuja eli toimivia tiloja muuttovalmiina.
Toimistotilat ovat valoisat, siistit, terveet ja puitteet ovat keskitasoa.
Toimistohuoneissa on valmiina
sälekaihtimet
koneellinen ilmanvaihto
hyvä valaistus
kuituyhteys kiinteistölle
sisustusvalmiit seinät
parkettilattiat
iLOQ lukitusjärjestelmä
kulunvalvontavalmius
käytävillä laattalattia
WC tilat N/M
parkkipaikat piha-alueella
jätehuoltokatos
Kiinteistö ja sijainti
Savilahdessa Volttikatu 5:ssa kiinteistön toimistotiloissa on aiemmin toiminut mm. asiantuntijaorganisaatioita.
Kiinteistöllä on paljon tasokkaita ratkaisuja, jotka tekevät työskentelystä viihtyisää.
Piha-alueella on runsaasti parkkipaikkoja ja tolppapaikkoja.
Volttikadulle on hyvät julkiset kulkuyhteydet ja bussipysäkki on n. parin kävelyminuutin päässä.
Tämä kannatta tsekata ensiksi!
Toimistotilat ovat hyvillä perusvarusteilla varustettuja eli toimivia tiloja muuttovalmiina.
Toimistotilat ovat valoisat, siistit, terveet ja puitteet ovat keskitasoa.
Toimistohuoneissa on valmiina
sälekaihtimet
koneellinen ilmanvaihto
hyvä valaistus
kuituyhteys kiinteistölle
sisustusvalmiit seinät
parkettilattiat
iLOQ lukitusjärjestelmä
kulunvalvontavalmius
käytävillä laattalattia
WC tilat N/M
parkkipaikat piha-alueella
jätehuoltokatos
Kiinteistö ja sijainti
Savilahdessa Volttikatu 5:ssa kiinteistön toimistotiloissa on aiemmin toiminut mm. asiantuntijaorganisaatioita.
Kiinteistöllä on paljon tasokkaita ratkaisuja, jotka tekevät työskentelystä viihtyisää.
Piha-alueella on runsaasti parkkipaikkoja ja tolppapaikkoja.
Volttikadulle on hyvät julkiset kulkuyhteydet ja bussipysäkki on n. parin kävelyminuutin päässä.
Tämä kannatta tsekata ensiksi!
Vapautuu
Kysy
Kerros
2. kerros
Ota yhteyttä
Logistila Oy
Ankkuritie 1, 70460 KUOPIO
Timo Puustinen
Näytä puhelinnumero
0400 33 00 30
Pyydä lisätietoa
