Vuokrataan toimistotilat - Espoo
Tillinmäentie 1, Kivenlahti, 02330 Espoo #10843554
Valoisaa, siistiä pientoimistotilaa noin 5-10 hengen organisaatioille Kiviruukin teollisuusalueella Kivenlahdessa.
Osoite
Tillinmäentie 1, 02330 Espoo
Tilatyyppi
Toimistotilaa
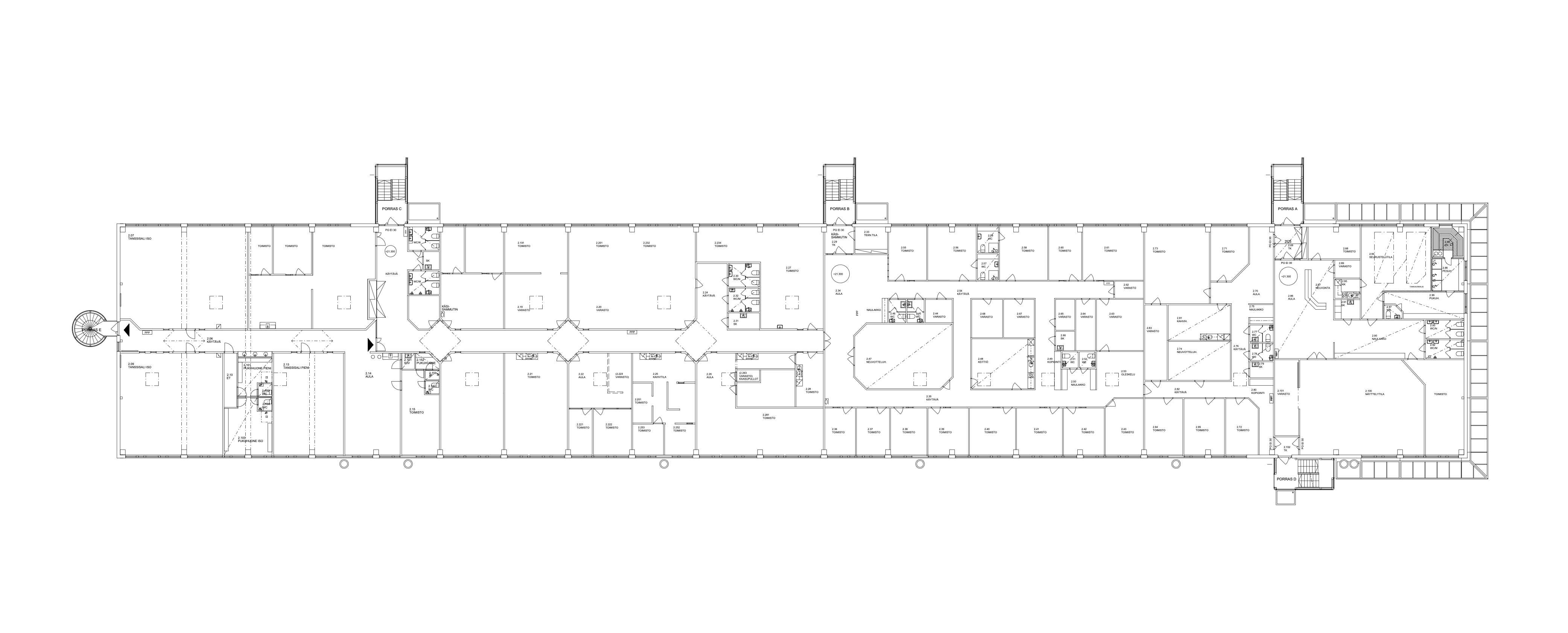
66 m2
Pohjapiirros
Kiinteistö
Valoisa, siisti toimistotila rauhallisessa kerroksessa, yhteensä 3 kpl n. 66 m² toimistotiloja joita voidaan myös yhdistää suuremmiksi kokonaisuuksiksi. Lounasravintola kiinteistössä.
Ei hissiä.
Tillinmäentie 1 on monipuolinen kiinteistö Kiviruukin työpaikka-alueella Espoossa, Länsiväylän välittömässä läheisyydessä. Kahdessa vierekkäisessä rakennuksessa on saatavissa tuotantotiloja ja toimistoja.
Saatavissa on erikokoisia, edullisia pientoimistotiloja (66 m² – 132 m²) noin 5-10 hengen organisaatioille. Toimistot ovat siistikuntoisia ja valoisia avotoimistoja, ja jokaisessa on oma pieni keittiö. Tilat vuokrataan joustavasti, ja niitä voidaan muunnella vuokralaisten tarpeiden mukaisesti esim. kevyillä rakenteilla. Osassa tiloista on yleisilmanjäähdytys.
Ei hissiä.
Tillinmäentie 1 on monipuolinen kiinteistö Kiviruukin työpaikka-alueella Espoossa, Länsiväylän välittömässä läheisyydessä. Kahdessa vierekkäisessä rakennuksessa on saatavissa tuotantotiloja ja toimistoja.
Saatavissa on erikokoisia, edullisia pientoimistotiloja (66 m² – 132 m²) noin 5-10 hengen organisaatioille. Toimistot ovat siistikuntoisia ja valoisia avotoimistoja, ja jokaisessa on oma pieni keittiö. Tilat vuokrataan joustavasti, ja niitä voidaan muunnella vuokralaisten tarpeiden mukaisesti esim. kevyillä rakenteilla. Osassa tiloista on yleisilmanjäähdytys.
Pysäköinti
Pihapaikat
Palvelut
Kiinteistössä toimii lounasravintola Wera
Vapautuu
Heti
Kerros
2 / 2
Energiatehokkuusluokka
Ei lain edellyttämää energiatodistusta
Ota yhteyttä
ScanReal Oy LKV
Opus Business Park
Hitsaajankatu 24
00810 Helsinki
info@scanreal.fi
Puh:
Näytä puhelinnumero
020 730 8830
Sopivat toimitilat yhdellä otolla!
Kartoitamme toimitilatarpeesi ja etsimme yrityksellesi parhaiten sopivat vapaat toimitilat. Koska vuokranantajat maksavat palvelumme, on tämä yrityksellesi veloituksetonta.
OTA YHTEYTTÄ - SOVI NÄYTTÖ!
Kaikki kohteemme eivät ole netissä, kerro tilatarpeesi niin kartoitamme vaihtoehdot.
Palvelumme on tilanhakijalle ilmainen
Pyydä lisätietoa
